1994August
180,000 yen, 3LDK, Second floor / 2-story, 85.29 sq m
Rentals » Kanto » Tokyo » Setagaya
 
| Railroad-station 沿線・駅 | | Tokyu Oimachi Line / Todoroki 東急大井町線/等々力 | Address 住所 | | Setagaya-ku, Tokyo Nakamachi 1 東京都世田谷区中町1 | Walk 徒歩 | | 5 minutes 5分 | Rent 賃料 | | 180,000 yen 18万円 | Key money 礼金 | | 180,000 yen 18万円 | Security deposit 敷金 | | 180,000 yen 18万円 | Floor plan 間取り | | 3LDK 3LDK | Occupied area 専有面積 | | 85.29 sq m 85.29m2 | Direction 向き | | Southeast 南東 | Type 種別 | | Residential home 一戸建て | Year Built 築年 | | Built 20 years 築20年 | | With parking (free) 駐車場付(無料) |
| Immediate available 即入居可 |
Property name 物件名 | | Rental housing of Setagaya-ku, Tokyo Nakamachi 1 Todoroki Station [Rental apartment ・ Apartment] information Property Details 東京都世田谷区中町1 等々力駅の賃貸住宅[賃貸マンション・アパート]情報 物件詳細 | Transportation facilities 交通機関 | | Tokyu Oimachi Line / Ayumi Todoroki 5 minutes Tokyu Oimachi Line / Ayumi Kaminoge 12 minutes Tokyu Oimachi Line / Oyamadai walk 14 minutes 東急大井町線/等々力 歩5分 東急大井町線/上野毛 歩12分 東急大井町線/尾山台 歩14分
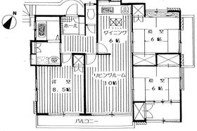
| Floor plan details 間取り詳細 | | Sum 6 sum 6 Hiroshi 8.5 LDK10DK6 和6 和6 洋8.5 LDK10DK6 | Construction 構造 | | Wooden 木造 | Story 階建 | | Second floor / 2-story 2階/2階建 | Built years 築年月 | | August 1994 1994年8月 | Nonlife insurance 損保 | | The main 要 | Move-in 入居 | | Immediately 即 | Trade aspect 取引態様 | | Mediation 仲介 | Intermediate fee 仲介手数料 | | 1.08 months 1.08ヶ月 | Area information 周辺情報 | | Seijo Ishii Todoroki shop (super) up to 409m Seven-Eleven Setagaya Todoroki Valley shop 526m up (convenience store) up to 431m medicine Seijo roar store (drugstore) to 586m Setagaya roar post office 650m Setagaya credit union roar branch until the (post office) (Bank) 成城石井等々力店(スーパー)まで409mセブンイレブン世田谷等々力渓谷店(コンビニ)まで431mくすりセイジョー等々力店(ドラッグストア)まで586m世田谷等々力郵便局(郵便局)まで650m世田谷信用金庫等々力支店(銀行)まで526m |
Building appearance建物外観 
Living and room居室・リビング 

Kitchenキッチン 
Bathバス 
Toiletトイレ 
Other room spaceその他部屋・スペース 
Washroom洗面所 
Other Equipmentその他設備 
Location
|