|
Railroad-station 沿線・駅 | | Odakyu line / Shimokitazawa 小田急線/下北沢 |
Address 住所 | | Setagaya-ku, Tokyo Kitazawa 1 東京都世田谷区北沢1 |
Walk 徒歩 | | 14 minutes 14分 |
Rent 賃料 | | 60,000 yen 6万円 |
Management expenses 管理費・共益費 | | 3000 yen 3000円 |
Security deposit 敷金 | | 60,000 yen 6万円 |
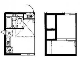
Floor plan 間取り | | 1K 1K |
Occupied area 専有面積 | | 9.72 sq m 9.72m2 |
Direction 向き | | East 東 |
Type 種別 | | Apartment アパート |
Year Built 築年 | | Built six years 築6年 |
|
New construction! Design! Surety consultation! And so on, Many there handling
新築!デザイナーズ!保証人相談!等々、多数取り扱いあります
|
|
Built in 2008 ・ Design ・ auto lock ・ loft
2008年築・デザイナーズ・オートロック・ロフト
|
|
Air conditioning, Flooring, TV interphone, auto lock, Indoor laundry location, Yang per good, Corner dwelling unit, CATV, Immediate Available, A quiet residential area, Two-sided lighting, IH cooking heater, loft, All room Western-style, Guarantor unnecessary, Single person consultation, Deposit 1 month, Two tenants consultation, Card key, All living room flooring, Design, 2 wayside Available, Student Counseling, 2 Station Available, 3 station more accessible, Within a 5-minute walk station, Year Available, Fiscal year Available, Guarantee company Available, Ventilation good
エアコン、フローリング、TVインターホン、オートロック、室内洗濯置、陽当り良好、角住戸、CATV、即入居可、閑静な住宅地、2面採光、IHクッキングヒーター、ロフト、全居室洋室、保証人不要、単身者相談、敷金1ヶ月、二人入居相談、カードキー、全居室フローリング、デザイナーズ、2沿線利用可、学生相談、2駅利用可、3駅以上利用可、駅徒歩5分以内、年内入居可、年度内入居可、保証会社利用可、通風良好
|
Property name 物件名 | | Rental housing of Setagaya-ku, Tokyo Kitazawa 1 Shimokitazawa Station [Rental apartment ・ Apartment] information Property Details 東京都世田谷区北沢1 下北沢駅の賃貸住宅[賃貸マンション・アパート]情報 物件詳細 |
Transportation facilities 交通機関 | | Odakyu line / Ayumi Shimokitazawa 14 minutes Inokashira / Ikenoue walk 4 minutes Inokashira / Komabahigashi Ayumi Omae 16 minutes 小田急線/下北沢 歩14分 京王井の頭線/池ノ上 歩4分 京王井の頭線/駒場東大前 歩16分
|
Floor plan details 間取り詳細 | | Hiroshi 4.5 K loft 2 洋4.5 K ロフト 2 |
Construction 構造 | | Wooden 木造 |
Story 階建 | | 1st floor / 2-story 1階/2階建 |
Built years 築年月 | | December 2008 2008年12月 |
Nonlife insurance 損保 | | The main 要 |
Move-in 入居 | | Immediately 即 |
Trade aspect 取引態様 | | Mediation 仲介 |
Property code 取り扱い店舗物件コード | | 12/2t 12/2t |
Guarantor agency 保証人代行 | | Guarantee company Available first guarantee fee, Monthly rent total of 30% ~ Continuation guarantee fee update Yes 10000 yen per year ~ 保証会社利用可 初回保証料金、月額賃料合計の30% ~ 継続保証料金1年毎に更新有10000円 ~ |
Other expenses ほか諸費用 | | Key exchange Daiyu 鍵交換代有 |
Remarks 備考 | | Three F until Ikenoue shop 402m / Maibasuketto Ikenoue until Station shop 359m / Commuting management / Built in 2008 ・ Design ・ auto lock ・ loft スリーエフ池ノ上店まで402m/まいばすけっと池ノ上駅前店まで359m/通勤管理/2008年築・デザイナーズ・オートロック・ロフト |
Area information 周辺情報 | | Maibasuketto Ikenoue Station shop (super) up to 359m Three F Ikenoue store (convenience store) up to 402m Mine drag Shimokitazawa Minamiten (drugstore) to 818m First Kitchen Shimokitazawa shop (restaurant) to 776m Ikenoue Station post office (post office) まいばすけっと池ノ上駅前店(スーパー)まで359mスリーエフ池ノ上店(コンビニ)まで402mミネドラッグ下北沢南店(ドラッグストア)まで818mファーストキッチン下北沢店(飲食店)まで776m池ノ上駅前郵便局(郵便局)まで366m駒場野公園(公園)まで1100m |