2008May
520,000 yen, 4LDK, 2-story, 147.16 sq m
Rentals » Kanto » Tokyo » Setagaya
 
| Railroad-station 沿線・駅 | | Tokyu Toyoko Line / Gakugeidaigaku 東急東横線/学芸大学 | Address 住所 | | Setagaya-ku, Tokyo dismounting 5 東京都世田谷区下馬5 | Walk 徒歩 | | 8 minutes 8分 | Rent 賃料 | | 520,000 yen 52万円 | Key money 礼金 | | 520,000 yen 52万円 | Security deposit 敷金 | | 520,000 yen 52万円 | Floor plan 間取り | | 4LDK 4LDK | Occupied area 専有面積 | | 147.16 sq m 147.16m2 | Direction 向き | | East 東 | Type 種別 | | Residential home 一戸建て | Year Built 築年 | | Built six years 築6年 | | Shimouma 5-chome O House 下馬5丁目O邸 |
| ■ IH ■IH |
| Toyoko Gakugeidaigaku Station within walking distance Built shallow detached (about 8 minutes) (Built in 2008). It is a valuable 4Bedroom. 東横線学芸大学駅徒歩圏内(約8分)の築浅戸建(2008年築)。貴重な4Bedroomです。 |
| Bus toilet by, balcony, Air conditioning, closet, TV interphone, Indoor laundry location, System kitchen, Warm water washing toilet seat, Seperate, Face-to-face kitchen, IH cooking heater, With grill, Water filter, Floor heating, Dish washing dryer, roof balcony, LDK20 tatami mats or more バストイレ別、バルコニー、エアコン、クロゼット、TVインターホン、室内洗濯置、システムキッチン、温水洗浄便座、洗面所独立、対面式キッチン、IHクッキングヒーター、グリル付、浄水器、床暖房、食器洗乾燥機、ルーフバルコニー、LDK20畳以上 |
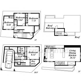
Property name 物件名 | | Rental housing of Setagaya-ku, Tokyo dismounted 5 Gakugeidaigaku Station [Rental apartment ・ Apartment] information Property Details 東京都世田谷区下馬5 学芸大学駅の賃貸住宅[賃貸マンション・アパート]情報 物件詳細 | Transportation facilities 交通機関 | | Tokyu Toyoko Line / Gakugeidaigaku walk 8 minutes 東急東横線/学芸大学 歩8分
| Floor plan details 間取り詳細 | | Hiroshi 8.1 Hiroshi 7.7 Hiroshi 6.4 Hiroshi 5.6 LDK24.3 洋8.1 洋7.7 洋6.4 洋5.6 LDK24.3 | Construction 構造 | | Wooden 木造 | Story 階建 | | 2-story 2階建 | Built years 築年月 | | May 2008 2008年5月 | Nonlife insurance 損保 | | The main 要 | Parking lot 駐車場 | | Free with 付無料 | Move-in 入居 | | Immediately 即 | Trade aspect 取引態様 | | Mediation 仲介 | Conditions 条件 | | Office Unavailable 事務所利用不可 | Property code 取り扱い店舗物件コード | | 2013120694 2013120694 | Total units 総戸数 | | 1 units 1戸 | Fixed-term lease 定期借家 | | 5-year fixed-term lease 定期借家 5年 | Remarks 備考 | | ※ Facility ・ Please confirm it facility is also separate those fee is required. ※設備・施設は別途料金が必要なものもありますので確認下さい。 |
Building appearance建物外観 


Living and room居室・リビング 


Kitchenキッチン 
Bathバス 
Washroom洗面所 
Location
|