Rentals » Kanto » Tokyo » Shinagawa
 
| Railroad-station 沿線・駅 | | JR Keihin Tohoku Line / Omori JR京浜東北線/大森 | Address 住所 | | Shinagawa-ku, Tokyo Minamioi 2 東京都品川区南大井2 | Walk 徒歩 | | 11 minutes 11分 | Rent 賃料 | | 216,000 yen 21.6万円 | Key money 礼金 | | 216,000 yen 21.6万円 | Security deposit 敷金 | | 432,000 yen 43.2万円 | Floor plan 間取り | | 3LDK 3LDK | Occupied area 専有面積 | | 71.94 sq m 71.94m2 | Direction 向き | | South 南 | Type 種別 | | Mansion マンション | Year Built 築年 | | Built 13 years 築13年 | | Crescent Shinagawa Park View Tower クレッセントしながわ公園ビュータワー |
| Campaign in! Brokerage fees property is Thank number キャンペーン開催中!仲介手数料無料物件が多数ございます |
| ◆ ◇ brokerage fees ・ Half price campaign ◇ ◆ Thank number! Free rent negotiations, Rent negotiations, Measuring agency services, Internet free agency service, Lifeline arrangements agency, Of service Lots Classy ・ Holmes! ◆◇仲介手数料無料・半額キャンペーン◇◆多数ございます!フリーレント交渉、家賃交渉、採寸代行サービス、インターネット無料取次ぎサービス、ライフライン手配代行、サービス盛り沢山のクラッシー・ホームズ! |
| Bus toilet by, balcony, Air conditioning, Gas stove correspondence, closet, Flooring, TV interphone, Bathroom Dryer, auto lock, Indoor laundry location, Shoe box, System kitchen, Facing south, Add-fired function bathroom, Corner dwelling unit, Warm water washing toilet seat, Elevator, Seperate, Bathroom vanity, Bicycle-parking space, Delivery Box, Optical fiber, Immediate Available, Two-sided lighting, top floor, 3-neck over stove, Face-to-face kitchen, Sale rent, Otobasu, With grill, Walk-in closet, Guarantor unnecessary, Two tenants consultation, Bike shelter, With gas range, 3 face lighting, Floor heating, 24-hour ventilation system, Earthquake-resistant structure, 3 station more accessible, 3 along the line more accessible, 24 hours garbage disposal Allowed, On-site trash Storage, LDK12 tatami mats or more, Door to the washroom, BS, Guarantee company Available バストイレ別、バルコニー、エアコン、ガスコンロ対応、クロゼット、フローリング、TVインターホン、浴室乾燥機、オートロック、室内洗濯置、シューズボックス、システムキッチン、南向き、追焚機能浴室、角住戸、温水洗浄便座、エレベーター、洗面所独立、洗面化粧台、駐輪場、宅配ボックス、光ファイバー、即入居可、2面採光、最上階、3口以上コンロ、対面式キッチン、分譲賃貸、オートバス、グリル付、ウォークインクロゼット、保証人不要、二人入居相談、バイク置場、ガスレンジ付、3面採光、床暖房、24時間換気システム、耐震構造、3駅以上利用可、3沿線以上利用可、24時間ゴミ出し可、敷地内ごみ置き場、LDK12畳以上、洗面所にドア、BS、保証会社利用可 |
Property name 物件名 | | Rental housing, Shinagawa-ku, Tokyo Minamioi 2 Omori Station [Rental apartment ・ Apartment] information Property Details 東京都品川区南大井2 大森駅の賃貸住宅[賃貸マンション・アパート]情報 物件詳細 | Transportation facilities 交通機関 | | JR Keihin Tohoku Line / Ayumi Omori 11 minutes JR Keihin Tohoku Line / Oimachi walk 25 minutes Keikyu main line / Omorikaigan step 6 minutes JR京浜東北線/大森 歩11分 JR京浜東北線/大井町 歩25分 京急本線/大森海岸 歩6分
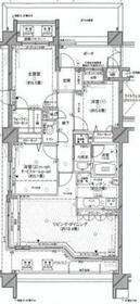
| Floor plan details 間取り詳細 | | Hiroshi 6.5 Hiroshi 5.1 Hiroshi 5 LDK12.4 洋6.5 洋5.1 洋5 LDK12.4 | Construction 構造 | | Steel rebar 鉄骨鉄筋 | Story 階建 | | 13th floor / 13-story 13階/13階建 | Built years 築年月 | | November 2001 2001年11月 | Nonlife insurance 損保 | | The main 要 | Move-in 入居 | | Immediately 即 | Trade aspect 取引態様 | | Mediation 仲介 | Conditions 条件 | | Single person Allowed / Two people Available 単身者可/二人入居可 | Property code 取り扱い店舗物件コード | | HS1102 HS1102 | Guarantor agency 保証人代行 | | Guarantee company Available Please contact us for details. 保証会社利用可 詳細はお問合せ下さい。 | Other expenses ほか諸費用 | | Key replacement costs 鍵交換費用 | Remarks 備考 | | Sale is apartment on the top floor angle room! 分譲マンションの最上階角部屋です! | Area information 周辺情報 | | Omori Station Building RaRa (shopping center) until 1020m Maibasuketto Minamioi 3-chome (super) up to 323m wells Park pharmacy Omori Kaizuka store up to (drugstore) 1038mTSUTAYA Omori Station East Exit Store (video rental) up to 904m Isuzu hospital ( 大森駅ビルRaRa(ショッピングセンター)まで1020mまいばすけっと南大井3丁目店(スーパー)まで323mウェルパーク薬局大森貝塚店(ドラッグストア)まで1038mTSUTAYA大森駅東口店(レンタルビデオ)まで904mいすゞ病院(病院)まで612m品川水神郵便局(郵便局)まで591m |
Living and room居室・リビング 
Building appearance建物外観 

Living and room居室・リビング 

Kitchenキッチン 
Bathバス 
Toiletトイレ 
Other room spaceその他部屋・スペース 
Washroom洗面所 
Entrance玄関 

Lobbyロビー 
Other common areasその他共有部分 
Location
|