Rentals » Kanto » Tokyo » Shinagawa


Brokerage commissions half Independent wash basin Corner room Condominium type auto lock
Confirmation of vacancy, Preview can be arranged. Please feel free to contact us terms and conditions. Internet posted property together is possible introduction. Shinagawa, Ota-ku, Please leave the Meguro area. Brokerage fees discount Property, Free Rent consultation property and many others
Bus toilet by, balcony, Air conditioning, Gas stove correspondence, closet, Flooring, TV interphone, auto lock, Indoor laundry location, Shoe box, System kitchen, Corner dwelling unit, Elevator, Seperate, Two-burner stove, Bicycle-parking space, Delivery Box, Optical fiber, Outer wall tiling, Immediate Available, A quiet residential area, Two-sided lighting, BS ・ CS, surveillance camera, With lighting, Sale rent, With grill, Deposit 1 month, CS, 3 station more accessible, 3 along the line more accessible, Within a 5-minute walk station, 24 hours garbage disposal Allowed, On-site trash Storage, City gas, BS, High speed Internet correspondence, Key money one month, Guarantee company Available
Railroad-station
Tokyu Ikegami Line / Ebara Nakanobu
Address
Shinagawa-ku, Tokyo Nakanobu 2
Walk
2 min
Rent
95,000 yen
Management expenses
10000 yen
Key money
95,000 yen
Security deposit
95,000 yen
Floor plan
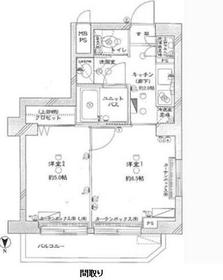
2K
Occupied area
32.39 sq m
Direction
North
Type
Mansion
Year Built
Built 12 years
Property name
Rental housing, Shinagawa-ku, Tokyo Nakanobu 2 Ebara Nakanobu Station [Rental apartment ・ Apartment] information Property Details
Transportation facilities
Tokyu Ikegami Line / Ebara Ayumi Nakanobu 2 minutes
Tokyu Oimachi Line / Ayumi Nakanobu 9 minutes
Toei Asakusa Line / Ayumi Togoshi 10 minutes
Floor plan details
Hiroshi 6.5 Hiroshi 5 K2
Construction
Rebar Con
Story
1st floor / 8-story
Built years
April 2002
Nonlife insurance
20,000 yen two years
Move-in
Immediately
Trade aspect
Mediation
Property code
sk0019-101
Guarantor agency
Guarantee company Available other Unconfirmed
In addition
Total 21,000 yen (Breakdown: The key exchange fee 21,000)
Remarks
Patrol management
Area information
Ebara Nakanobu Tokyu Store Chain (super) up to 176m FamilyMart Nakanobu-chome store (convenience store) up to 76m Firewatch drag Nakanobu store (drugstore) to 161m Shinagawa Ward Ebara Library until the (library) 115m Ebara police station (police station ・ Until alternating) up to 419m Showa University Hospital University Hospital East (hospital) 482m


Building appearance

Building appearance

Living and room

Living and room
Living and room. The same type
The same type

Kitchen

Kitchen

Bath

Bath. The same type
The same type

Toilet

Toilet

Receipt

Receipt. The same type
The same type

Other room space

Other room space

Washroom

Washroom

Security

Security

Other Equipment

Other Equipment. The same type
The same type

Entrance

Entrance

Other common areas

Other common areas