Rentals » Kanto » Tokyo » Shinagawa
 
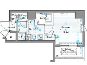
| Railroad-station 沿線・駅 | | JR Yamanote Line / Gotanda JR山手線/五反田 | Address 住所 | | Shinagawa-ku, Tokyo Nishigotanda 7 東京都品川区西五反田7 | Walk 徒歩 | | 8 minutes 8分 | Rent 賃料 | | 92,500 yen 9.25万円 | Management expenses 管理費・共益費 | | 8000 yen 8000円 | Key money 礼金 | | 185,000 yen 18.5万円 | Security deposit 敷金 | | 92,500 yen 9.25万円 | Floor plan 間取り | | One-room ワンルーム | Occupied area 専有面積 | | 23.42 sq m 23.42m2 | Direction 向き | | East 東 | Type 種別 | | Mansion マンション | Year Built 築年 | | Built 10 years 築10年 | | ☆ Built shallow condominium ☆ top floor ・ Corner room 4 wayside available ☆築浅分譲マンション☆ 最上階・角部屋: 4沿線利用可能: |
| ◆ If you hurry, please contact us by phone ◆ ◆ It is possible card settlement of the contract money ◆ ◆ VISA, Master Card Available ◆ ◆お急ぎの方はお電話にてご連絡下さい◆ ◆契約金のカード決済可能です◆ ◆VISA、マスターカード利用可能◆ |
| Bus toilet by, balcony, Air conditioning, Gas stove correspondence, closet, Flooring, TV interphone, Bathroom Dryer, auto lock, Indoor laundry location, Shoe box, System kitchen, Corner dwelling unit, Warm water washing toilet seat, Elevator, Bathroom vanity, Two-burner stove, Bicycle-parking space, CATV, Optical fiber, Outer wall tiling, Immediate Available, Key money unnecessary, A quiet residential area, Two-sided lighting, BS ・ CS, surveillance camera, Stand-alone kitchen, With lighting, Sale rent, With grill, All room Western-style, Deposit 1 month, All living room flooring, Design, 2 wayside Available, Dimple key, CS, Net private line, Leafy residential area, Good view, 24-hour ventilation system, People a sense of light sensor, Seismically isolated structure, Fireproof structure, Earthquake-resistant structure, 2 Station Available, 3 station more accessible, 3 along the line more accessible, Within a 10-minute walk station, Within a 3-minute bus stop walk, Seismic structure, 24 hours garbage disposal Allowed, On-site trash Storage, City gas, Downlight, BS, Year Available, Fiscal year Available, Guarantee company Available バストイレ別、バルコニー、エアコン、ガスコンロ対応、クロゼット、フローリング、TVインターホン、浴室乾燥機、オートロック、室内洗濯置、シューズボックス、システムキッチン、角住戸、温水洗浄便座、エレベーター、洗面化粧台、2口コンロ、駐輪場、CATV、光ファイバー、外壁タイル張り、即入居可、礼金不要、閑静な住宅地、2面採光、BS・CS、防犯カメラ、独立型キッチン、照明付、分譲賃貸、グリル付、全居室洋室、敷金1ヶ月、全居室フローリング、デザイナーズ、2沿線利用可、ディンプルキー、CS、ネット専用回線、緑豊かな住宅地、眺望良好、24時間換気システム、人感照明センサー、免震構造、耐火構造、耐震構造、2駅利用可、3駅以上利用可、3沿線以上利用可、駅徒歩10分以内、バス停徒歩3分以内、制震構造、24時間ゴミ出し可、敷地内ごみ置き場、都市ガス、ダウンライト、BS、年内入居可、年度内入居可、保証会社利用可 |
Property name 物件名 | | Rental housing, Shinagawa-ku, Tokyo Nishigotanda 7 Gotanda Station [Rental apartment ・ Apartment] information Property Details 東京都品川区西五反田7 五反田駅の賃貸住宅[賃貸マンション・アパート]情報 物件詳細 | Transportation facilities 交通機関 | | JR Yamanote Line / Gotanda walk 8 minutes Tokyu Ikegami Line / Osaki Hirokoji walk 6 minutes Tokyu Meguro Line / Fudomae walk 7 minutes JR山手線/五反田 歩8分 東急池上線/大崎広小路 歩6分 東急目黒線/不動前 歩7分
| Floor plan details 間取り詳細 | | Hiroshi 8.1 洋8.1 | Construction 構造 | | Steel rebar 鉄骨鉄筋 | Story 階建 | | 13th floor / 13-story 13階/13階建 | Built years 築年月 | | November 2004 2004年11月 | Nonlife insurance 損保 | | 15,000 yen two years 1.5万円2年 | Move-in 入居 | | Immediately 即 | Trade aspect 取引態様 | | Mediation 仲介 | Property code 取り扱い店舗物件コード | | yt0307 yt0307 | In addition ほか初期費用 | | Total 15,800 yen (Breakdown: The key exchange fee 15,750 yen) 合計1.58万円(内訳:鍵交換代1.575万円) | Remarks 備考 | | Commuting management 通勤管理 | Area information 周辺情報 | | Family Mart (convenience store) to 200m ファミリーマート(コンビニ)まで200m |
Building appearance建物外観 
Kitchenキッチン 

Bathバス 
Toiletトイレ 
Entranceエントランス 

Location
|