1985March
120,000 yen, 2DK, 10th floor / 11-storey, 40 sq m
Rentals » Kanto » Tokyo » Shinjuku ward

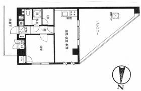
| Railroad-station 沿線・駅 | | Tokyo Metro Tozai Line / Waseda 東京メトロ東西線/早稲田 | Address 住所 | | Shinjuku-ku, Tokyo Nishi-Waseda 2 東京都新宿区西早稲田2 | Walk 徒歩 | | 4 minutes 4分 | Rent 賃料 | | 120,000 yen 12万円 | Key money 礼金 | | 120,000 yen 12万円 | Security deposit 敷金 | | 240,000 yen 24万円 | Floor plan 間取り | | 2DK 2DK | Occupied area 専有面積 | | 40 sq m 40m2 | Direction 向き | | South 南 | Type 種別 | | Mansion マンション | Year Built 築年 | | 30 years old 築30年 | | Bus toilet by, Air conditioning, Gas stove correspondence, Indoor laundry location バストイレ別、エアコン、ガスコンロ対応、室内洗濯置 |
Property name 物件名 | | Rental housing, Shinjuku-ku, Tokyo Nishi 2 Waseda Station [Rental apartment ・ Apartment] information Property Details 東京都新宿区西早稲田2 早稲田駅の賃貸住宅[賃貸マンション・アパート]情報 物件詳細 | Transportation facilities 交通機関 | | Tokyo Metro Tozai Line / Waseda walk 4 minutes 東京メトロ東西線/早稲田 歩4分
| Floor plan details 間取り詳細 | | Hiroshi 9.6 Hiroshi 6.2 DK9.6 洋9.6 洋6.2 DK9.6 | Construction 構造 | | Steel rebar 鉄骨鉄筋 | Story 階建 | | 10th floor / 11-storey 10階/11階建 | Built years 築年月 | | March 1985 1985年3月 | Nonlife insurance 損保 | | 20,000 yen two years 2万円2年 | Move-in 入居 | | Immediately 即 | Trade aspect 取引態様 | | Mediation 仲介 | Remarks 備考 | | Commuting management 通勤管理 |

Location
|