Rentals » Kanto » Tokyo » Shinjuku ward


Residence light
Limited Time Offer [Brokerage commissions half] Already the room renovation
Thank you for visiting our Listing Details page. "Pitattohausu Nishikoyama store" in rent in addition to this property ・ We handle a large number of buying and selling property. Please contact us by all means feel free to. We look forward to.
Bus toilet by, Gas stove correspondence, closet, Flooring, TV interphone, Bathroom Dryer, Shoe box, Add-fired function bathroom, Corner dwelling unit, Warm water washing toilet seat, Two-burner stove, Bicycle-parking space, Immediate Available, With lighting, bay window, All room storage, With grill, Deposit 1 month, Two tenants consultation, Bike shelter, All living room flooring, 2 wayside Available, Nakate 0.54 months, Storeroom, terrace, Interior renovation completed, Air conditioning three, Closet 2 places, Room share consultation, 3 station more accessible, Within a 5-minute walk station, Southeast direction, City gas, shower room, Entrance storage, Key money one month, Ventilation good
Railroad-station
Toei Oedo Line / Nishi Chome
Address
Tokyo Nishi-Shinjuku, Shinjuku-ku, 5
Walk
4 minutes
Rent
140,000 yen
Key money
140,000 yen
Security deposit
140,000 yen
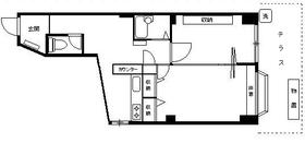
Floor plan
2DK
Occupied area
40 sq m
Direction
Southeast
Type
Mansion
Year Built
Built 35 years
Property name
Rental housing Tokyo Nishi-Shinjuku, Shinjuku-ku, 5 Nishi Chome station [Rental apartment ・ Apartment] information Property Details
Transportation facilities
Toei Oedo Line / Nishi Chome walk 4 minutes
Toei Oedo Line / Tochomae walk 9 minutes
Tokyo Metro Marunouchi Line / Nakanosakaue step 11 minutes
Construction
Rebar Con
Story
1st floor / Three-story
Built years
June 1979
Nonlife insurance
20,000 yen two years
Move-in
Immediately
Trade aspect
Mediation
Conditions
Two people Available / Room share consultation
Remarks
Renovation: 2011 March indoor room full renovation
Area information
Meat of Hanamasa Nishi store (supermarket) up to 640m life Nakanosakaue shop (super) up to 639m Sunkus Nishi Chome store (convenience store) up to 329m Seven-Eleven twelve companies store (convenience store) up to 474m drag Seimusu Nishi-Shinjuku 6-chome pharmacy (drag


Receipt

Receipt

Building appearance

Building appearance
Building appearance. Exterior Photos
Exterior Photos

Living and room

Living and room. Western-style (2)
Western-style (2)

Living and room. Western-style (2) Closet (there is a wealth of storage. )
Western-style (2) Closet (there is a wealth of storage. )

Living and room. It can also be used as a 1DK.
It can also be used as a 1DK.

Living and room. There is also a bay window to the Western-style (1).
There is also a bay window to the Western-style (1).

Kitchen

Kitchen. DK
DK

Kitchen. Two-burner gas stove with grill (leave-product)
Two-burner gas stove with grill (leave-product)

Bath

Bath. Reheating function with bus
Reheating function with bus

Toilet

Toilet. Warm water washing toilet seat
Warm water washing toilet seat

Receipt

Receipt. There is a storeroom on the terrace.
There is a storeroom on the terrace.

Other Equipment

Other Equipment. Laundry Area
Laundry Area

Other

Other. Wide terrace Yes. You can put even large bike.
Wide terrace Yes. You can put even large bike.



Location