Rentals » Kanto » Tokyo » Shinjuku ward
 
| Railroad-station 沿線・駅 | | Tokyo Metro Tozai Line / Waseda 東京メトロ東西線/早稲田 | Address 住所 | | Shinjuku-ku, Tokyo Nishiwaseda 1 東京都新宿区西早稲田1 | Walk 徒歩 | | 10 minutes 10分 | Rent 賃料 | | 90,000 yen 9万円 | Management expenses 管理費・共益費 | | 9500 yen 9500円 | Floor plan 間取り | | 1K 1K | Occupied area 専有面積 | | 25.81 sq m 25.81m2 | Direction 向き | | North 北 | Type 種別 | | Mansion マンション | Year Built 築年 | | Built in one year 築1年 | | Makes design Waseda メイクスデザイン早稲田 |
| ☆ Half a month mediation fee in our shop of rent~Introduction at the maximum free ☆ ☆当店では仲介手数料が賃料の半月~最大無料にて紹介☆ |
| [2013] Built shallow ・ Fully equipped apartment! Station 1-minute walk of the good location! Apartment around bright living environment is also good! Please feel free to contact us. 【2013年】築浅・設備充実マンション!駅徒歩1分の好立地!マンション周辺は明るく住環境も良好です!お気軽にお問い合せ下さい。 |
| Bus toilet by, balcony, Air conditioning, Gas stove correspondence, closet, Flooring, TV interphone, Bathroom Dryer, auto lock, Indoor laundry location, Shoe box, System kitchen, Corner dwelling unit, Warm water washing toilet seat, Dressing room, Elevator, Seperate, Bathroom vanity, Bicycle-parking space, Delivery Box, CATV, Optical fiber, Outer wall tiling, Immediate Available, Two-sided lighting, BS ・ CS, surveillance camera, Stand-alone kitchen, Pets Negotiable, With lighting, All room storage, Single person consultation, All living room flooring, Design, Entrance hall, Flat to the station, Air Conditioning All rooms, Double lock key, Within built 2 years, Flat terrain, Student Counseling, People a sense of light sensor, Fireproof structure, Earthquake-resistant structure, All rooms are two-sided lighting, 3 station more accessible, 3 along the line more accessible, Station, Within a 5-minute walk station, 24 hours garbage disposal Allowed, On-site trash Storage, City gas, Door to the washroom, Entrance storage, indirect lighting, Auto Light, Downlight, Deposit ・ Key money unnecessary, All rooms with lighting, Ventilation good バストイレ別、バルコニー、エアコン、ガスコンロ対応、クロゼット、フローリング、TVインターホン、浴室乾燥機、オートロック、室内洗濯置、シューズボックス、システムキッチン、角住戸、温水洗浄便座、脱衣所、エレベーター、洗面所独立、洗面化粧台、駐輪場、宅配ボックス、CATV、光ファイバー、外壁タイル張り、即入居可、2面採光、BS・CS、防犯カメラ、独立型キッチン、ペット相談、照明付、全居室収納、単身者相談、全居室フローリング、デザイナーズ、玄関ホール、駅まで平坦、エアコン全室、ダブルロックキー、築2年以内、平坦地、学生相談、人感照明センサー、耐火構造、耐震構造、全室2面採光、3駅以上利用可、3沿線以上利用可、駅前、駅徒歩5分以内、24時間ゴミ出し可、敷地内ごみ置き場、都市ガス、洗面所にドア、玄関収納、間接照明、オートライト、ダウンライト、敷金・礼金不要、全室照明付、通風良好 |
Property name 物件名 | | Rental housing, Shinjuku-ku, Tokyo Nishi 1 Waseda Station [Rental apartment ・ Apartment] information Property Details 東京都新宿区西早稲田1 早稲田駅の賃貸住宅[賃貸マンション・アパート]情報 物件詳細 | Transportation facilities 交通機関 | | Tokyo Metro Tozai Line / Waseda walk 10 minutes Toden Arakawa Line / Waseda walk 1 minute Tokyo Metro Fukutoshin / Nishiwaseda walk 14 minutes 東京メトロ東西線/早稲田 歩10分 都電荒川線/早稲田 歩1分 東京メトロ副都心線/西早稲田 歩14分
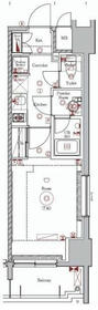
| Floor plan details 間取り詳細 | | Hiroshi 7.8 K2 洋7.8 K2 | Construction 構造 | | Rebar Con 鉄筋コン | Story 階建 | | 1st floor / 11-storey 1階/11階建 | Built years 築年月 | | August 2013 2013年8月 | Nonlife insurance 損保 | | 16,800 yen two years 1.68万円2年 | Parking lot 駐車場 | | Neighborhood 150m31500 yen 近隣150m31500円 | Move-in 入居 | | Immediately 即 | Trade aspect 取引態様 | | Mediation 仲介 | Conditions 条件 | | Single person Allowed / Pets Negotiable 単身者可/ペット相談 | Property code 取り扱い店舗物件コード | | tm2013120308 tm2013120308 | Deposit buildup 敷金積み増し | | In the case of pet breeding deposit 1 month (gross) ペット飼育の場合敷金1ヶ月(総額) | Guarantor agency 保証人代行 | | There assurance company use 必 plan 保証会社利用必 プラン有り | In addition ほか初期費用 | | Total 19,500 yen (Breakdown: The key exchange fee 19440 yen) 合計1.95万円(内訳:鍵交換代19440円) | Remarks 備考 | | Toden Arakawa Line Waseda Station 1-minute walk / Tokyo Metro Tozai Line 800m to Waseda Station / Lawson Nishiwaseda 350m to chome / Patrol management 都電荒川線早稲田駅徒歩1分/東京メトロ東西線 早稲田駅まで800m/ローソン 西早稲田一丁目まで350m/巡回管理 | Area information 周辺情報 | | Tokyo Metro Tozai Line Waseda Station 1900m to 800m Lawson Nishi-chome to (other) (convenience store) up to 350m Maibasuketto Nishi 1-chome (super) 150m Social Insurance Central General Hospital until the (hospital) 東京メトロ東西線 早稲田駅(その他)まで800mローソン 西早稲田一丁目(コンビニ)まで350mまいばすけっと西早稲田1丁目店(スーパー)まで150m社会保険中央総合病院(病院)まで1900m |
Building appearance建物外観 
Living and room居室・リビング 
 Floor of white keynote
白基調の間取り
Kitchenキッチン  2-neck system Kitchen
2口システムキッチン
Bathバス  With bathroom dryer
浴室乾燥機付き
Toiletトイレ 
Receipt収納 
Other room spaceその他部屋・スペース  Spacious floor plan
広々の間取り
Washroom洗面所 
Entranceエントランス 
Other common areasその他共有部分 
Supermarketスーパー  Maibasuketto Nishiwaseda 150m to 1-chome (super)
まいばすけっと西早稲田1丁目店(スーパー)まで150m
Convenience storeコンビニ  Lawson Nishiwaseda chome up (convenience store) 350m
ローソン 西早稲田一丁目(コンビニ)まで350m
Otherその他  Tokyo Metro Tozai Line 800m to Waseda Station (Other)
東京メトロ東西線 早稲田駅(その他)まで800m
|