|
Railroad-station 沿線・駅 | | JR Chuo Line / Nishiogikubo JR中央線/西荻窪 |
Address 住所 | | Suginami-ku, Tokyo Nishiogikita 2 東京都杉並区西荻北2 |
Walk 徒歩 | | 9 minutes 9分 |
Rent 賃料 | | 60,000 yen 6万円 |
Management expenses 管理費・共益費 | | 1000 yen 1000円 |
Key money 礼金 | | 60,000 yen 6万円 |
Security deposit 敷金 | | 60,000 yen 6万円 |
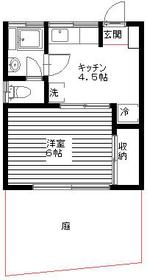
Floor plan 間取り | | 1K 1K |
Occupied area 専有面積 | | 24.03 sq m 24.03m2 |
Direction 向き | | South 南 |
Type 種別 | | Apartment アパート |
Year Built 築年 | | Built 40 years 築40年 |
|
Azalea Residence
つつじレジデンス
|
|
Community 38 years Nishiogikubo rent ・ To Nishiogikubo three stores ・ Beach Commercial real estate
地域密着38年西荻窪賃貸・西荻窪に3店舗・浜商不動産
|
|
Lush garden with! Showa retro room! Recommended for those housed rich and a lot of luggage!
緑ゆたかなお庭つき!昭和レトロなお部屋です!収納豊富で荷物が多い方におすすめ!
|
|
Bus toilet by, Air conditioning, Gas stove correspondence, Flooring, Indoor laundry location, Yang per good, Facing south, Two-burner stove, Immediate Available, A quiet residential area, Deposit 1 month, 2 wayside Available, Housing 1 between a half, Leafy residential area, garden, 3 station more accessible, Within a 10-minute walk station, City gas, Key money one month
バストイレ別、エアコン、ガスコンロ対応、フローリング、室内洗濯置、陽当り良好、南向き、2口コンロ、即入居可、閑静な住宅地、敷金1ヶ月、2沿線利用可、収納1間半、緑豊かな住宅地、庭、3駅以上利用可、駅徒歩10分以内、都市ガス、礼金1ヶ月
|
Property name 物件名 | | Rental housing, Suginami-ku, Tokyo Nishiogikita 2 Nishiogikubo Station [Rental apartment ・ Apartment] information Property Details 東京都杉並区西荻北2 西荻窪駅の賃貸住宅[賃貸マンション・アパート]情報 物件詳細 |
Transportation facilities 交通機関 | | JR Chuo Line / Nishiogikubo walk 9 minutes JR Chuo Line / Ogikubo walk 17 minutes Seibu Shinjuku Line / Ayumi Kamiigusa 19 minutes JR中央線/西荻窪 歩9分 JR中央線/荻窪 歩17分 西武新宿線/上井草 歩19分
|
Floor plan details 間取り詳細 | | Hiroshi 6 K4.5 洋6 K4.5 |
Construction 構造 | | Wooden 木造 |
Story 階建 | | 1st floor / 2-story 1階/2階建 |
Built years 築年月 | | January 1975 1975年1月 |
Move-in 入居 | | Immediately 即 |
Trade aspect 取引態様 | | Mediation 仲介 |
Property code 取り扱い店舗物件コード | | 521102 521102 |
Intermediate fee 仲介手数料 | | 1.08 months 1.08ヶ月 |
Remarks 備考 | | JR Chuo Line Ogikubo Station walk 17 minutes / 450m to Seven-Eleven / 450m to Denny's JR中央線荻窪駅徒歩17分/セブンイレブンまで450m/デニーズまで450m |
Area information 周辺情報 | | Seven-Eleven 450m up (convenience store) up to 450m Denny's (Other) セブンイレブン(コンビニ)まで450mデニーズ(その他)まで450m |