1992October
66,000 yen, 1K, 1st floor / 2-story, 19.87 sq m
Rentals » Kanto » Tokyo » Suginami
 
| Railroad-station 沿線・駅 | | JR Chuo Line / Ogikubo JR中央線/荻窪 | Address 住所 | | Suginami-ku, Tokyo Minamiogikubo 4 東京都杉並区南荻窪4 | Walk 徒歩 | | 4 minutes 4分 | Rent 賃料 | | 66,000 yen 6.6万円 | Management expenses 管理費・共益費 | | 3000 yen 3000円 | Key money 礼金 | | 66,000 yen 6.6万円 | Security deposit 敷金 | | 132,000 yen 13.2万円 | Floor plan 間取り | | 1K 1K | Occupied area 専有面積 | | 19.87 sq m 19.87m2 | Direction 向き | | South 南 | Type 種別 | | Apartment アパート | Year Built 築年 | | Built 22 years 築22年 | | Good location of station 4 minutes walk 駅徒歩4分の好立地 |
| Flooring Bus toilet by Washing machine in the room フローリング バストイレ別 室内洗濯機置場 |
| Bus toilet by, Air conditioning, closet, Flooring, Indoor laundry location, Corner dwelling unit, CATV, A quiet residential area, BS バストイレ別、エアコン、クロゼット、フローリング、室内洗濯置、角住戸、CATV、閑静な住宅地、BS |
Property name 物件名 | | Rental housing, Suginami-ku, Tokyo Minamiogikubo 4 Ogikubo Station [Rental apartment ・ Apartment] information Property Details 東京都杉並区南荻窪4 荻窪駅の賃貸住宅[賃貸マンション・アパート]情報 物件詳細 | Transportation facilities 交通機関 | | JR Chuo Line / Ogikubo walk 4 minutes JR Chuo Line / Nishiogikubo walk 21 minutes JR Chuo Line / Asagaya walk 26 minutes JR中央線/荻窪 歩4分 JR中央線/西荻窪 歩21分 JR中央線/阿佐ヶ谷 歩26分
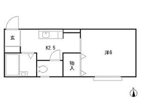
| Floor plan details 間取り詳細 | | Hiroshi 6 K2.5 洋6 K2.5 | Construction 構造 | | Light-gauge steel 軽量鉄骨 | Story 階建 | | 1st floor / 2-story 1階/2階建 | Built years 築年月 | | October 1992 1992年10月 | Nonlife insurance 損保 | | The main 要 | Move-in 入居 | | Immediately 即 | Trade aspect 取引態様 | | Mediation 仲介 | Area information 周辺情報 | | UNIQLO LUMINE Ogikubo store (shopping center) to 525m fresh market Akidai Ogikubo store (supermarket) up to 559m Seiyu Ogikubo store (supermarket) up to 571m Seven-Eleven Ogikubo Station store (convenience store) to 287mSTORE100 Ogikubo South Exit store (convenience store) up to 341m drag Segami Ogikubo Nishiten ユニクロルミネ荻窪店(ショッピングセンター)まで525m生鮮市場アキダイ荻窪店(スーパー)まで559m西友荻窪店(スーパー)まで571mセブンイレブン荻窪駅前店(コンビニ)まで287mSTORE100荻窪南口店(コンビニ)まで341mドラッグセガミ荻窪西店(ドラッグストア)まで480m |
Building appearance建物外観 

Location
|