1994August
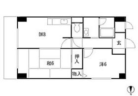
134,000 yen, 2DK, 4th floor / 5-story, 50.2 sq m
Rentals » Kanto » Tokyo » Suginami
 
| Railroad-station 沿線・駅 | | Tokyo Metro Marunouchi Line / Honancho 東京メトロ丸ノ内線/方南町 | Address 住所 | | Suginami-ku, Tokyo Honan 2 東京都杉並区方南2 | Walk 徒歩 | | 2 min 2分 | Rent 賃料 | | 134,000 yen 13.4万円 | Security deposit 敷金 | | 268,000 yen 26.8万円 | Floor plan 間取り | | 2DK 2DK | Occupied area 専有面積 | | 50.2 sq m 50.2m2 | Direction 向き | | East 東 | Type 種別 | | Mansion マンション | Year Built 築年 | | Built 20 years 築20年 | | A 2-minute walk from the station of origin Commute ・ Shopping is convenient 始発駅から徒歩2分 通勤・買物便利です |
| You can use widely in the plates with the 6-mat Japanese-style. 6畳の和室には板の間つきで広く使えます。 |
| Bus toilet by, Air conditioning, Gas stove correspondence, Flooring, Indoor laundry location, Corner dwelling unit, Elevator, Seperate, Bicycle-parking space, closet, CATV, Starting station, Within a 5-minute walk station バストイレ別、エアコン、ガスコンロ対応、フローリング、室内洗濯置、角住戸、エレベーター、洗面所独立、駐輪場、押入、CATV、始発駅、駅徒歩5分以内 |
Property name 物件名 | | Rental housing, Suginami-ku, Tokyo Honan 2 Honancho Station [Rental apartment ・ Apartment] information Property Details 東京都杉並区方南2 方南町駅の賃貸住宅[賃貸マンション・アパート]情報 物件詳細 | Transportation facilities 交通機関 | | Tokyo Metro Marunouchi Line / Honancho step 2 minutes 東京メトロ丸ノ内線/方南町 歩2分
| Floor plan details 間取り詳細 | | Sum 6 Hiroshi 6 DK8 和6 洋6 DK8 | Construction 構造 | | Rebar Con 鉄筋コン | Story 階建 | | 4th floor / 5-story 4階/5階建 | Built years 築年月 | | August 1994 1994年8月 | Nonlife insurance 損保 | | The main 要 | Parking lot 駐車場 | | Neighborhood 100m30000 yen 近隣100m30000円 | Move-in 入居 | | Immediately 即 | Trade aspect 取引態様 | | Mediation 仲介 | Property code 取り扱い店舗物件コード | | C-921 C-921 | Area information 周辺情報 | | Summit store Izumi store (supermarket) up to 362m Three F Suginami Honancho store (convenience store) up to 89m Matsumotokiyoshi Honancho shop (drugstore) to 257m Suginami Ward Honan elementary school until the (elementary school) 688m Suginami Honan two post office until the (post office) サミットストア和泉店(スーパー)まで362mスリーエフ杉並方南町店(コンビニ)まで89mマツモトキヨシ方南町店(ドラッグストア)まで257m杉並区立方南小学校(小学校)まで688m杉並方南二郵便局(郵便局)まで180mみずほ銀行方南町支店(銀行)まで356m |
Living and room居室・リビング 
Building appearance建物外観 

Living and room居室・リビング 

Kitchenキッチン 

Bathバス 
Toiletトイレ 
Receipt収納 

Washroom洗面所 
Balconyバルコニー 
Entrance玄関 
Supermarketスーパー  362m until the Summit store Izumi store (Super)
サミットストア和泉店(スーパー)まで362m
Convenience storeコンビニ  Three F 89m to Suginami Honancho store (convenience store)
スリーエフ杉並方南町店(コンビニ)まで89m
Dorakkusutoaドラックストア  Matsumotokiyoshi Honancho to the store (drugstore) 257m
マツモトキヨシ方南町店(ドラッグストア)まで257m
Post office郵便局  180m to Suginami Honan two post office (post office)
杉並方南二郵便局(郵便局)まで180m
Location
|