1980
750,000 yen, 5LDK, Three-story, 250 sq m
Rentals » Kanto » Tokyo » Suginami
 
| Railroad-station 沿線・駅 | | JR Chuo Line / Ogikubo JR中央線/荻窪 | Address 住所 | | Suginami-ku, Tokyo Amanuma 1 東京都杉並区天沼1 | Walk 徒歩 | | 10 minutes 10分 | Rent 賃料 | | 750,000 yen 75万円 | Key money 礼金 | | 1.5 million yen 150万円 | Security deposit 敷金 | | 1.5 million yen 150万円 | Floor plan 間取り | | 5LDK 5LDK | Occupied area 専有面積 | | 250 sq m 250m2 | Direction 向き | | South 南 | Type 種別 | | Residential home 一戸建て | Year Built 築年 | | Built 34 years 築34年 | | Ogikubo Rental House 荻窪貸し邸 |
| balcony, Facing south, Pets Negotiable, 2 wayside Available, Flat to the station, Office consultation, Musical Instruments consultation, Room share consultation, 2 Station Available, Within a 10-minute walk station バルコニー、南向き、ペット相談、2沿線利用可、駅まで平坦、事務所相談、楽器相談、ルームシェア相談、2駅利用可、駅徒歩10分以内 |
Property name 物件名 | | Rental housing, Suginami-ku, Tokyo Amanuma 1 Ogikubo Station [Rental apartment ・ Apartment] information Property Details 東京都杉並区天沼1 荻窪駅の賃貸住宅[賃貸マンション・アパート]情報 物件詳細 | Transportation facilities 交通機関 | | JR Chuo Line / Ogikubo walk 10 minutes JR Chuo Line / Asagaya walk 13 minutes Tokyo Metro Marunouchi Line / Minami Asagaya walk 15 minutes JR中央線/荻窪 歩10分 JR中央線/阿佐ヶ谷 歩13分 東京メトロ丸ノ内線/南阿佐ヶ谷 歩15分
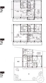
| Floor plan details 間取り詳細 | | Sum 13 sum 6 Hiroshi 34 Hiroshi 18 Hiroshi 8 40 和13 和6 洋34 洋18 洋8 40 | Construction 構造 | | Rebar Con 鉄筋コン | Story 階建 | | Three-story 3階建 | Built years 築年月 | | 1980 March 1980年3月 | Nonlife insurance 損保 | | The main 要 | Move-in 入居 | | Immediately 即 | Trade aspect 取引態様 | | Agency 代理 | Conditions 条件 | | Children Allowed / Pets Negotiable / Musical Instruments consultation / Office use consultation / Room share consultation 子供可/ペット相談/楽器相談/事務所利用相談/ルームシェア相談 | Balcony area バルコニー面積 | | 50 sq m 50m2 | Remarks 備考 | | Renovation: May 2013 indoor リフォーム:2013年5月室内 | Area information 周辺情報 | | Diamond district until the (shopping center) to 694m Maibasuketto Ogikubo Station Minamiten (super) to 615mSTORE100 Suginami Ogikubo 3-chome (convenience store) up to 471m FamilyMart Amanuma overpass store (convenience store) up to 453m Seven-Eleven Asagayakita Nakadori store (convenience store) ダイヤ街(ショッピングセンター)まで694mまいばすけっと荻窪駅南店(スーパー)まで615mSTORE100杉並荻窪3丁目店(コンビニ)まで471mファミリーマート天沼陸橋店(コンビニ)まで453mセブンイレブン阿佐谷北仲通り店(コンビニ)まで351mすき家荻窪三丁目店(飲食店)まで474m |
Building appearance建物外観 
Living and room居室・リビング 


Other room spaceその他部屋・スペース 



Balconyバルコニー 
Garden庭 
Parking lot駐車場 
Otherその他 

|