Rentals » Kanto » Tokyo » Suginami
 
| Railroad-station 沿線・駅 | | Inokashira / Nishieifuku 京王井の頭線/西永福 | Address 住所 | | Suginami-ku, Tokyo Hamadayama 3 東京都杉並区浜田山3 | Walk 徒歩 | | 2 min 2分 | Rent 賃料 | | 115,000 yen 11.5万円 | Security deposit 敷金 | | 230,000 yen 23万円 | Floor plan 間取り | | 3K 3K | Occupied area 専有面積 | | 37.8 sq m 37.8m2 | Direction 向き | | South 南 | Type 種別 | | Residential home 一戸建て | Year Built 築年 | | Built 35 years 築35年 | | Brokerage commission is half a month. Initial cost split Allowed, Card is a settlement possible. 仲介手数料は半月分です。初期費用分割可、カード決済可です。 |
| There are single-family of Nishieifuku Station 2-minute walk. Day is good per facing south. System kitchen, Reheating function with a tub, etc., Facilities has been enhanced. Fixed-term lease, compared to the normal rented house, Rent is cheaper, Grade of the property is high. 西永福駅徒歩2分の戸建でございます。南向きにつき日当たり良好です。システムキッチン、追い焚き機能付き浴槽等、設備が充実しております。定期借家は普通借家に比べ、賃料が安価で、物件のグレードが高いです。 |
| Bus toilet by, Gas stove correspondence, closet, Flooring, Indoor laundry location, Yang per good, Shoe box, System kitchen, Facing south, Add-fired function bathroom, Corner dwelling unit, Dressing room, Seperate, Bathroom vanity, CATV, Optical fiber, Immediate Available, Key money unnecessary, top floor, 3-neck over stove, Pets Negotiable, With lighting, Otobasu, With grill, CATV Internet, Private garden, Net private line, The window in the bathroom, Musical Instruments consultation, Four direction room, 3 station more accessible, Door to the washroom, Entrance storage, High speed Internet correspondence, Renovation, Guarantee company Available, Ventilation good バストイレ別、ガスコンロ対応、クロゼット、フローリング、室内洗濯置、陽当り良好、シューズボックス、システムキッチン、南向き、追焚機能浴室、角住戸、脱衣所、洗面所独立、洗面化粧台、CATV、光ファイバー、即入居可、礼金不要、最上階、3口以上コンロ、ペット相談、照明付、オートバス、グリル付、CATVインターネット、専用庭、ネット専用回線、浴室に窓、楽器相談、四方角部屋、3駅以上利用可、洗面所にドア、玄関収納、高速ネット対応、リノベーション、保証会社利用可、通風良好 |
Property name 物件名 | | Rental housing, Suginami-ku, Tokyo Hamadayama 3 Nishieifuku Station [Rental apartment ・ Apartment] information Property Details 東京都杉並区浜田山3 西永福駅の賃貸住宅[賃貸マンション・アパート]情報 物件詳細 | Transportation facilities 交通機関 | | Inokashira / Nishieifuku walk 2 minutes Inokashira / Hamadayama walk 13 minutes Inokashira / Eifukucho step 12 minutes 京王井の頭線/西永福 歩2分 京王井の頭線/浜田山 歩13分 京王井の頭線/永福町 歩12分
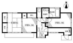
| Floor plan details 間取り詳細 | | Sum 6 Hiroshi 5.5 Hiroshi 4.5 K3.5 和6 洋5.5 洋4.5 K3.5 | Construction 構造 | | Wooden 木造 | Story 階建 | | Bungalow 平屋 | Built years 築年月 | | May 1979 1979年5月 | Nonlife insurance 損保 | | 25,000 yen two years 2.5万円2年 | Move-in 入居 | | Immediately 即 | Trade aspect 取引態様 | | Mediation 仲介 | Conditions 条件 | | Two people Available / Children Allowed / Pets Negotiable / Musical Instruments consultation 二人入居可/子供可/ペット相談/楽器相談 | Property code 取り扱い店舗物件コード | | 1676 1676 | Fixed-term lease 定期借家 | | Fixed term lease 4 years 定期借家 4年 | Intermediate fee 仲介手数料 | | 0.5 months 0.5ヶ月 | Remarks 備考 | | 267m until the Summit store Nishieifuku shop / 90m until the Seven-Eleven Suginami Nishieifuku Station Kitamise サミットストア西永福店まで267m/セブンイレブン杉並西永福駅北店まで90m | Area information 周辺情報 | | Summit store Nishieifuku store (supermarket) to 1062m Omiya nursery school (kindergarten to 267m Seven-Eleven Suginami Nishieifuku Station Kitamise up (convenience store) 90m Suginami Ward Hamadayama elementary school (elementary school) ・ 831m 592m until the medical corporation Association of Kabashima Board Kabashima hospital (hospital) to 344m Suginami Ward Yongfu Library (library) to the nursery) サミットストア西永福店(スーパー)まで267mセブンイレブン杉並西永福駅北店(コンビニ)まで90m杉並区立浜田山小学校(小学校)まで1062m大宮保育園(幼稚園・保育園)まで592m医療法人社団樺島会樺島病院(病院)まで344m杉並区立永福図書館(図書館)まで831m |
Building appearance建物外観 
Living and room居室・リビング 
 This flooring.
フローリング仕様です。
Kitchenキッチン  System kitchen.
システムキッチンです。
Bathバス  It is Reheating function with tub.
追い焚き機能付き浴槽です。
Other room spaceその他部屋・スペース  Day is good.
日当たり良好です。
Washroom洗面所  Independence is a wash basin.
独立洗面台です。
Otherその他  You can use comfortably.
快適にお使いいただけます。
Location
|