Rentals » Kanto » Tokyo » Suginami
 
| Railroad-station 沿線・駅 | | Tokyo Metro Marunouchi Line / Shin-Nakano 東京メトロ丸ノ内線/新中野 | Address 住所 | | Suginami-ku, Tokyo Wada 1 東京都杉並区和田1 | Walk 徒歩 | | 6 minutes 6分 | Rent 賃料 | | 103,000 yen 10.3万円 | Management expenses 管理費・共益費 | | 5000 Yen 5000円 | Key money 礼金 | | 103,000 yen 10.3万円 | Security deposit 敷金 | | 103,000 yen 10.3万円 | Floor plan 間取り | | 2K 2K | Occupied area 専有面積 | | 35.1 sq m 35.1m2 | Direction 向き | | South 南 | Type 種別 | | Mansion マンション | Year Built 築年 | | Built 28 years 築28年 | | Royal Yokoo (1215) ローヤルヨコオ(1215) |
| Already the room significantly reform! In town! RC apartment on the top floor! 室内大幅リフォーム済!充実設備!RCマンション最上階! |
| [Customers limited discount of inquiry by phone ・ Brokerage fees 20,000 yen discount] South-facing balcony! Day & view good! 2 wayside ・ 3 Station Available! / In the case of two tenants rent 3,000 yen UP 【お電話での問合せのお客様限定割引・仲介手数料2万円引き】南向きバルコニー!日当り&眺望良好!2沿線・3駅利用可!/2人入居の場合賃料3000円UP |
| Bus toilet by, balcony, Air conditioning, Gas stove correspondence, closet, Flooring, TV interphone, Bathroom Dryer, Indoor laundry location, Yang per good, Shoe box, System kitchen, Facing south, Add-fired function bathroom, Warm water washing toilet seat, Seperate, Bathroom vanity, Bicycle-parking space, Optical fiber, Immediate Available, top floor, 3-neck over stove, Sorting, Two tenants consultation, All living room flooring, With gas range, 2 wayside Available, Two air conditioning, Interior renovation completed, 2 Station Available, 3 station more accessible, South balcony, High speed Internet correspondence バストイレ別、バルコニー、エアコン、ガスコンロ対応、クロゼット、フローリング、TVインターホン、浴室乾燥機、室内洗濯置、陽当り良好、シューズボックス、システムキッチン、南向き、追焚機能浴室、温水洗浄便座、洗面所独立、洗面化粧台、駐輪場、光ファイバー、即入居可、最上階、3口以上コンロ、振分、二人入居相談、全居室フローリング、ガスレンジ付、2沿線利用可、エアコン2台、内装リフォーム済、2駅利用可、3駅以上利用可、南面バルコニー、高速ネット対応 |
Property name 物件名 | | Rental housing, Suginami-ku, Tokyo Wada 1 Shin-Nakano Station [Rental apartment ・ Apartment] information Property Details 東京都杉並区和田1 新中野駅の賃貸住宅[賃貸マンション・アパート]情報 物件詳細 | Transportation facilities 交通機関 | | Tokyo Metro Marunouchi Line / Shin-Nakano walk 6 minutes JR Chuo Line / Ayumi Nakano 15 minutes Tokyo Metro Marunouchi Line / Higashi Koenji walk 8 minutes 東京メトロ丸ノ内線/新中野 歩6分 JR中央線/中野 歩15分 東京メトロ丸ノ内線/東高円寺 歩8分
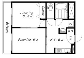
| Floor plan details 間取り詳細 | | Hiroshi 6 Hiroshi 5.3 K4.5 洋6 洋5.3 K4.5 | Construction 構造 | | Rebar Con 鉄筋コン | Story 階建 | | 4th floor / 4-story 4階/4階建 | Built years 築年月 | | March 1986 1986年3月 | Nonlife insurance 損保 | | The main 要 | Move-in 入居 | | Immediately 即 | Trade aspect 取引態様 | | Mediation 仲介 | Conditions 条件 | | Two people Available / Children not allowed 二人入居可/子供不可 | Property code 取り扱い店舗物件コード | | 1215-0403 1215-0403 | Remarks 備考 | | In the case of two tenants rent 3,000 yen UP 2人入居の場合賃料3000円UP | Area information 周辺情報 | | Supermarket Santoku Shin-Nakano shop 387m until the (super) up to 358m Seven-Eleven Nakano center Ome Kaido store (convenience store) up to 336m Tomod's east Koenji store (drugstore) to 809m east Koenji post office (post office) to 451m Johnan Shinkin Bank Nakano Branch (Bank) スーパーマーケット三徳新中野店(スーパー)まで358mセブンイレブン中野中央青梅街道店(コンビニ)まで336mトモズ東高円寺店(ドラッグストア)まで809m東高円寺郵便局(郵便局)まで451m城南信用金庫中野支店(銀行)まで387m帝釈天北広場緑地(公園)まで700m |
Building appearance建物外観 
Living and room居室・リビング 



Kitchenキッチン 
Bathバス 
Toiletトイレ 
Receipt収納 
Washroom洗面所 
Other Equipmentその他設備 

Entrance玄関 
Otherその他 
Location
|