Rentals » Kanto » Tokyo » Suginami
 
| Railroad-station 沿線・駅 | | Tokyo Metro Marunouchi Line / Honancho 東京メトロ丸ノ内線/方南町 | Address 住所 | | Suginami-ku, Tokyo Honan 1 東京都杉並区方南1 | Walk 徒歩 | | 8 minutes 8分 | Rent 賃料 | | 135,000 yen 13.5万円 | Management expenses 管理費・共益費 | | 2000 yen 2000円 | Key money 礼金 | | 135,000 yen 13.5万円 | Security deposit 敷金 | | 135,000 yen 13.5万円 | Floor plan 間取り | | 2LDK 2LDK | Occupied area 専有面積 | | 50 sq m 50m2 | Direction 向き | | West 西 | Type 種別 | | terrace ・ Townhouse テラス・タウンハウス | Year Built 築年 | | Built 19 years 築19年 | | Heights Pothos ハイツ ポトス |
| Sorting 2LDK With loft System kitchen 振分け2LDK ロフト付き システムキッチン |
| Sorting 2LDK With loft System kitchen Internet (12M) royalty-free On-site parking sky there Bike bicycle parking possible consultation Independent wash basin 振分け2LDK ロフト付き システムキッチン インターネット(12M)使用料無料 敷地内駐車場空有り バイク駐輪相談可能 独立洗面台 |
| Bus toilet by, balcony, closet, Washbasin with shower, TV interphone, Indoor laundry location, Yang per good, Shoe box, System kitchen, Corner dwelling unit, Dressing room, Seperate, Bicycle-parking space, CATV, Immediate Available, 3-neck over stove, IH cooking heater, bay window, loft, All room Western-style, Sorting, Deposit 1 month, Two tenants consultation, Bike shelter, All living room flooring, 2 wayside Available, Maisonette, Net use fee unnecessary, Underfloor Storage, Air conditioning three, Electronic key, Starting station, 2 Station Available, BS, Key money one month, Guarantee company Available, Ventilation good バストイレ別、バルコニー、クロゼット、シャワー付洗面台、TVインターホン、室内洗濯置、陽当り良好、シューズボックス、システムキッチン、角住戸、脱衣所、洗面所独立、駐輪場、CATV、即入居可、3口以上コンロ、IHクッキングヒーター、出窓、ロフト、全居室洋室、振分、敷金1ヶ月、二人入居相談、バイク置場、全居室フローリング、2沿線利用可、メゾネット、ネット使用料不要、床下収納、エアコン3台、電子キー、始発駅、2駅利用可、BS、礼金1ヶ月、保証会社利用可、通風良好 |
Property name 物件名 | | Rental housing, Suginami-ku, Tokyo Honan 1 Honancho Station [Rental apartment ・ Apartment] information Property Details 東京都杉並区方南1 方南町駅の賃貸住宅[賃貸マンション・アパート]情報 物件詳細 | Transportation facilities 交通機関 | | Tokyo Metro Marunouchi Line / Honancho step 8 minutes Keio Line / Sasazuka walk 15 minutes Keio Line / Daitabashi step 15 minutes 東京メトロ丸ノ内線/方南町 歩8分 京王線/笹塚 歩15分 京王線/代田橋 歩15分
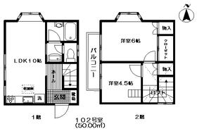
| Floor plan details 間取り詳細 | | Hiroshi 6 Hiroshi 4.5 LDK10 loft 3 洋6 洋4.5 LDK10 ロフト 3 | Construction 構造 | | Wooden 木造 | Story 階建 | | 2-story 2階建 | Built years 築年月 | | September 1995 1995年9月 | Parking lot 駐車場 | | Site 24000 yen 敷地内24000円 | Move-in 入居 | | Immediately 即 | Trade aspect 取引態様 | | Mediation 仲介 | Conditions 条件 | | Two people Available / Children Allowed 二人入居可/子供可 | Guarantor agency 保証人代行 | | Guarantee company Available (stock) Casa Rent at the time of contract ・ Total administrative expenses 50% 保証会社利用可 (株)カーサ 契約時に賃料・管理費の合計50% | Remarks 備考 | | Air conditioning 3 groups closet Independent wash basin On-site parking sky there エアコン3基 クローゼット 独立洗面台 敷地内駐車場空有り | Area information 周辺情報 | | Summit store Nakano Minamidai store (supermarket) up to 513m FamilyMart Honan-chome store (convenience store) up to 130m drag Papas Nakano Minamidai store (drugstore) to 395m Shimachu Co., Ltd. Holmes 678m Suginami Ward Honan elementary school Nakano until the head office (home improvement) (Elementary School) ・ 108m to the nursery) サミットストア中野南台店(スーパー)まで513mファミリーマート方南一丁目店(コンビニ)まで130mどらっぐぱぱす中野南台店(ドラッグストア)まで395m島忠ホームズ中野本店(ホームセンター)まで678m杉並区立方南小学校(小学校)まで303mむさしの保育園方南分園(幼稚園・保育園)まで108m |
Building appearance建物外観 
Living and room居室・リビング 
 LDK10 Pledge
LDK10帖

 With bay window
出窓付き
 Western-style 4.5 Pledge
洋室4.5帖
 Western-style 6 Pledge
洋室6帖
Kitchenキッチン  System Kitchen (IH3 neck)
システムキッチン(IH3口)
Receipt収納  closet
クローゼット
Other room spaceその他部屋・スペース  loft
ロフト
 Loft
ロフト部分
Washroom洗面所  Independent wash basin (shampoo dresser)
独立洗面台(シャンプードレッサー)
Balconyバルコニー 
Parking lot駐車場  On-site parking sky there
敷地内駐車場空有り
Location
|