Rentals » Kanto » Tokyo » Suginami


Negotiation of the terms and conditions ・ Consultation, Please leave to if unpublished Property Company.
Property looking for is important speed. Speedy response and property looking for promise we will third-party listing the course unpublished ・ Because there many private properties also, By all means once coming to a store please those who have been misled or go to anywhere in the real estate company!
Bus toilet by, Air conditioning, Gas stove correspondence, closet, Flooring, Yang per good, Shoe box, Facing south, Corner dwelling unit, Seperate, Bathroom vanity, Two-burner stove, Bicycle-parking space, closet, CATV, Optical fiber, Immediate Available, All room Western-style, Guarantor unnecessary, CATV Internet, Two tenants consultation, Southwest angle dwelling unit, All living room flooring, terrace, Interior renovation completed, Good view, Room share consultation, Some flooring, Southwestward, All room 6 tatami mats or more, Kitchen 5 tatami more, City gas, Door to the washroom, Key money one month, Guarantee company Available, Ventilation good
Railroad-station
JR Chuo Line / Koenji
Address
Suginami-ku, Tokyo Koenjiminami 3
Walk
7 minutes
Rent
65,000 yen
Management expenses
2000 yen
Key money
65,000 yen
Security deposit
65,000 yen
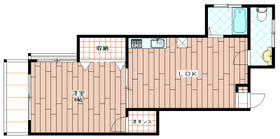
Floor plan
1LDK
Occupied area
30.6 sq m
Direction
South
Type
Apartment
Year Built
Built 44 years
Property name
Rental housing, Suginami-ku, Tokyo Koenjiminami 3 Koenji Station [Rental apartment ・ Apartment] information Property Details
Transportation facilities
JR Chuo Line / Koenji walk 7 minutes
Tokyo Metro Marunouchi Line / Shin Koenji walk 10 minutes
JR Chuo Line / Asagaya walk 12 minutes
Floor plan details
Hiroshi 6 LDK7
Construction
Wooden
Story
1st floor / 2-story
Built years
December 1970
Nonlife insurance
20,000 yen two years
Move-in
Immediately
Trade aspect
Mediation
Conditions
Two people Available / Room share consultation
Remarks
Negotiation of the terms and conditions ・ Consultation, Please leave to if unpublished Property Company.
Area information
Seiyu Koenji store (supermarket) up to 222m business super Koenji store (supermarket) up to 176m Seven-Eleven Koenjiminami store (convenience store) up to 178m Lawson Koenjiminami chome store (convenience store) up to 264m Seven-Eleven Koenji Station store (convenience store) up to 384m Tsuruha drag Koenji shop


Building appearance

Building appearance

Living and room

Living and room
Living and room

Kitchen

Kitchen

Other room space

Other room space