|
Railroad-station 沿線・駅 | | Tokyo Metro Ginza Line / Inaricho 東京メトロ銀座線/稲荷町 |
Address 住所 | | Taito-ku, Tokyo Kitaueno 2 東京都台東区北上野2 |
Walk 徒歩 | | 7 minutes 7分 |
Rent 賃料 | | 155,000 yen 15.5万円 |
Security deposit 敷金 | | 155,000 yen 15.5万円 |
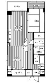
Floor plan 間取り | | 2LDK 2LDK |
Occupied area 専有面積 | | 61.26 sq m 61.26m2 |
Direction 向き | | South 南 |
Type 種別 | | Mansion マンション |
Year Built 築年 | | Built 19 years 築19年 |
|
MY Bill
MYビル
|
|
It is a beautiful property in a fully-equipped. Indoor laundry Storage Storage rich and spacious Li
設備充実で綺麗な物件です。 室内洗濯置き場 収納豊富で広々リ
|
|
It is a beautiful property in a fully-equipped. Indoor laundry Storage Storage rich and spacious living There is also a system Kitchen. Independent wash basin Yes. Area Masu 61 square meters have.
設備充実で綺麗な物件です。 室内洗濯置き場 収納豊富で広々リビング システムキッチンもあります。独立洗面台有。面積61平米有ます。
|
|
Bus toilet by, balcony, Air conditioning, Gas stove correspondence, closet, Bathroom Dryer, Indoor laundry location, System kitchen, Elevator, Seperate, closet, Immediate Available, Key money unnecessary, Deposit 1 month, Some flooring, 2 Station Available, Within a 10-minute walk station, City gas
バストイレ別、バルコニー、エアコン、ガスコンロ対応、クロゼット、浴室乾燥機、室内洗濯置、システムキッチン、エレベーター、洗面所独立、押入、即入居可、礼金不要、敷金1ヶ月、一部フローリング、2駅利用可、駅徒歩10分以内、都市ガス
|
Property name 物件名 | | Rental housing, Taito-ku, Tokyo Kitaueno 2 Inaricho Station [Rental apartment ・ Apartment] information Property Details 東京都台東区北上野2 稲荷町駅の賃貸住宅[賃貸マンション・アパート]情報 物件詳細 |
Transportation facilities 交通機関 | | Tokyo Metro Ginza Line / Inaricho step 7 minutes JR Yamanote Line / Ayumi Ueno 10 minutes 東京メトロ銀座線/稲荷町 歩7分 JR山手線/上野 歩10分
|
Construction 構造 | | Steel rebar 鉄骨鉄筋 |
Story 階建 | | 8th floor / Nine-storey 8階/9階建 |
Built years 築年月 | | March 1995 1995年3月 |
Nonlife insurance 損保 | | 20,000 yen 2万円 |
Move-in 入居 | | Immediately 即 |
Trade aspect 取引態様 | | Mediation 仲介 |
Conditions 条件 | | Two people Available / Children Allowed 二人入居可/子供可 |
Guarantor agency 保証人代行 | | Japan Rental guarantee use 必 50 percent of the rent total Every year update 10 000 yen 日本賃貸保証利用必 賃料総額の50% 1年毎更新10 000円 |
Remarks 備考 | | It is a beautiful property in a fully-equipped. Indoor laundry Storage Storage rich and spacious Li 設備充実で綺麗な物件です。 室内洗濯置き場 収納豊富で広々リ |
Area information 周辺情報 | | Ueno elementary school 329m municipal shaking kindergarten up to 436m Komagata junior high school (junior high school) to (elementary school) (kindergarten ・ 436m to the nursery) 上野小学校(小学校)まで436m駒形中学校(中学校)まで329m区立清島幼稚園(幼稚園・保育園)まで436m |