Rentals » Kanto » Tokyo » Taito
 
| Railroad-station 沿線・駅 | | Tokyo Metro Chiyoda Line / Nezu 東京メトロ千代田線/根津 | Address 住所 | | Taito-ku, Tokyo Yanaka 2 東京都台東区谷中2 | Walk 徒歩 | | 7 minutes 7分 | Rent 賃料 | | 133,000 yen 13.3万円 | Management expenses 管理費・共益費 | | 7000 yen 7000円 | Key money 礼金 | | 133,000 yen 13.3万円 | Security deposit 敷金 | | 266,000 yen 26.6万円 | Floor plan 間取り | | 1LDK 1LDK | Occupied area 専有面積 | | 49 sq m 49m2 | Direction 向き | | South 南 | Type 種別 | | Mansion マンション | Year Built 築年 | | Built 28 years 築28年 | | Bus toilet by, balcony, Air conditioning, Gas stove correspondence, closet, Flooring, auto lock, Indoor laundry location, Yang per good, Shoe box, Corner dwelling unit, Elevator, Seperate, Bathroom vanity, Two-burner stove, Bicycle-parking space, A quiet residential area, Pets Negotiable, All living room flooring, Deposit 2 months, 2 Station Available, Within a 10-minute walk station, Our managed properties, Key money one month バストイレ別、バルコニー、エアコン、ガスコンロ対応、クロゼット、フローリング、オートロック、室内洗濯置、陽当り良好、シューズボックス、角住戸、エレベーター、洗面所独立、洗面化粧台、2口コンロ、駐輪場、閑静な住宅地、ペット相談、全居室フローリング、敷金2ヶ月、2駅利用可、駅徒歩10分以内、当社管理物件、礼金1ヶ月 |
Property name 物件名 | | Rental housing, Taito-ku, Tokyo Yanaka 2 Nezu Station [Rental apartment ・ Apartment] information Property Details 東京都台東区谷中2 根津駅の賃貸住宅[賃貸マンション・アパート]情報 物件詳細 | Transportation facilities 交通機関 | | Tokyo Metro Chiyoda Line / Ayumi Nezu 7 minutes Tokyo Metro Chiyoda Line / Ayumi Sendagi 8 minutes JR Yamanote Line / Nippori walk 17 minutes 東京メトロ千代田線/根津 歩7分 東京メトロ千代田線/千駄木 歩8分 JR山手線/日暮里 歩17分
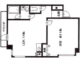
| Floor plan details 間取り詳細 | | Hiroshi 11 LDK14 洋11 LDK14 | Construction 構造 | | Rebar Con 鉄筋コン | Story 階建 | | 3rd floor / 4-story 3階/4階建 | Built years 築年月 | | May 1986 1986年5月 | Nonlife insurance 損保 | | The main 要 | Move-in 入居 | | Immediately 即 | Trade aspect 取引態様 | | Mediation 仲介 | Conditions 条件 | | Pets Negotiable ペット相談 | Remarks 備考 | | Yanaka 1m until the post office / 1F office / Patrol management / H17_nenshitsunaishinkinaisorifo - No already 谷中郵便局まで1m/1F事務所/巡回管理/H17年室内新規内装リフォ-ム済 | Area information 周辺情報 | | Abuabuakafudado Nezu store (supermarket) up to 547m Seven-Eleven Bunkyo Sendagi store (convenience store) up to 337m drugs Higuchi Sendagi store (drugstore) to 393m Aizen nursery school (kindergarten ・ 722m to 257m Nippon Medical School Hospital (hospital) to nursery school) Mizuho 337m to Bank Nezu Branch (Bank) アブアブ赤札堂根津店(スーパー)まで547mセブンイレブン文京千駄木店(コンビニ)まで337m薬ヒグチ千駄木店(ドラッグストア)まで393m藍染保育園(幼稚園・保育園)まで257m日本医科大学附属病院(病院)まで722mみずほ銀行根津支店(銀行)まで337m |
Living and room居室・リビング 
Building appearance建物外観 

Kitchenキッチン 
Bathバス 
Toiletトイレ 
Other room spaceその他部屋・スペース 
Washroom洗面所 
|