|
Railroad-station 沿線・駅 | | JR Yamanote Line / Sugamo JR山手線/巣鴨 |
Address 住所 | | Toshima-ku, Tokyo Komagome 4 東京都豊島区駒込4 |
Walk 徒歩 | | 5 minutes 5分 |
Rent 賃料 | | 197,000 yen 19.7万円 |
Management expenses 管理費・共益費 | | 12000 yen 12000円 |
Security deposit 敷金 | | 394,000 yen 39.4万円 |
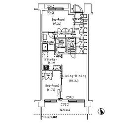
Floor plan 間取り | | 2LDK 2LDK |
Occupied area 専有面積 | | 56.73 sq m 56.73m2 |
Direction 向き | | Southwest 南西 |
Type 種別 | | Mansion マンション |
Year Built 築年 | | Built seven years 築7年 |
|
Kureguran Komagome
クレグラン駒込
|
|
T points will earn points 1 for each brokerage fee of 100 yen!
仲介手数料100円ごとにTポイントが1ポイント貯まります!
|
|
Fire insurance required subscription
火災保険要加入
|
|
Bus toilet by, Air conditioning, Flooring, Bathroom Dryer, auto lock, Indoor laundry location, Add-fired function bathroom, Elevator, Delivery Box, CATV, Pets Negotiable, Two tenants consultation, Private garden, CS, Floor heating, Musical Instruments consultation, City gas, BS
バストイレ別、エアコン、フローリング、浴室乾燥機、オートロック、室内洗濯置、追焚機能浴室、エレベーター、宅配ボックス、CATV、ペット相談、二人入居相談、専用庭、CS、床暖房、楽器相談、都市ガス、BS
|
Property name 物件名 | | Rental housing of Toshima-ku, Tokyo Komagome 4 Sugamo Station [Rental apartment ・ Apartment] information Property Details 東京都豊島区駒込4 巣鴨駅の賃貸住宅[賃貸マンション・アパート]情報 物件詳細 |
Transportation facilities 交通機関 | | JR Yamanote Line / Ayumi Sugamo 5 minutes JR Yamanote Line / Ayumi Komagome 7 minutes Toei Mita Line / Sengoku walk 15 minutes JR山手線/巣鴨 歩5分 JR山手線/駒込 歩7分 都営三田線/千石 歩15分
|
Floor plan details 間取り詳細 | | Hiroshi 6.2 Hiroshi 4.7 LD10.2 洋6.2 洋4.7 LD10.2 |
Construction 構造 | | Rebar Con 鉄筋コン |
Story 階建 | | 1st floor / 8-story 1階/8階建 |
Built years 築年月 | | March 2007 2007年3月 |
Parking lot 駐車場 | | Site 36750 yen 敷地内36750円 |
Move-in 入居 | | Immediately 即 |
Trade aspect 取引態様 | | Mediation 仲介 |
Conditions 条件 | | Two people Available / Pets Negotiable / Musical Instruments consultation 二人入居可/ペット相談/楽器相談 |
Property code 取り扱い店舗物件コード | | 3-11370021190-104 3-11370021190-104 |
Area information 周辺情報 | | Seiyu 400m until the (super) up to 400m Tsutaya (video rental) to 400m100 Hitoshi (other) up to 400m shopping street until 400m Fuji Soba (Other) (Other) up to 400m Sugamo Station (Other) 西友(スーパー)まで400mツタヤ(レンタルビデオ)まで400m100均(その他)まで400m富士そば(その他)まで400m商店街(その他)まで400m巣鴨駅(その他)まで400m |