1988February
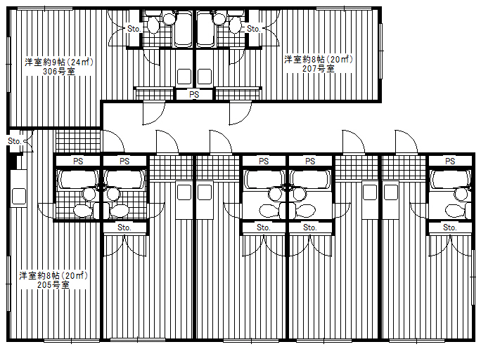
57,000 yen, One-room, Second floor / Three-story, 24 sq m
Rentals » Kanto » Tokyo » Toshima ward
 
| Railroad-station 沿線・駅 | | Toei Mita Line / Sugamo 都営三田線/巣鴨 | Address 住所 | | Toshima-ku, Tokyo Sugamo 5 東京都豊島区巣鴨5 | Walk 徒歩 | | 7 minutes 7分 | Rent 賃料 | | 57,000 yen 5.7万円 | Management expenses 管理費・共益費 | | 3000 yen 3000円 | Key money 礼金 | | 57,000 yen 5.7万円 | Security deposit 敷金 | | 57,000 yen 5.7万円 | Floor plan 間取り | | One-room ワンルーム | Occupied area 専有面積 | | 24 sq m 24m2 | Direction 向き | | East 東 | Type 種別 | | Mansion マンション | Year Built 築年 | | Built 27 years 築27年 | | Guarantor unnecessary 連帯保証人不要 |
| Please consult those who are receiving welfare. 福祉を受けられている方ご相談ください。 |
| Air conditioning, Gas stove correspondence, closet, Flooring, Corner dwelling unit, Optical fiber, Immediate Available, Guarantor unnecessary, Guarantee company Available, Ventilation good エアコン、ガスコンロ対応、クロゼット、フローリング、角住戸、光ファイバー、即入居可、保証人不要、保証会社利用可、通風良好 |
Property name 物件名 | | Rental housing of Toshima-ku, Tokyo Sugamo 5 Sugamo Station [Rental apartment ・ Apartment] information Property Details 東京都豊島区巣鴨5 巣鴨駅の賃貸住宅[賃貸マンション・アパート]情報 物件詳細 | Transportation facilities 交通機関 | | Toei Mita Line / Ayumi Sugamo 7 minutes JR Yamanote Line / Ayumi Sugamo 10 minutes Tokyo Metro Nanboku Line / Nishigahara step 13 minutes 都営三田線/巣鴨 歩7分 JR山手線/巣鴨 歩10分 東京メトロ南北線/西ヶ原 歩13分
| Floor plan details 間取り詳細 | | Hiroshi 9 洋9 | Construction 構造 | | Steel frame 鉄骨 | Story 階建 | | Second floor / Three-story 2階/3階建 | Built years 築年月 | | February 1988 1988年2月 | Nonlife insurance 損保 | | 15,000 yen two years 1.5万円2年 | Move-in 入居 | | Immediately 即 | Trade aspect 取引態様 | | Mediation 仲介 | Conditions 条件 | | Single person Allowed 単身者可 | Guarantor agency 保証人代行 | | Guarantee company Available please consult 保証会社利用可 ご相談ください | Area information 周辺情報 | | KopuTokyo Sugamo store (supermarket) up to 481m Marusho chain Nishigahara store (supermarket) up to 622m Commodities Iida Nishi-sugamo store (supermarket) up to 885m Lawson Sugamo chome store (convenience store) up to 589m Seven-Eleven Toshima Jizo-dori (convenience store) up to 613m Seven-Eleven Toshima Sugamo コープとうきょう巣鴨店(スーパー)まで481m丸正チェーン西ケ原店(スーパー)まで622mコモディイイダ西巣鴨店(スーパー)まで885mローソン巣鴨四丁目店(コンビニ)まで589mセブンイレブン豊島地蔵通り店(コンビニ)まで613mセブンイレブン豊島巣鴨店(コンビニ)まで560m |
Building appearance建物外観 


Otherその他 
|