1990
90,000 yen, 1LDK, Second floor / 2-story, 37 sq m
Rentals » Kanto » Tokyo » Toshima ward
 
| Railroad-station 沿線・駅 | | Toei Oedo Line / Ochiaiminami Nagasaki 都営大江戸線/落合南長崎 | Address 住所 | | Toshima-ku, Tokyo Minaminagasaki 4 東京都豊島区南長崎4 | Walk 徒歩 | | 3 minutes 3分 | Rent 賃料 | | 90,000 yen 9万円 | Management expenses 管理費・共益費 | | 5000 Yen 5000円 | Key money 礼金 | | 180,000 yen 18万円 | Security deposit 敷金 | | 90,000 yen 9万円 | Floor plan 間取り | | 1LDK 1LDK | Occupied area 専有面積 | | 37 sq m 37m2 | Direction 向き | | South 南 | Type 種別 | | Apartment アパート | Year Built 築年 | | Built 25 years 築25年 | | closet, Yang per good, Facing south, Corner dwelling unit, Warm water washing toilet seat, Immediate Available, bay window, 3 face lighting, 2 wayside Available, Launderette, 3 station more accessible, Within a 5-minute walk station, Ventilation good クロゼット、陽当り良好、南向き、角住戸、温水洗浄便座、即入居可、出窓、3面採光、2沿線利用可、コインランドリー、3駅以上利用可、駅徒歩5分以内、通風良好 |
Property name 物件名 | | Rental housing of Toshima-ku, Tokyo Minaminagasaki 4 Ochiai-Minami-Nagasaki Station [Rental apartment ・ Apartment] information Property Details 東京都豊島区南長崎4 落合南長崎駅の賃貸住宅[賃貸マンション・アパート]情報 物件詳細 | Transportation facilities 交通機関 | | Toei Oedo Line / Ochiaiminami Nagasaki walk 3 minutes Seibu Ikebukuro Line / Higashi Nagasaki walk 12 minutes Seibu Ikebukuro Line / Shiinamachi walk 13 minutes 都営大江戸線/落合南長崎 歩3分 西武池袋線/東長崎 歩12分 西武池袋線/椎名町 歩13分
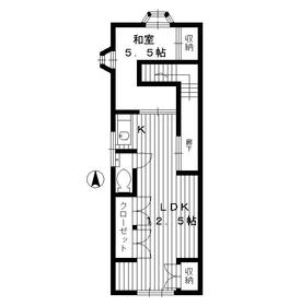
| Floor plan details 間取り詳細 | | Sum 5.5 LDK12.5 和5.5 LDK12.5 | Construction 構造 | | Wooden 木造 | Story 階建 | | Second floor / 2-story 2階/2階建 | Built years 築年月 | | 1990 1990年 | Nonlife insurance 損保 | | The main 要 | Move-in 入居 | | Immediately 即 | Trade aspect 取引態様 | | Mediation 仲介 | Remarks 備考 | | There is coin-operated laundry and coin shower to 1F / It housed three places / 1Fにコインランドリーとコインシャワーあり/収納3ヶ所/ | Area information 周辺情報 | | FamilyMart Nakaochiai Sanchome Mejiro Street store (convenience store) up to 65m FamilyMart Shinjuku Nakaochiai Sanchome store (convenience store) up to 139m Lawson H Ochiaiminami Nagasaki store up (convenience store) 203m Coop future Nishiochiai store (supermarket) up to 177m Coop future Minikopu ファミリーマート 中落合三丁目目白通り店(コンビニ)まで65mファミリーマート 新宿中落合三丁目店(コンビニ)まで139mローソン H落合南長崎駅前店(コンビニ)まで203mコープみらい 西落合店(スーパー)まで177mコープみらい ミニコープ西落合店(スーパー)まで188mクスリの保健堂 西落合店(ドラッグストア)まで210m |
Building appearance建物外観 

|