2000June
78,000 yen, 1K, 1st floor / 8-story, 26.7 sq m
Rentals » Kanto » Tokyo » Toshima ward
 
| Railroad-station 沿線・駅 | | JR Yamanote Line / Otsuka JR山手線/大塚 | Address 住所 | | Toshima-ku, Tokyo Sugamo 4 東京都豊島区巣鴨4 | Walk 徒歩 | | 9 minutes 9分 | Rent 賃料 | | 78,000 yen 7.8万円 | Management expenses 管理費・共益費 | | 3000 yen 3000円 | Key money 礼金 | | 78,000 yen 7.8万円 | Security deposit 敷金 | | 78,000 yen 7.8万円 | Floor plan 間取り | | 1K 1K | Occupied area 専有面積 | | 26.7 sq m 26.7m2 | Direction 向き | | East 東 | Type 種別 | | Mansion マンション | Year Built 築年 | | Built 14 years 築14年 | | Stage First Otsuka ステージファースト大塚 |
| Consumer electronics ・ Furniture rental fee 5% OFF! Nationwide free shipping! 家電・家具レンタル料5%OFF!全国送料無料! |
| Fire insurance required subscription 火災保険要加入 |
| Bus toilet by, balcony, Air conditioning, Gas stove correspondence, closet, Flooring, auto lock, Indoor laundry location, Corner dwelling unit, Elevator, Bicycle-parking space, Delivery Box, closet, CATV, Outer wall tiling, City gas バストイレ別、バルコニー、エアコン、ガスコンロ対応、クロゼット、フローリング、オートロック、室内洗濯置、角住戸、エレベーター、駐輪場、宅配ボックス、押入、CATV、外壁タイル張り、都市ガス |
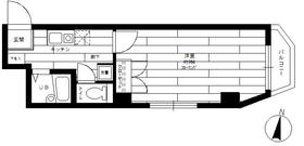
Property name 物件名 | | Rental housing of Toshima-ku, Tokyo Sugamo 4 Otsuka Station [Rental apartment ・ Apartment] information Property Details 東京都豊島区巣鴨4 大塚駅の賃貸住宅[賃貸マンション・アパート]情報 物件詳細 | Transportation facilities 交通機関 | | JR Yamanote Line / Ayumu Otsuka 9 minutes Toei Mita Line / Nishi-sugamo walk 9 minutes Toden Arakawa Line / Koshinzuka walk 4 minutes JR山手線/大塚 歩9分 都営三田線/西巣鴨 歩9分 都電荒川線/庚申塚 歩4分
| Floor plan details 間取り詳細 | | Hiroshi 9 K2 洋9 K2 | Construction 構造 | | Rebar Con 鉄筋コン | Story 階建 | | 1st floor / 8-story 1階/8階建 | Built years 築年月 | | June 2000 2000年6月 | Move-in 入居 | | Immediately 即 | Trade aspect 取引態様 | | Mediation 仲介 | Property code 取り扱い店舗物件コード | | 3-11380068825-104 3-11380068825-104 |
Building appearance建物外観 
Living and room居室・リビング 

Kitchenキッチン 
Bathバス 
Other room spaceその他部屋・スペース 
Entrance玄関 
Otherその他 
Location
|