Rentals » Kanto » Tokyo » Toshima ward
 
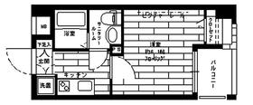
| Railroad-station 沿線・駅 | | JR Yamanote Line / Ikebukuro JR山手線/池袋 | Address 住所 | | Toshima-ku, Tokyo Ikebukuro 3 東京都豊島区池袋3 | Walk 徒歩 | | 10 minutes 10分 | Rent 賃料 | | 79,000 yen 7.9万円 | Management expenses 管理費・共益費 | | 5000 Yen 5000円 | Key money 礼金 | | 79,000 yen 7.9万円 | Security deposit 敷金 | | 79,000 yen 7.9万円 | Floor plan 間取り | | 1K 1K | Occupied area 専有面積 | | 20.93 sq m 20.93m2 | Type 種別 | | Mansion マンション | Year Built 築年 | | Built in 9 years 築9年 | | Condominium ・ Net use fee unnecessary 分譲マンション・ネット使用料不要 |
| Is the environment a 7-minute walk up to the Terminal Station Ikebukuro Station Station. You can quiet life because it is a residential area! ターミナル駅池袋駅駅まで徒歩7分の環境です。住宅街ですので静かな生活ができます! |
| Bus toilet by, balcony, Air conditioning, closet, Flooring, TV interphone, Bathroom Dryer, auto lock, Indoor laundry location, Yang per good, Shoe box, System kitchen, Corner dwelling unit, Warm water washing toilet seat, Dressing room, Elevator, Seperate, Two-burner stove, Bicycle-parking space, Delivery Box, CATV, Optical fiber, Immediate Available, A quiet residential area, BS ・ CS, Sale rent, Guarantor unnecessary, CATV Internet, Two tenants consultation, All living room flooring, Design, CS, Net use fee unnecessary, Leafy residential area, Good view, 24-hour ventilation system, Starting station, 3 along the line more accessible, Within a 10-minute walk station, 24 hours garbage disposal Allowed, On-site trash Storage, High speed Internet correspondence, Guarantee company Available, Ventilation good バストイレ別、バルコニー、エアコン、クロゼット、フローリング、TVインターホン、浴室乾燥機、オートロック、室内洗濯置、陽当り良好、シューズボックス、システムキッチン、角住戸、温水洗浄便座、脱衣所、エレベーター、洗面所独立、2口コンロ、駐輪場、宅配ボックス、CATV、光ファイバー、即入居可、閑静な住宅地、BS・CS、分譲賃貸、保証人不要、CATVインターネット、二人入居相談、全居室フローリング、デザイナーズ、CS、ネット使用料不要、緑豊かな住宅地、眺望良好、24時間換気システム、始発駅、3沿線以上利用可、駅徒歩10分以内、24時間ゴミ出し可、敷地内ごみ置き場、高速ネット対応、保証会社利用可、通風良好 |
Property name 物件名 | | Rental housing of Toshima-ku, Tokyo Ikebukuro 3 Ikebukuro Station [Rental apartment ・ Apartment] information Property Details 東京都豊島区池袋3 池袋駅の賃貸住宅[賃貸マンション・アパート]情報 物件詳細 | Transportation facilities 交通機関 | | JR Yamanote Line / Ikebukuro walk 10 minutes Tokyo Metro Yurakucho Line / Kanamecho step 12 minutes Tokyo Metro Yurakucho Line / Ikebukuro walk 7 minutes JR山手線/池袋 歩10分 東京メトロ有楽町線/要町 歩12分 東京メトロ有楽町線/池袋 歩7分
| Construction 構造 | | Rebar Con 鉄筋コン | Story 階建 | | 3rd floor / 7-story 3階/7階建 | Built years 築年月 | | September 2005 2005年9月 | Nonlife insurance 損保 | | The main 要 | Move-in 入居 | | Consultation 相談 | Trade aspect 取引態様 | | Mediation 仲介 | Property code 取り扱い店舗物件コード | | 05358 05358 | Area information 周辺情報 | | Ethics Ikebukuro (shopping center) to 676m Maibasuketto Ikebukuro Station Nishiten (super) up to 162m meat Hanamasa Ikebukuro Nishiguchi store (supermarket) up to 275m Abuabuakafudado Ikebukuro (super) to 260mSTORE100 Ikebukuro Nishiguchi store up (convenience store) エチカ池袋(ショッピングセンター)まで676mまいばすけっと池袋駅西店(スーパー)まで162m肉のハナマサ池袋西口店(スーパー)まで275mアブアブ赤札堂池袋店(スーパー)まで260mSTORE100池袋西口店(コンビニ)まで240mドラッグストア一本堂池袋店(ドラッグストア)まで354m |
Building appearance建物外観 
Living and room居室・リビング 
 Western-style 6.1 Pledge The one person living ◎
洋室6.1帖 1人暮らしには◎
Kitchenキッチン  Gasukitchin 2-neck
ガスキッチン2口
Bathバス  Bathroom dryer
浴室乾燥機完備
Toiletトイレ  Independent basin & toilet This hotel specification!
独立洗面&トイレ ホテル仕様です!
Other room spaceその他部屋・スペース  Internet Unlimited!
インターネット使い放題です!
Lobbyロビー  Auto-lock equipped
オートロック完備
Otherその他  Chuwasho possible
駐輪所可能
Location
|