1985February
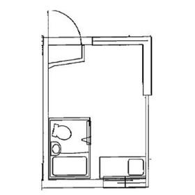
47,000 yen, One-room, 1st floor / 2-story, 10.57 sq m
Rentals » Kanto » Tokyo » Toshima ward
 
| Railroad-station 沿線・駅 | | JR Yamanote Line / Komagome JR山手線/駒込 | Address 住所 | | Toshima-ku, Tokyo Komagome 6 東京都豊島区駒込6 | Walk 徒歩 | | 8 minutes 8分 | Rent 賃料 | | 47,000 yen 4.7万円 | Management expenses 管理費・共益費 | | 1000 yen 1000円 | Key money 礼金 | | 47,000 yen 4.7万円 | Floor plan 間取り | | One-room ワンルーム | Occupied area 専有面積 | | 10.57 sq m 10.57m2 | Type 種別 | | Apartment アパート | Year Built 築年 | | 30 years old 築30年 | | Everyone of the University of Tokyo students also Please use the power of the preview reception in our shop in our shop! ! 東大生の皆様も当店で内見受付中当店の力をご利用下さい!! |
| Property photos and detailed documentation, You can send or even by e-mail or FAX latest information about other properties! Surrounding environment such as what it is also please feel free to contact! Contact is also possible for multiple properties together! Contract money part [credit card] Available! 物件の写真や詳細資料、他の物件の新着情報等もメールやFAXでお送りできます!周辺環境等どのような事でもお気軽にご連絡下さい!複数物件まとめてのお問合せも可能です!契約金一部【クレジットカード】利用可! |
| Air conditioning, Gas stove correspondence, Flooring, Yang per good, Corner dwelling unit, Bicycle-parking space, Optical fiber, City gas, High speed Internet correspondence エアコン、ガスコンロ対応、フローリング、陽当り良好、角住戸、駐輪場、光ファイバー、都市ガス、高速ネット対応 |
Property name 物件名 | | Rental housing of Toshima-ku, Tokyo Komagome 6 Komagome Station [Rental apartment ・ Apartment] information Property Details 東京都豊島区駒込6 駒込駅の賃貸住宅[賃貸マンション・アパート]情報 物件詳細 | Transportation facilities 交通機関 | | JR Yamanote Line / Ayumi Komagome 8 minutes Tokyo Metro Nanboku Line / Nishigahara step 9 minutes JR Keihin Tohoku Line / Kami Nakazato walk 11 minutes JR山手線/駒込 歩8分 東京メトロ南北線/西ヶ原 歩9分 JR京浜東北線/上中里 歩11分
| Construction 構造 | | Wooden 木造 | Story 階建 | | 1st floor / 2-story 1階/2階建 | Built years 築年月 | | February 1985 1985年2月 | Nonlife insurance 損保 | | The main 要 | Move-in 入居 | | Immediately 即 | Trade aspect 取引態様 | | Mediation 仲介 | Property code 取り扱い店舗物件コード | | 17528123 17528123 |
Building appearance建物外観 

|