1991November
58,000 yen, 4DK, 2-story, 104.33 sq m
Rentals » Koshinetsu » Yamanashi Prefecture » Kofu
 
| Railroad-station 沿線・駅 | | JR Chuo Line / Kofu JR中央線/甲府 | Address 住所 | | Kofu, Yamanashi Prefecture Shiobu 2 山梨県甲府市塩部2 | Walk 徒歩 | | 20 min 20分 | Rent 賃料 | | 58,000 yen 5.8万円 | Security deposit 敷金 | | 58,000 yen 5.8万円 | Floor plan 間取り | | 4DK 4DK | Occupied area 専有面積 | | 104.33 sq m 104.33m2 | Direction 向き | | South 南 | Type 種別 | | Residential home 一戸建て | Year Built 築年 | | Built 23 years 築23年 | | Facing south, Immediate Available, Parking two free 南向き、即入居可、駐車場2台無料 |
Property name 物件名 | | Rental housing of Kofu, Yamanashi Prefecture Shiobu 2 Kofu Station [Rental apartment ・ Apartment] information Property Details 山梨県甲府市塩部2 甲府駅の賃貸住宅[賃貸マンション・アパート]情報 物件詳細 | Transportation facilities 交通機関 | | JR Chuo Line / Kofu walk 20 minutes JR中央線/甲府 歩20分
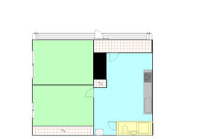
| Floor plan details 間取り詳細 | | Sum 10 sum 6 sum 6 Hiroshi 6 和10 和6 和6 洋6 | Construction 構造 | | Wooden 木造 | Story 階建 | | 2-story 2階建 | Built years 築年月 | | November 1991 1991年11月 | Nonlife insurance 損保 | | 15,000 yen two years 1.5万円2年 | Parking lot 駐車場 | | Free with 付無料 | Move-in 入居 | | Immediately 即 | Trade aspect 取引態様 | | Agency 代理 | Intermediate fee 仲介手数料 | | 1 month 1ヶ月 | Area information 周辺情報 | | Razawoku Kai Futaba (shopping center) until 1583m Tomi nursery school up to 3373m Ittsumoa Futaba store (supermarket) to the 2629m home improvement Kuroganeya Co., Ltd. Futaba store up (home improvement) 2905m Kai Municipal Futaba Higashi elementary school (elementary school) (kindergarten ・ Nursery school) until 1189m Ittsumoa salt departments and branches to (super) 574m ラザウォーク甲斐双葉(ショッピングセンター)まで3373mイッツモア双葉店(スーパー)まで2629mホームセンターくろがねや双葉店(ホームセンター)まで2905m甲斐市立双葉東小学校(小学校)まで1583m登美保育園(幼稚園・保育園)まで1189mイッツモア塩部店(スーパー)まで574m |
Building appearance建物外観 

Location
|