1997April
34,000 yen, 1K, 1st floor / 2-story, 23.18 sq m
Rentals » Koshinetsu » Yamanashi Prefecture » Kofu
 
| Railroad-station 沿線・駅 | | JR Chuo Line / Kofu JR中央線/甲府 | Address 住所 | | Kofu, Yamanashi Prefecture Takahata 1 山梨県甲府市高畑1 | Walk 徒歩 | | 31 minutes 31分 | Rent 賃料 | | 34,000 yen 3.4万円 | Management expenses 管理費・共益費 | | 4000 yen 4000円 | Key money 礼金 | | 34,000 yen 3.4万円 | Floor plan 間取り | | 1K 1K | Occupied area 専有面積 | | 23.18 sq m 23.18m2 | Type 種別 | | Apartment アパート | Year Built 築年 | | Built 17 years 築17年 | | Leo Palace Luce Takahata レオパレスルーチェ高畑 |
| Unnecessary brokerage fees 仲介手数料不要 |
| Basic cleaning fee (at the time of leaving) 1K25500 yen (furniture ・ Consumer electronics with room for additional 3000 yen) ※ Tax not included 基本清掃料(退室時)1K25500円(家具・家電付の部屋は3000円追加)※税別 |
| Bus toilet by, balcony, Air conditioning, Indoor laundry location, CATV, Optical fiber, Immediate Available, Electric stove, Unnecessary brokerage fees, With consumer electronics, Furnished バストイレ別、バルコニー、エアコン、室内洗濯置、CATV、光ファイバー、即入居可、電気コンロ、仲介手数料不要、家電付、家具付 |
Property name 物件名 | | Rental housing of Kofu, Yamanashi Prefecture Takahata 1 Kofu Station [Rental apartment ・ Apartment] information Property Details 山梨県甲府市高畑1 甲府駅の賃貸住宅[賃貸マンション・アパート]情報 物件詳細 | Transportation facilities 交通機関 | | JR Chuo Line / Kofu walk 31 minutes JR Chuo Line / Kofu bus 8 minutes (bus stop) Ishida Elementary School walking 7 minutes JR中央線/甲府 歩31分 JR中央線/甲府 バス8分 (バス停)石田小学校 歩7分
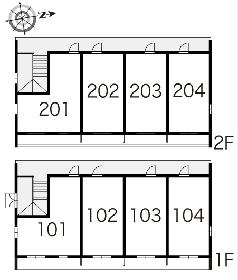
| Construction 構造 | | Wooden 木造 | Story 階建 | | 1st floor / 2-story 1階/2階建 | Built years 築年月 | | April 1997 1997年4月 | Nonlife insurance 損保 | | The main 要 | Parking lot 駐車場 | | On-site 4100 yen 敷地内4100円 | Move-in 入居 | | Immediately 即 | Trade aspect 取引態様 | | Lender 貸主 | Property code 取り扱い店舗物件コード | | 10124-102 10124-102 | Total units 総戸数 | | 8 units 8戸 | Intermediate fee 仲介手数料 | | Unnecessary 不要 | Guarantor agency 保証人代行 | | Guarantee company use 必 guarantee fee: 100 by 46,190 yen (contract ~ Fluctuations have at 120%) ※ The amounts in the case of 120% 保証会社利用必 保証料:46190円(契約内容により100 ~ 120%で変動有)※記載金額は120%の場合 | In addition ほか初期費用 | | Total 25,800 yen (Breakdown: The key exchange costs 9496 yen, Antibacterial construction (Optional) ¥ 16400 (excluding tax)) 合計2.58万円(内訳:鍵交換費9496円、抗菌施工(任意)16400円(税別)) | Other expenses ほか諸費用 | | Environmental maintenance costs 496 yen / Month, Renewal fees 15000 yen / 2 years (excluding tax) 環境維持費496円/月、更新手数料15000円/2年(税別) |
Building appearance建物外観 
Living and room居室・リビング 


Kitchenキッチン 
Bathバス 
Toiletトイレ 
Receipt収納 
Otherその他 



Location
|