Used Apartments » Kanto » Kanagawa Prefecture » Yokohama Hodogaya-ku
 
| | Yokohama, Kanagawa Prefecture Hodogaya-ku, 神奈川県横浜市保土ケ谷区 |
| Sagami Railway Main Line "Hoshikawa" walk 9 minutes 相鉄本線「星川」歩9分 |
| Good living environment per quiet residential area ・ New interior renovation properties ・ Pet breeding Allowed (bylaws Yes) ・ LDK spacious 24 Pledge ・ Preview Allowed per vacancy, Please feel free to contact us. 閑静な住宅街につき住環境良好・新規内装リノベーション物件・ペット飼育可(細則有)・LDK広々24帖・空室につき内覧可、お気軽にお問い合わせください。 |
| 148 square meters, Large 4LDK ・ Good day per southwest angle room ・ WIC2 places ・ All rooms 6 quires more, Storage Yes ・ Flat 35 Available ・ small, Junior High School 10-minute walk ・ Storeroom Yes (about 1.4 Pledge) ・ All rooms flooring ・ After-sales service with guarantee 148平米、大型4LDK・南西角部屋につき日当たり良好・WIC2カ所・全室6帖以上、収納有・フラット35利用可・小、中学校徒歩10分圏内・納戸有(約1.4帖)・全室フローリング・アフターサービス保証付 |
Features pickup 特徴ピックアップ | | Immediate Available / LDK20 tatami mats or more / Interior renovation / System kitchen / Bathroom Dryer / Corner dwelling unit / Yang per good / All room storage / A quiet residential area / Elevator / Warm water washing toilet seat / The window in the bathroom / All living room flooring / Southwestward / Dish washing dryer / Walk-in closet / All room 6 tatami mats or more / water filter / Storeroom / Delivery Box 即入居可 /LDK20畳以上 /内装リフォーム /システムキッチン /浴室乾燥機 /角住戸 /陽当り良好 /全居室収納 /閑静な住宅地 /エレベーター /温水洗浄便座 /浴室に窓 /全居室フローリング /南西向き /食器洗乾燥機 /ウォークインクロゼット /全居室6畳以上 /浄水器 /納戸 /宅配ボックス | Property name 物件名 | | "On the day you can please visit! Renovation Property! 148 square meters! Pets Allowed! "Sofia Yokohama 《当日ご見学可能です!リノベーション物件!148平米!ペット可!》ソフィア横浜 | Price 価格 | | 45,800,000 yen 4580万円 | Floor plan 間取り | | 4LDK + S (storeroom) 4LDK+S(納戸) | Units sold 販売戸数 | | 1 units 1戸 | Occupied area 専有面積 | | 148.5 sq m (44.92 tsubo) (center line of wall) 148.5m2(44.92坪)(壁芯) | Other area その他面積 | | Balcony area: 24.17 sq m バルコニー面積:24.17m2 | Whereabouts floor / structures and stories 所在階/構造・階建 | | 4th floor / RC8 story 4階/RC8階建 | Completion date 完成時期(築年月) | | 10 May 2000 2000年10月 | Address 住所 | | Yokohama, Kanagawa Prefecture Hodogaya-ku, Mineoka cho 神奈川県横浜市保土ケ谷区峰岡町1 | Traffic 交通 | | Sagami Railway Main Line "Hoshikawa" walk 9 minutes Sagami Railway Main Line "Tenno-cho" walk 17 minutes Sagami Railway Main Line "Wada-cho" walk 18 minutes 相鉄本線「星川」歩9分 相鉄本線「天王町」歩17分 相鉄本線「和田町」歩18分
| Person in charge 担当者より | | We are dedicating personnel system for each person in charge customers. [Your tour of the day is also possible! ] Inquiry of the Property Century 21 Global Home "residence of the Information Center" sales staff to please feel free to! 0800-603-7494 担当者お客様毎に専属担当者制です。【当日のご見学も可能です!】本物件のお問い合わせはセンチュリー21グローバルホーム「住まいの情報館」営業スタッフまでお気軽にどうぞ!0800-603-7494 | Contact お問い合せ先 | | TEL: 0800-603-7494 [Toll free] mobile phone ・ Also available from PHS Caller ID is not notified Please contact the "saw SUUMO (Sumo)" If it does not lead, If the real estate company TEL:0800-603-7494【通話料無料】携帯電話・PHSからもご利用いただけます 発信者番号は通知されません 「SUUMO(スーモ)を見た」と問い合わせください つながらない方、不動産会社の方は
| Administrative expense 管理費 | | 29,410 yen / Month (consignment (commuting)) 2万9410円/月(委託(通勤)) | Repair reserve 修繕積立金 | | 20,790 yen / Month 2万790円/月 | Expenses 諸費用 | | CATV flat rate: 525 yen / Month CATV定額料金:525円/月 | Time residents 入居時期 | | Immediate available 即入居可 | Whereabouts floor 所在階 | | 4th floor 4階 | Direction 向き | | Southwest 南西 | Renovation リフォーム | | 2013 November interior renovation completed (kitchen ・ bathroom ・ toilet ・ wall ・ floor ・ all rooms) 2013年11月内装リフォーム済(キッチン・浴室・トイレ・壁・床・全室) | Other limitations その他制限事項 | | Repair reserve, Amendment will have to monthly 23,760 yen from March 2014 修繕積立金、平成26年3月より月額23,760円に改正予定有 | Overview and notices その他概要・特記事項 | | The person in charge: is dedicating personnel system for each customer. 担当者:お客様毎に専属担当者制です。 | Structure-storey 構造・階建て | | RC8 story RC8階建 | Site of the right form 敷地の権利形態 | | Ownership 所有権 | Use district 用途地域 | | One low-rise 1種低層 | Parking lot 駐車場 | | Sky Mu 空無 | Company profile 会社概要 | | <Mediation> Kanagawa Governor (2) the first 026,326 No. Century 21 Global Home Co., Ltd. Yubinbango221-0825 Yokohama-shi, Kanagawa, Kanagawa-ku, Sorimachi 4-37-3 Nissin building Yokohama Sorimachi first floor ・ Second floor <仲介>神奈川県知事(2)第026326号センチュリー21グローバルホーム(株)〒221-0825 神奈川県横浜市神奈川区反町4-37-3 日伸ビル横浜反町1階・2階 |
Local appearance photo現地外観写真  Local (November 26, 2013) Shooting
現地(2013年11月26日)撮影
Livingリビング  Indoor (November 26, 2013) Shooting
室内(2013年11月26日)撮影
Kitchenキッチン  Indoor (November 26, 2013) Shooting
室内(2013年11月26日)撮影
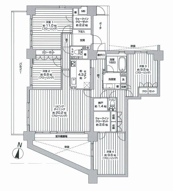
Floor plan間取り図  4LDK + S (storeroom), Price 45,800,000 yen, The area occupied 148.5 sq m , Balcony area 24.17 sq m
4LDK+S(納戸)、価格4580万円、専有面積148.5m2、バルコニー面積24.17m2
Livingリビング  Indoor (November 26, 2013) Shooting
室内(2013年11月26日)撮影
Bathroom浴室  Indoor (November 26, 2013) Shooting
室内(2013年11月26日)撮影
Non-living roomリビング以外の居室  Indoor (November 26, 2013) Shooting
室内(2013年11月26日)撮影
Entrance玄関  Local (November 26, 2013) Shooting
現地(2013年11月26日)撮影
Wash basin, toilet洗面台・洗面所  Indoor (November 26, 2013) Shooting
室内(2013年11月26日)撮影
Receipt収納  Walk-in closet (November 26, 2013) Shooting
ウォークインクローゼット(2013年11月26日)撮影
Toiletトイレ  Indoor (November 26, 2013) Shooting
室内(2013年11月26日)撮影
Balconyバルコニー  Local (November 26, 2013) Shooting
現地(2013年11月26日)撮影
Other introspectionその他内観  Indoor Laundry Storage (November 26, 2013) Shooting
室内洗濯機置き場(2013年11月26日)撮影
Non-living roomリビング以外の居室  Indoor (November 26, 2013) Shooting
室内(2013年11月26日)撮影
Entrance玄関  Back door (November 26, 2013) Shooting
勝手口(2013年11月26日)撮影
Receipt収納  Indoor (November 26, 2013) Shooting
室内(2013年11月26日)撮影
Non-living roomリビング以外の居室  Indoor (November 26, 2013) Shooting
室内(2013年11月26日)撮影
Receipt収納  Indoor (November 26, 2013) Shooting
室内(2013年11月26日)撮影
Non-living roomリビング以外の居室  Indoor (November 26, 2013) Shooting
室内(2013年11月26日)撮影
Receipt収納  Walk-in closet (November 26, 2013) Shooting
ウォークインクローゼット(2013年11月26日)撮影
Location
|