2004July
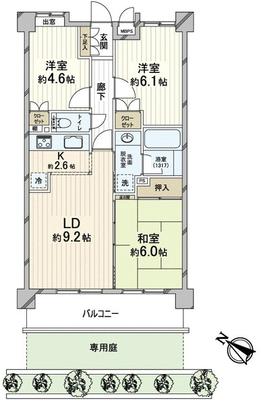
21,800,000 yen, 3LDK, 61.82 sq m
Used Apartments » Kanto » Saitama Prefecture » Wako
 
| | Wako 埼玉県和光市 |
| Tobu Tojo Line "Narimasu" walk 11 minutes 東武東上線「成増」歩11分 |
Property name 物件名 | | Cesar duo rack Narimasu セザールデュオラック成増 | Price 価格 | | 21,800,000 yen 2180万円 | Floor plan 間取り | | 3LDK 3LDK | Units sold 販売戸数 | | 1 units 1戸 | Total units 総戸数 | | 41 units 41戸 | Occupied area 専有面積 | | 61.82 sq m (center line of wall) 61.82m2(壁芯) | Other area その他面積 | | Balcony area: 9.15 sq m バルコニー面積:9.15m2 | Whereabouts floor / structures and stories 所在階/構造・階建 | | 1st floor / RC5 story 1階/RC5階建 | Completion date 完成時期(築年月) | | July 2004 2004年7月 | Address 住所 | | Wako milt 3 埼玉県和光市白子3 | Traffic 交通 | | Tobu Tojo Line "Narimasu" walk 11 minutes Tokyo Metro Fukutoshin Line "subway Narimasu" walk 13 minutes 東武東上線「成増」歩11分 東京メトロ副都心線「地下鉄成増」歩13分
| Person in charge 担当者より | | Rep Sugimoto Shinichi 担当者杉本 慎一 | Contact お問い合せ先 | | Mitsui Rehouse Narimasu shop Mitsui Fudosan Realty (Ltd.) TEL: 0120-513131 [Toll free] Please contact the "saw SUUMO (Sumo)" 三井のリハウス成増店三井不動産リアルティ(株)TEL:0120-513131【通話料無料】「SUUMO(スーモ)を見た」と問い合わせください | Administrative expense 管理費 | | 10,100 yen / Month (consignment (commuting)) 1万100円/月(委託(通勤)) | Repair reserve 修繕積立金 | | 9300 yen / Month 9300円/月 | Time residents 入居時期 | | Consultation 相談 | Whereabouts floor 所在階 | | 1st floor 1階 | Direction 向き | | Southwest 南西 | Overview and notices その他概要・特記事項 | | Contact: Sugimoto Shinichi 担当者:杉本 慎一 | Structure-storey 構造・階建て | | RC5 story RC5階建 | Site of the right form 敷地の権利形態 | | Ownership 所有権 | Use district 用途地域 | | Semi-industrial 準工業 | Parking lot 駐車場 | | Sky Mu 空無 | Company profile 会社概要 | | <Mediation> Minister of Land, Infrastructure and Transport (13) No. 000777 (one company) Property distribution management Association (Corporation) metropolitan area real estate Fair Trade Council member Mitsui Rehouse Narimasu shop Mitsui Fudosan Realty Co. Yubinbango175-0094 Itabashi-ku, Tokyo Narimasu 1-30-13 Sanritz Mitsuiseimei building first floor <仲介>国土交通大臣(13)第000777号(一社)不動産流通経営協会会員 (公社)首都圏不動産公正取引協議会加盟三井のリハウス成増店三井不動産リアルティ(株)〒175-0094 東京都板橋区成増1-30-13 サンリッツ三井生命ビル1階 |
 Local appearance photo
現地外観写真
 Floor plan
間取り図
Location
|