Used Apartments » Kanto » Tokyo » Akishima


Tokyo Akishima
JR Ome Line "Nishitachikawa" walk 19 minutes
Interior renovation completed in December 2013, Immediate preview, Turnkey! Is a positive per good dwelling unit on the south side balcony.
■ Peace space Japanese-style rooms have a flavor of living next to. It will also come in handy as a visit at the time and housework space. ■ Momentum conversation of family, Dishes between the even face-to-face kitchen that can Mekubari to children. ■ Per yang good south balcony ■ I am happy there is a housed in each room immediately Available, 2 along the line more accessible, Super close, Interior renovation, Facing south, Yang per good, All room storageese-style room, Starting station, Face-to-face kitchen, South balcony, Bicycle-parking space, Elevator, Warm water washing toilet seat
Features pickup
Immediate Available / 2 along the line more accessible / Super close / Interior renovation / Facing south / Yang per good / All room storage / Japanese-style room / Starting station / Face-to-face kitchen / South balcony / Bicycle-parking space / Elevator / Warm water washing toilet seat
Property name
Daiaparesu Nishitachikawa
Price
14.9 million yen
Floor plan
3LDK
Units sold
1 units
Total units
43 units
Occupied area
59.89 sq m (center line of wall)
Other area
Balcony area: 11.35 sq m
Whereabouts floor / structures and stories
Second floor / SRC10 story
Completion date
July 1993
Address
Tokyo Akishima Goji-cho 3-1-7
Traffic
JR Ome Line "Nishitachikawa" walk 19 minutes
JR Chuo Line "Tachikawa" 8 minutes Fujimi drop-off stations walk 1 minute bus
JR Nambu Line "Tachikawa" 8 minutes Fujimi drop-off stations walk 1 minute bus
Related links
[Related Sites of this company]
Person in charge
Personnel Aoki Kazumasa Age: 20 Daigyokai Experience: 1 year Hamura born, Residing in current Hamura. He joined the company, Recently but is, We will continue to support the looking for you live at our best for the customer!
Contact
TEL: 0800-603-2021 [Toll free] mobile phone ・ Also available from PHS
Caller ID is not notified
Please contact the "saw SUUMO (Sumo)"
If it does not lead, If the real estate company
Administrative expense
11,560 yen / Month (consignment (commuting))
Repair reserve
13,990 yen / Month
Time residents
Immediate available
Whereabouts floor
Second floor
Direction
South
Renovation
December 2013 interior renovation completed (kitchen ・ toilet ・ wall ・ floor)
Overview and notices
Contact: Aoki Kazumasa
Structure-storey
SRC10 story
Site of the right form
Ownership
Parking lot
Site (8000 yen ~ ¥ 10,000 / Month)
Company profile
<Mediation> Governor of Tokyo (8) No. 046478 (Corporation) Tokyo Metropolitan Government Building Lots and Buildings Transaction Business Association (Corporation) metropolitan area real estate Fair Trade Council member Century 21 Haijima Housing Industry Co., Ltd. Akishima Ekimae Yubinbango196-0015 Tokyo Akishima Showacho 2-3-7 Crest Omi building first floor


Local appearance photo

Local appearance photo. Local 2013.12.16 shooting
Local 2013.12.16 shooting

Entrance

Entrance. Common areas
Common areas

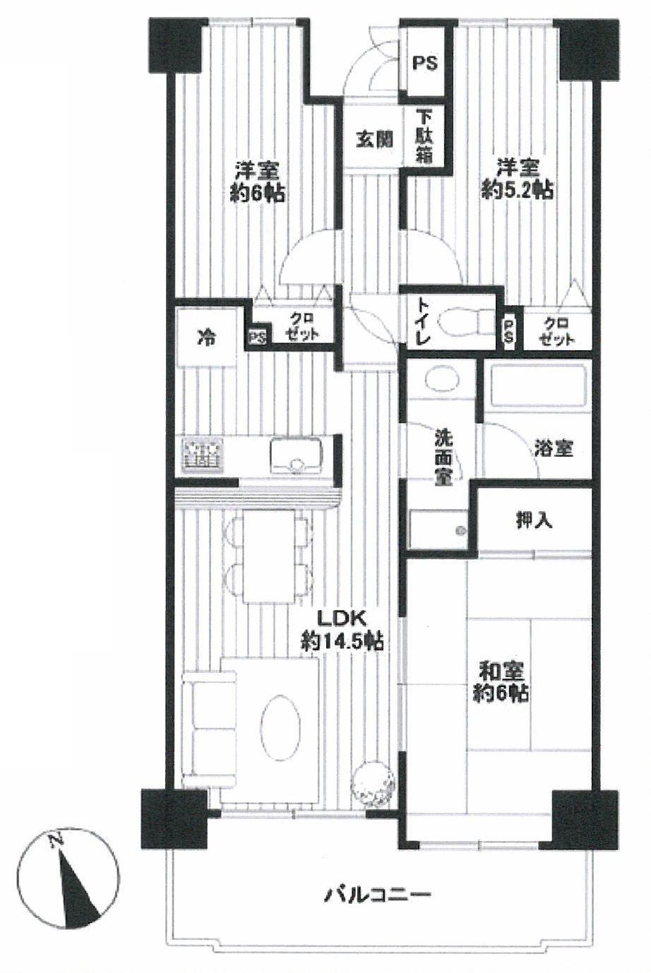
Floor plan

Floor plan. 3LDK, Price 14.9 million yen, Occupied area 59.89 sq m , Balcony area 11.35 sq m
3LDK, Price 14.9 million yen, Occupied area 59.89 sq m , Balcony area 11.35 sq m

Living

Living. 2013.12.16 shooting
2013.12.16 shooting

Kitchen

Kitchen. 2013.12.16 shooting
2013.12.16 shooting

Non-living room

Non-living room. 2013.12.16 shooting
2013.12.16 shooting

Entrance

Entrance. 2013.12.16 shooting
2013.12.16 shooting

Wash basin, toilet

Wash basin, toilet. 2013.12.16 shooting
2013.12.16 shooting

Receipt

Receipt. 2013.12.16 shooting
2013.12.16 shooting

Toilet

Toilet. 2013.12.16 shooting
2013.12.16 shooting

Parking lot

Parking lot. 2013.12.16 shooting
2013.12.16 shooting

Balcony

Balcony. 2013.12.16 shooting
2013.12.16 shooting

Supermarket

Supermarket. Until Inageya 130m
Until Inageya 130m

View photos from the dwelling unit

View photos from the dwelling unit. 2013.12.16 shooting
2013.12.16 shooting

Other

Other. 2013.12.16 shooting
2013.12.16 shooting

Living

Living. 2013.12.16 shooting
2013.12.16 shooting

Non-living room

Non-living room. 2013.12.16 shooting
2013.12.16 shooting

Convenience store

Convenience store. 500m to Three F
500m to Three F

Non-living room

Non-living room. 2013.12.16 shooting
2013.12.16 shooting

Primary school

Primary school. Force up to elementary school 750m
Force up to elementary school 750m

Park

park. 1000m to Showa Park
1000m to Showa Park



Location