1992November
14.8 million yen, 2DK, 40.32 sq m
Used Apartments » Kanto » Tokyo » Arakawa
 
| | Arakawa-ku, Tokyo 東京都荒川区 |
| JR Joban Line "Mikawashima" walk 8 minutes JR常磐線「三河島」歩8分 |
| 2 line 2 Station Available 2路線2駅利用可 |
| Preview Allowed 内見可 |
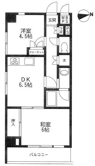
Features pickup 特徴ピックアップ | | Immediate Available / 2 along the line more accessible / Facing south / System kitchen / All room storage / Elevator / Delivery Box 即入居可 /2沿線以上利用可 /南向き /システムキッチン /全居室収納 /エレベーター /宅配ボックス | Property name 物件名 | | Legend Higashinippori レジェンド東日暮里 | Price 価格 | | 14.8 million yen 1480万円 | Floor plan 間取り | | 2DK 2DK | Units sold 販売戸数 | | 1 units 1戸 | Total units 総戸数 | | 34 units 34戸 | Occupied area 専有面積 | | 40.32 sq m (center line of wall) 40.32m2(壁芯) | Whereabouts floor / structures and stories 所在階/構造・階建 | | 3rd floor / RC7 story 3階/RC7階建 | Completion date 完成時期(築年月) | | November 1992 1992年11月 | Address 住所 | | Arakawa-ku, Tokyo Higashinippori 3 東京都荒川区東日暮里3 | Traffic 交通 | | JR Joban Line "Mikawashima" walk 8 minutes Tokyo Metro Hibiya Line "Minowa" walk 11 minutes JR常磐線「三河島」歩8分東京メトロ日比谷線「三ノ輪」歩11分
| Related links 関連リンク | | [Related Sites of this company] 【この会社の関連サイト】 | Person in charge 担当者より | | Rep Fukuda We will continue to the business that is trusted by our customers to the motto Hirokazu honesty. 担当者福田 博和誠実さをモットーにお客様に信頼される営業をしていきます。 | Contact お問い合せ先 | | TEL: 0800-603-0565 [Toll free] mobile phone ・ Also available from PHS Caller ID is not notified Please contact the "saw SUUMO (Sumo)" If it does not lead, If the real estate company TEL:0800-603-0565【通話料無料】携帯電話・PHSからもご利用いただけます 発信者番号は通知されません 「SUUMO(スーモ)を見た」と問い合わせください つながらない方、不動産会社の方は
| Administrative expense 管理費 | | 10,200 yen / Month (consignment (cyclic)) 1万200円/月(委託(巡回)) | Repair reserve 修繕積立金 | | 12,420 yen / Month 1万2420円/月 | Time residents 入居時期 | | Immediate available 即入居可 | Whereabouts floor 所在階 | | 3rd floor 3階 | Direction 向き | | East 東 | Overview and notices その他概要・特記事項 | | Contact: Fukuda Hirokazu 担当者:福田 博和 | Structure-storey 構造・階建て | | RC7 story RC7階建 | Site of the right form 敷地の権利形態 | | Ownership 所有権 | Use district 用途地域 | | Semi-industrial 準工業 | Parking lot 駐車場 | | Sky Mu 空無 | Company profile 会社概要 | | <Mediation> Minister of Land, Infrastructure and Transport (3) No. 006,185 (one company) National Housing Industry Association (Corporation) metropolitan area real estate Fair Trade Council member Asahi housing (stock) Ueno shop Yubinbango110-0005, Taito-ku, Tokyo Ueno 2-13-10 Asahi Seimei Building 6th floor <仲介>国土交通大臣(3)第006185号(一社)全国住宅産業協会会員 (公社)首都圏不動産公正取引協議会加盟朝日住宅(株)上野店〒110-0005 東京都台東区上野2-13-10 朝日生命ビル6階 |
 Local appearance photo
現地外観写真
 Local appearance photo
現地外観写真
Floor plan間取り図  2DK, Price 14.8 million yen, Occupied area 40.32 sq m
2DK、価格1480万円、専有面積40.32m2
 Local appearance photo
現地外観写真
 Living
リビング
 Bathroom
浴室
 Kitchen
キッチン
 Non-living room
リビング以外の居室
 Wash basin, toilet
洗面台・洗面所
 Receipt
収納
 Toilet
トイレ
 Entrance
エントランス
 Non-living room
リビング以外の居室
Location
|