1979April
26,900,000 yen, 2LDK, 49.97 sq m
Used Apartments » Kanto » Tokyo » Bunkyo
 
| | Bunkyo-ku, Tokyo 東京都文京区 |
| JR Yamanote Line "Tabata" walk 11 minutes JR山手線「田端」歩11分 |
Features pickup 特徴ピックアップ | | Corresponding to the flat-35S / Fit renovation / Immediate Available / 2 along the line more accessible / System kitchen / Bathroom Dryer / All room storage / A quiet residential area / Washbasin with shower / Barrier-free / Southeast direction / Elevator / Warm water washing toilet seat / TV monitor interphone / Ventilation good / All living room flooring / Walk-in closet / water filter フラット35Sに対応 /適合リノベーション /即入居可 /2沿線以上利用可 /システムキッチン /浴室乾燥機 /全居室収納 /閑静な住宅地 /シャワー付洗面台 /バリアフリー /東南向き /エレベーター /温水洗浄便座 /TVモニタ付インターホン /通風良好 /全居室フローリング /ウォークインクロゼット /浄水器 | Event information イベント情報 | | Open House (Please be sure to ask in advance) schedule / Now open オープンハウス(事前に必ずお問い合わせください)日程/公開中 | Property name 物件名 | | Lions Komagome second Full renovation Furnished ライオンズ駒込第二 フルリフォーム家具付き | Price 価格 | | 26,900,000 yen 2690万円 | Floor plan 間取り | | 2LDK 2LDK | Units sold 販売戸数 | | 1 units 1戸 | Occupied area 専有面積 | | 49.97 sq m (15.11 tsubo) (center line of wall) 49.97m2(15.11坪)(壁芯) | Other area その他面積 | | Balcony area: 3.46 sq m バルコニー面積:3.46m2 | Whereabouts floor / structures and stories 所在階/構造・階建 | | 6th floor / SRC9 story 6階/SRC9階建 | Completion date 完成時期(築年月) | | April 1979 1979年4月 | Address 住所 | | Bunkyo-ku, Tokyo Honkomagome 4 東京都文京区本駒込4 | Traffic 交通 | | JR Yamanote Line "Tabata" walk 11 minutes Tokyo Metro Nanboku Line "Honkomagome" walk 12 minutes Tokyo Metro Chiyoda Line "Sendagi" walk 13 minutes JR山手線「田端」歩11分 東京メトロ南北線「本駒込」歩12分 東京メトロ千代田線「千駄木」歩13分
| Person in charge 担当者より | | Rep Yamamoto 担当者山本 | Contact お問い合せ先 | | TEL: 0800-603-8723 [Toll free] mobile phone ・ Also available from PHS Caller ID is not notified Please contact the "saw SUUMO (Sumo)" If it does not lead, If the real estate company TEL:0800-603-8723【通話料無料】携帯電話・PHSからもご利用いただけます 発信者番号は通知されません 「SUUMO(スーモ)を見た」と問い合わせください つながらない方、不動産会社の方は
| Administrative expense 管理費 | | 14,000 yen / Month (consignment (commuting)) 1万4000円/月(委託(通勤)) | Repair reserve 修繕積立金 | | 9490 yen / Month 9490円/月 | Time residents 入居時期 | | Immediate available 即入居可 | Whereabouts floor 所在階 | | 6th floor 6階 | Direction 向き | | Southeast 南東 | Renovation リフォーム | | 2013 September interior renovation completed (kitchen ・ bathroom ・ toilet ・ wall ・ floor ・ all rooms) 2013年9月内装リフォーム済(キッチン・浴室・トイレ・壁・床・全室) | Overview and notices その他概要・特記事項 | | Contact: Yamamoto 担当者:山本 | Structure-storey 構造・階建て | | SRC9 story SRC9階建 | Site of the right form 敷地の権利形態 | | Ownership 所有権 | Parking lot 駐車場 | | Sky Mu 空無 | Company profile 会社概要 | | <Mediation> Governor of Tokyo (1) No. 089356 fit one (stock) Yubinbango136-0071 Koto-ku, Tokyo Kameido 6-16-10 Waizubiru second floor <仲介>東京都知事(1)第089356号フィットワン(株)〒136-0071 東京都江東区亀戸6-16-10ワイズビル2階 | Construction 施工 | | (Ltd.) Ueki Corporation (株)植木組 |
Livingリビング  Indoor (10 May 2013) Shooting
室内(2013年10月)撮影
 Indoor (10 May 2013) Shooting
室内(2013年10月)撮影
Kitchenキッチン  Indoor (10 May 2013) Shooting
室内(2013年10月)撮影
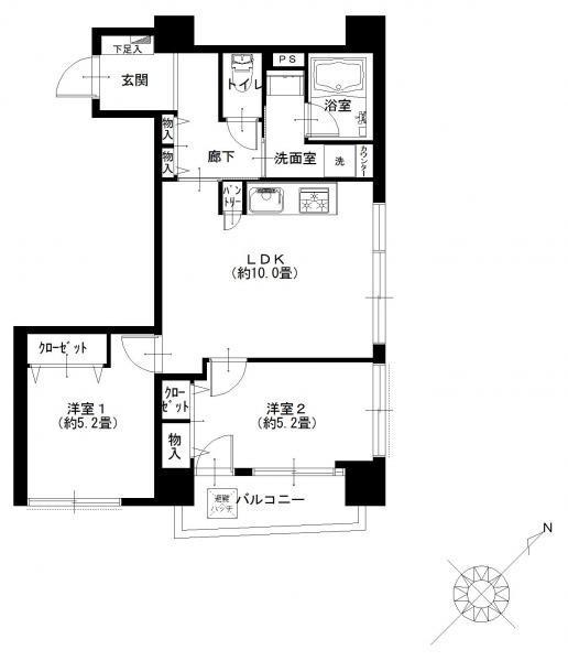
Floor plan間取り図  2LDK, Price 26,900,000 yen, Occupied area 49.97 sq m , Balcony area 3.46 sq m
2LDK、価格2690万円、専有面積49.97m2、バルコニー面積3.46m2
Local appearance photo現地外観写真  Local (10 May 2013) Shooting
現地(2013年10月)撮影
Bathroom浴室  Indoor (10 May 2013) Shooting
室内(2013年10月)撮影
Non-living roomリビング以外の居室  Indoor (10 May 2013) Shooting
室内(2013年10月)撮影
Location
|