Used Apartments » Kanto » Tokyo » Central City
 
| | Chuo-ku, Tokyo 東京都中央区 |
| Tokyo Metro Hibiya Line "Kayabacho" walk 5 minutes 東京メトロ日比谷線「茅場町」歩5分 |
| This is the perfect apartment towards the lifestyle of workplaces access type that are both access to the city center and business district. 都心&オフィス街へのアクセスを両立した職住接近型のライフスタイルの方にぴったりのマンションです。 |
| This is the perfect apartment towards the lifestyle of workplaces access type that are both access to the city center and business district. 都心&オフィス街へのアクセスを両立した職住接近型のライフスタイルの方にぴったりのマンションです。 |
Features pickup 特徴ピックアップ | | Immediate Available / 2 along the line more accessible / It is close to the city / Interior renovation / System kitchen / Bathroom Dryer / Flat to the station / Security enhancement / Otobasu / High speed Internet correspondence / TV monitor interphone / Urban neighborhood / Southwestward / Pets Negotiable / BS ・ CS ・ CATV 即入居可 /2沿線以上利用可 /市街地が近い /内装リフォーム /システムキッチン /浴室乾燥機 /駅まで平坦 /セキュリティ充実 /オートバス /高速ネット対応 /TVモニタ付インターホン /都市近郊 /南西向き /ペット相談 /BS・CS・CATV | Property name 物件名 | | Concieria Nihonbashi コンシェリア日本橋 | Price 価格 | | 38,500,000 yen 3850万円 | Floor plan 間取り | | 2K 2K | Units sold 販売戸数 | | 1 units 1戸 | Total units 総戸数 | | 39 units 39戸 | Occupied area 専有面積 | | 41.27 sq m (center line of wall) 41.27m2(壁芯) | Other area その他面積 | | Balcony area: 5.72 sq m バルコニー面積:5.72m2 | Whereabouts floor / structures and stories 所在階/構造・階建 | | 7th floor / RC13 story 7階/RC13階建 | Completion date 完成時期(築年月) | | March 2008 2008年3月 | Address 住所 | | Tokyo, Chuo-ku, Nihonbashi Kayabacho 3 東京都中央区日本橋茅場町3 | Traffic 交通 | | Tokyo Metro Hibiya Line "Kayabacho" walk 5 minutes Tokyo Metro Hibiya Line "Hatchobori" walk 6 minutes Toei Asakusa Line "Takaracho" walk 10 minutes 東京メトロ日比谷線「茅場町」歩5分 東京メトロ日比谷線「八丁堀」歩6分 都営浅草線「宝町」歩10分
| Person in charge 担当者より | | [Regarding this property.] Workplaces is a city condominium for dink from close type single. 【この物件について】職住接近型のシングルからディンクス向けの都市型マンションです。 | Contact お問い合せ先 | | Tao Corporation (Corporation) TEL: 03-3274-1091 Please contact as "saw SUUMO (Sumo)" タオコーポレーション(株)TEL:03-3274-1091「SUUMO(スーモ)を見た」と問い合わせください | Administrative expense 管理費 | | 7700 yen / Month (consignment (cyclic)) 7700円/月(委託(巡回)) | Repair reserve 修繕積立金 | | 1160 yen / Month 1160円/月 | Time residents 入居時期 | | Immediate available 即入居可 | Whereabouts floor 所在階 | | 7th floor 7階 | Direction 向き | | Southwest 南西 | Renovation リフォーム | | August 2012 interior renovation completed (wall ・ floor) 2012年8月内装リフォーム済(壁・床) | Structure-storey 構造・階建て | | RC13 story RC13階建 | Site of the right form 敷地の権利形態 | | Ownership 所有権 | Company profile 会社概要 | | <Seller> Minister of Land, Infrastructure and Transport (1) No. 008208 Tao Corporation (Corporation) Yubinbango103-0027 Nihonbashi, Chuo-ku, Tokyo 3-8-14 <売主>国土交通大臣(1)第008208号タオコーポレーション(株)〒103-0027 東京都中央区日本橋3-8-14 |
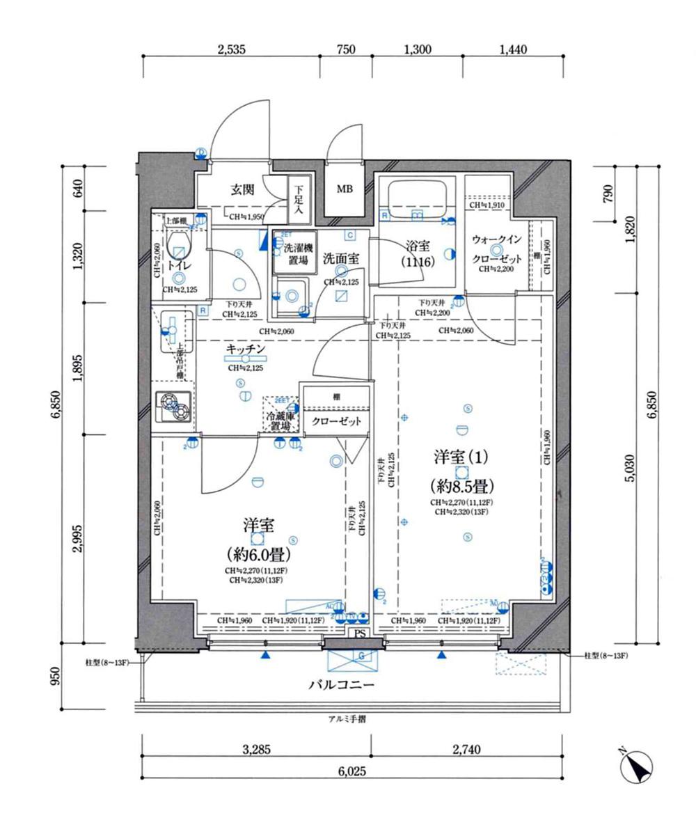
Floor plan間取り図  2K, Price 38,500,000 yen, Occupied area 41.27 sq m , Balcony area 5.72 sq m
2K、価格3850万円、専有面積41.27m2、バルコニー面積5.72m2
 2K, Price 38,500,000 yen, Occupied area 41.27 sq m , Balcony area 5.72 sq m
2K、価格3850万円、専有面積41.27m2、バルコニー面積5.72m2
 Local appearance photo
現地外観写真
Local appearance photo現地外観写真  appearance ・ Common areas
外観・共用部
Same specifications photos (living)同仕様写真(リビング)  Proprietary part
専有部分
Bathroom浴室  Water around
水廻り
Location
|