1983February
21.9 million yen, 3LDK, 77.25 sq m
Used Apartments » Kanto » Tokyo » Edogawa
 
| | Edogawa-ku, Tokyo 東京都江戸川区 |
| JR Sobu Line "Shinkoiwa" walk 18 minutes JR総武線「新小岩」歩18分 |
Property name 物件名 | | Green Incorporated Edogawa water park グリーンコーポ江戸川親水公園 | Price 価格 | | 21.9 million yen 2190万円 | Floor plan 間取り | | 3LDK 3LDK | Units sold 販売戸数 | | 1 units 1戸 | Total units 総戸数 | | 99 units 99戸 | Occupied area 専有面積 | | 77.25 sq m (center line of wall) 77.25m2(壁芯) | Other area その他面積 | | Balcony area: 24.61 sq m バルコニー面積:24.61m2 | Whereabouts floor / structures and stories 所在階/構造・階建 | | 4th floor / SRC9 story 4階/SRC9階建 | Completion date 完成時期(築年月) | | February 1983 1983年2月 | Address 住所 | | Edogawa-ku, Tokyo Matsushima 1 東京都江戸川区松島1 | Traffic 交通 | | JR Sobu Line "Shinkoiwa" walk 18 minutes JR Sobu Line Rapid "Shinkoiwa" walk 18 minutes JR総武線「新小岩」歩18分JR総武線快速「新小岩」歩18分
| Person in charge 担当者より | | Rep Yoshihiko Shimada 担当者島田芳彦 | Contact お問い合せ先 | | Mitsui Rehouse Shinkoiwa shop Mitsui Fudosan Realty (Ltd.) TEL: 0120-926531 [Toll free] Please contact the "saw SUUMO (Sumo)" 三井のリハウス新小岩店三井不動産リアルティ(株)TEL:0120-926531【通話料無料】「SUUMO(スーモ)を見た」と問い合わせください | Administrative expense 管理費 | | 8880 yen / Month (consignment (commuting)) 8880円/月(委託(通勤)) | Repair reserve 修繕積立金 | | 15,860 yen / Month 1万5860円/月 | Time residents 入居時期 | | Consultation 相談 | Whereabouts floor 所在階 | | 4th floor 4階 | Direction 向き | | South 南 | Overview and notices その他概要・特記事項 | | Contact: Yoshihiko Shimada 担当者:島田芳彦 | Structure-storey 構造・階建て | | SRC9 story SRC9階建 | Site of the right form 敷地の権利形態 | | Ownership 所有権 | Use district 用途地域 | | One dwelling 1種住居 | Parking lot 駐車場 | | Sky Mu 空無 | Company profile 会社概要 | | <Mediation> Minister of Land, Infrastructure and Transport (13) No. 000777 (one company) Property distribution management Association (Corporation) metropolitan area real estate Fair Trade Council member Mitsui Rehouse Shinkoiwa shop Mitsui Fudosan Realty Co. Yubinbango124-0024 Katsushika-ku, Tokyo Shinkoiwa 1-48-11 Kita乃屋 First Building fourth floor <仲介>国土交通大臣(13)第000777号(一社)不動産流通経営協会会員 (公社)首都圏不動産公正取引協議会加盟三井のリハウス新小岩店三井不動産リアルティ(株)〒124-0024 東京都葛飾区新小岩1-48-11 北乃屋ファーストビル4階 |
 Local appearance photo
現地外観写真
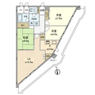
 Floor plan
間取り図
|