|
|
Edogawa-ku, Tokyo
東京都江戸川区
|
|
Tokyo Metro Tozai Line "Nishikasai" walk 8 minutes
東京メトロ東西線「西葛西」歩8分
|
|
[High-grade furnished apartment renovation] It was coordinated to match the conventional Reno Tech original furniture, Plus a variety of items, Directing the space up a notch.
【ハイグレード家具付きリノベーションマンション】従来のリノテックオリジナル家具に合わせてコーディネートした、様々なアイテムをプラスし、ワンランク上の空間を演出。
|
|
■ Large-scale apartment of the total number of units 144 units. ■ Live-management peace of mind. ■ There is a play lot on site.
■総戸数144戸の大規模マンション。■安心の住込み管理。■敷地内にプレイロットがあります。
|
Features pickup 特徴ピックアップ | | Fit renovation / Immediate Available / System kitchen / All room storage / Flat to the station / Washbasin with shower / Warm water washing toilet seat / TV monitor interphone / All living room flooring / Walk-in closet / Maintained sidewalk / All rooms southwestward 適合リノベーション /即入居可 /システムキッチン /全居室収納 /駅まで平坦 /シャワー付洗面台 /温水洗浄便座 /TVモニタ付インターホン /全居室フローリング /ウォークインクロゼット /整備された歩道 /全室南西向き |
Event information イベント情報 | | (Please make a reservation beforehand) (事前に必ず予約してください) |
Property name 物件名 | | Soft Town Kojimacho ソフトタウン小島町 |
Price 価格 | | 32,400,000 yen 3240万円 |
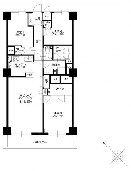
Floor plan 間取り | | 3LDK 3LDK |
Units sold 販売戸数 | | 1 units 1戸 |
Total units 総戸数 | | 144 units 144戸 |
Occupied area 専有面積 | | 78 sq m (center line of wall) 78m2(壁芯) |
Other area その他面積 | | Balcony area: 8.76 sq m バルコニー面積:8.76m2 |
Whereabouts floor / structures and stories 所在階/構造・階建 | | 5th floor / SRC11 story 5階/SRC11階建 |
Completion date 完成時期(築年月) | | April 1976 1976年4月 |
Address 住所 | | Edogawa-ku, Tokyo Nishikasai 2 東京都江戸川区西葛西2 |
Traffic 交通 | | Tokyo Metro Tozai Line "Nishikasai" walk 8 minutes Toei Shinjuku Line "Funabori" walk 27 minutes Tokyo Metro Tozai Line "Minamisunamachi" walk 34 minutes 東京メトロ東西線「西葛西」歩8分 都営新宿線「船堀」歩27分 東京メトロ東西線「南砂町」歩34分
|
Contact お問い合せ先 | | Planning Art (Ltd.) TEL: 0800-601-4886 [Toll free] mobile phone ・ Also available from PHS Caller ID is not notified Please contact the "saw SUUMO (Sumo)" If it does not lead, If the real estate company プランニングアート(株)TEL:0800-601-4886【通話料無料】携帯電話・PHSからもご利用いただけます 発信者番号は通知されません 「SUUMO(スーモ)を見た」と問い合わせください つながらない方、不動産会社の方は
|
Administrative expense 管理費 | | 12,400 yen / Month (consignment (resident)) 1万2400円/月(委託(常駐)) |
Repair reserve 修繕積立金 | | 13,640 yen / Month 1万3640円/月 |
Time residents 入居時期 | | Immediate available 即入居可 |
Whereabouts floor 所在階 | | 5th floor 5階 |
Direction 向き | | Southwest 南西 |
Renovation リフォーム | | 2013 May interior renovation completed (kitchen ・ bathroom ・ toilet ・ wall ・ floor ・ all rooms) 2013年5月内装リフォーム済(キッチン・浴室・トイレ・壁・床・全室) |
Structure-storey 構造・階建て | | SRC11 story SRC11階建 |
Site of the right form 敷地の権利形態 | | Ownership 所有権 |
Use district 用途地域 | | One dwelling 1種住居 |
Company profile 会社概要 | | <Mediation> Governor of Tokyo (6) No. 059604 (Corporation) All Japan Real Estate Association (Corporation) metropolitan area real estate Fair Trade Council member planning Art Co., Ltd. Yubinbango134-0083 Edogawa-ku, Tokyo Nakakasai 3-35-1 <仲介>東京都知事(6)第059604号(公社)全日本不動産協会会員 (公社)首都圏不動産公正取引協議会加盟プランニングアート(株)〒134-0083 東京都江戸川区中葛西3-35-1 |
Construction 施工 | | (Ltd.) Hasegawa builders (株)長谷川工務店 |