2007October
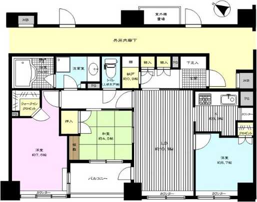
41,800,000 yen, 3LDK + S (storeroom), 74.64 sq m
Used Apartments » Kanto » Tokyo » Edogawa
 
| | Edogawa-ku, Tokyo 東京都江戸川区 |
| Toei Shinjuku Line "Mizue" walk 9 minutes 都営新宿線「瑞江」歩9分 |
Property name 物件名 | | Grand-Suite Mizue グランスイート瑞江 | Price 価格 | | 41,800,000 yen 4180万円 | Floor plan 間取り | | 3LDK + S (storeroom) 3LDK+S(納戸) | Units sold 販売戸数 | | 1 units 1戸 | Total units 総戸数 | | 65 units 65戸 | Occupied area 専有面積 | | 74.64 sq m (center line of wall) 74.64m2(壁芯) | Other area その他面積 | | Balcony area: 5.4 sq m バルコニー面積:5.4m2 | Whereabouts floor / structures and stories 所在階/構造・階建 | | 8th floor / RC8 floors 1 underground story 8階/RC8階地下1階建 | Completion date 完成時期(築年月) | | October 2007 2007年10月 | Address 住所 | | Edogawa-ku, Tokyo Minamishinozaki cho 4 東京都江戸川区南篠崎町4 | Traffic 交通 | | Toei Shinjuku Line "Mizue" walk 9 minutes 都営新宿線「瑞江」歩9分
| Person in charge 担当者より | | Person in charge of Hamaya Hiroshi 担当者濱谷 洋 | Contact お問い合せ先 | | Sumitomo Real Estate Sales Co., Ltd. Nishikasai business center TEL: 03-3680-1115 Please contact as "saw SUUMO (Sumo)" 住友不動産販売(株)西葛西営業センターTEL:03-3680-1115「SUUMO(スーモ)を見た」と問い合わせください | Administrative expense 管理費 | | 12,400 yen / Month (consignment (commuting)) 1万2400円/月(委託(通勤)) | Repair reserve 修繕積立金 | | 6765 yen / Month 6765円/月 | Time residents 入居時期 | | Consultation 相談 | Whereabouts floor 所在階 | | 8th floor 8階 | Direction 向き | | Southwest 南西 | Other limitations その他制限事項 | | / Other expenses breakdown 1 Cable TV fee for use 630 yen / Monthly other expenses breakdown 2 Internet usage fee 997 yen / Monthly Other: 0.1 /その他費用内訳1 ケーブルテレビ使用料630円/月額その他費用内訳2 インターネット使用料997円/月額 その他:0.1 | Overview and notices その他概要・特記事項 | | Contact: Hamaya Hiroshi 担当者:濱谷 洋 | Structure-storey 構造・階建て | | RC8 floors 1 underground story RC8階地下1階建 | Site of the right form 敷地の権利形態 | | Ownership 所有権 | Use district 用途地域 | | Semi-industrial 準工業 | Parking lot 駐車場 | | Sky Mu 空無 | Company profile 会社概要 | | <Mediation> Minister of Land, Infrastructure and Transport (11) No. 002077 (one company) Real Estate Association (Corporation) metropolitan area real estate Fair Trade Council member Sumitomo Real Estate Sales Co., Ltd. Nishikasai business center Yubinbango134-0088 Edogawa-ku, Tokyo Nishikasai 3-16-12 second college student building <仲介>国土交通大臣(11)第002077号(一社)不動産協会会員 (公社)首都圏不動産公正取引協議会加盟住友不動産販売(株)西葛西営業センター〒134-0088 東京都江戸川区西葛西3-16-12 第二大生ビル |
Local appearance photo現地外観写真  appearance
外観
 Floor plan
間取り図
Location
|