|
|
Edogawa-ku, Tokyo
東京都江戸川区
|
|
Toei Shinjuku Line "Ichinoe" walk 13 minutes
都営新宿線「一之江」歩13分
|
|
If Interikkusu of property, Please leave our Interikkusu home sales! ◆ Sky tree from the living room, See the Sumida River Fireworks! ◆ Yang per 3 direction room ・ Good view!
インテリックスの物件なら、弊社インテリックス住宅販売にお任せ下さい!◆リビングからスカイツリー、隅田川の花火が見える!◆3方角部屋で陽あたり・眺望良好!
|
|
・ In 14-story 10 floor, Is missing views! ・ Renovation property peace of mind also comes with after-sales service guarantee! ・ Renovation and construction: Interikkusu space design our HP → http / / www.intellex.jp / bukken-detail / F0567 / we, Interikkusu Group, To the axis of the condominium and Renovation, From renovation Property, Purchase of condominium + until the proposal of renovation, Please let me explain a new way of condominium! If it is a thing of the condominium and Renovation, Please feel free to contact us.
・14階建10階部分で、眺望抜けてます!・アフターサービス保証もついて安心のリノベーション物件!・リノベーション施工:インテリックス空間設計弊社HP→http://www.intellex.jp/bukken-detail/F0567/私達、インテリックスグループは、中古マンションとリノベーションを軸に、リノベーション物件から、中古マンションの購入+リノベーションの提案まで、中古マンションの新しい在り方をご説明させて頂きます! 中古マンションとリノベーションの事なら、お気軽にお問い合わせください。
|
Features pickup 特徴ピックアップ | | Fit renovation / 2 along the line more accessible / System kitchen / Bathroom Dryer / Corner dwelling unit / Yang per good / All room storage / Japanese-style room / High floor / Washbasin with shower / Security enhancement / Wide balcony / Flooring Chokawa / Bicycle-parking space / Elevator / High speed Internet correspondence / Warm water washing toilet seat / Good view / water filter / BS ・ CS ・ CATV / Bike shelter 適合リノベーション /2沿線以上利用可 /システムキッチン /浴室乾燥機 /角住戸 /陽当り良好 /全居室収納 /和室 /高層階 /シャワー付洗面台 /セキュリティ充実 /ワイドバルコニー /フローリング張替 /駐輪場 /エレベーター /高速ネット対応 /温水洗浄便座 /眺望良好 /浄水器 /BS・CS・CATV /バイク置場 |
Property name 物件名 | | More ・ Crest Ichinoe モア・クレスト一之江 |
Price 価格 | | 33,800,000 yen 3380万円 |
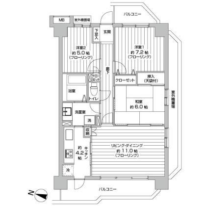
Floor plan 間取り | | 3LDK 3LDK |
Units sold 販売戸数 | | 1 units 1戸 |
Total units 総戸数 | | 52 units 52戸 |
Occupied area 専有面積 | | 73.44 sq m (22.21 tsubo) (center line of wall) 73.44m2(22.21坪)(壁芯) |
Other area その他面積 | | Balcony area: 13.7 sq m バルコニー面積:13.7m2 |
Whereabouts floor / structures and stories 所在階/構造・階建 | | 10th floor / RC14 story 10階/RC14階建 |
Completion date 完成時期(築年月) | | October 1995 1995年10月 |
Address 住所 | | Edogawa-ku, Tokyo Ichinoe 5 東京都江戸川区一之江5 |
Traffic 交通 | | Toei Shinjuku Line "Ichinoe" walk 13 minutes Toei Shinjuku Line "Mizue" walk 23 minutes Toei Shinjuku Line "Funabori" walk 33 minutes 都営新宿線「一之江」歩13分 都営新宿線「瑞江」歩23分 都営新宿線「船堀」歩33分
|
Related links 関連リンク | | [Related Sites of this company] 【この会社の関連サイト】 |
Person in charge 担当者より | | Person in charge of real-estate and building Ogawa Mao (Yokohama) Age: not only 40's real estate, Taking advantage of the work experience of the renovation of the design, You can ride to the consultation of the interior. Question ・ Please feel free to contact us After Gozama question etc.. ※ Kanagawa area responsible ※ 担当者宅建小川 真央 (横浜店)年齢:40代不動産だけでなく、リノベーションの設計の仕事経験を活かし、内装のご相談にものることできます。疑問・質問などござましたらお気軽にお問合せください。※神奈川エリア担当※ |
Contact お問い合せ先 | | TEL: 0800-603-1782 [Toll free] mobile phone ・ Also available from PHS Caller ID is not notified Please contact the "saw SUUMO (Sumo)" If it does not lead, If the real estate company TEL:0800-603-1782【通話料無料】携帯電話・PHSからもご利用いただけます 発信者番号は通知されません 「SUUMO(スーモ)を見た」と問い合わせください つながらない方、不動産会社の方は
|
Administrative expense 管理費 | | 13,800 yen / Month (consignment (cyclic)) 1万3800円/月(委託(巡回)) |
Repair reserve 修繕積立金 | | 8280 yen / Month 8280円/月 |
Time residents 入居時期 | | Consultation 相談 |
Whereabouts floor 所在階 | | 10th floor 10階 |
Direction 向き | | West 西 |
Renovation リフォーム | | October 2013 interior renovation completed (kitchen ・ bathroom ・ toilet ・ wall ・ floor ・ all rooms) 2013年10月内装リフォーム済(キッチン・浴室・トイレ・壁・床・全室) |
Overview and notices その他概要・特記事項 | | Contact: Ogawa Mao (Yokohama) 担当者:小川 真央 (横浜店) |
Structure-storey 構造・階建て | | RC14 story RC14階建 |
Site of the right form 敷地の権利形態 | | Ownership 所有権 |
Use district 用途地域 | | One middle and high, Semi-industrial 1種中高、準工業 |
Parking lot 駐車場 | | Nothing 無 |
Company profile 会社概要 | | <Mediation> Minister of Land, Infrastructure and Transport (3) No. 006493 (Corporation) All Japan Real Estate Association (Corporation) metropolitan area real estate Fair Trade Council member (Ltd.) Interikkusu home sales 150-0002 Shibuya, Shibuya-ku, Tokyo 2-12-19 Token International building 11 floors <仲介>国土交通大臣(3)第006493号(公社)全日本不動産協会会員 (公社)首都圏不動産公正取引協議会加盟(株)インテリックス住宅販売〒150-0002 東京都渋谷区渋谷2-12-19 東建インターナショナルビル11階 |