|
|
Edogawa-ku, Tokyo
東京都江戸川区
|
|
Tokyo Metro Tozai Line "Nishikasai" walk 13 minutes
東京メトロ東西線「西葛西」歩13分
|
|
■ If you are looking for a renovation property to "future urban space." ■ Your will to form a "Good" ■ Original renovation ■ We will back up in the tie-up loan of the city with four banks
■リノベーション物件をお探しなら「未来都市空間」へ■あなたの「こだわり」を形にします■オリジナルリノベーション■都市銀行4行の提携ローンでバックアップいたします
|
|
◆ Southeast ・ 7th floor of the room is the location because it is a good view ◆ Pet breeding Allowed (bylaws Yes) ◆ Trunk room Yes ◆ ■ ■ ■ Peace of mind support the future of urban space ■ ■ ■ □ From the tie-up loan, The best mortgage. We offer a better "capital plan" for you. □ Unreasonable sales pitch does not do. Your Shi your desired ask carefully, We will explain to consent goes.
◆南東向き・7階の部屋位置ですので眺望良好です◆ペット飼育可(細則有)◆トランクルーム有◆ ■■■ 未来都市空間の安心サポート ■■■ □提携ローンの中から、ベストな住宅ローンを。 あなたにとってより良い「資金プラン」をご提案いたします。 □ムリな売り込みはいたしません。 あなたのご希望をじっくりお伺いし、納得がいくまでご説明いたします。
|
Features pickup 特徴ピックアップ | | System kitchen / Bathroom Dryer / All room storage / Security enhancement / Southeast direction / Elevator / Warm water washing toilet seat / High-function toilet / Pets Negotiable システムキッチン /浴室乾燥機 /全居室収納 /セキュリティ充実 /東南向き /エレベーター /温水洗浄便座 /高機能トイレ /ペット相談 |
Event information イベント情報 | | Open Room (please make a reservation beforehand) schedule / During the public ○. ●. ○. ●. ○. ●. ○. ●. ○ to local because the staff does not have to wait, Excuse me, but thank you in advance for your contact (03-3541-7708). It also offers weekday guidance. Please feel free to contact us ○. ●. ○. ●. ○. ●. ○. ●. ○ オープンルーム(事前に必ず予約してください)日程/公開中○。●。○。●。○。●。○。●。○ 現地にスタッフは待機しておりませんので、 恐れ入りますが事前にご連絡(03-3541-7708)をお願い致します。 平日のご案内も承っております。 お気軽にお問い合わせください ○。●。○。●。○。●。○。●。○ |
Property name 物件名 | | Nishikasai Garden House Central Park 西葛西ガーデンハウス中央公園 |
Price 価格 | | 36,800,000 yen 3680万円 |
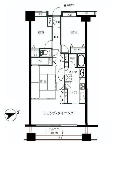
Floor plan 間取り | | 3LDK 3LDK |
Units sold 販売戸数 | | 1 units 1戸 |
Occupied area 専有面積 | | 71.4 sq m (center line of wall) 71.4m2(壁芯) |
Other area その他面積 | | Balcony area: 7.32 sq m バルコニー面積:7.32m2 |
Whereabouts floor / structures and stories 所在階/構造・階建 | | 7th floor / RC9 story 7階/RC9階建 |
Completion date 完成時期(築年月) | | August 1998 1998年8月 |
Address 住所 | | Edogawa-ku, Tokyo Kitakasai 4 東京都江戸川区北葛西4 |
Traffic 交通 | | Tokyo Metro Tozai Line "Nishikasai" walk 13 minutes Tokyo Metro Tozai Line "Kasai" walk 12 minutes Toei Shinjuku Line "Funabori" walk 20 minutes 東京メトロ東西線「西葛西」歩13分 東京メトロ東西線「葛西」歩12分 都営新宿線「船堀」歩20分
|
Related links 関連リンク | | [Related Sites of this company] 【この会社の関連サイト】 |
Person in charge 担当者より | | Rep Nakata Asami Age: 20's customers nor Mansion, I think that there are a variety of personalities and facial expressions. among them, Unplug select the property of the "suits" for customers, I think I want to be a bridge to the house of satisfactory ideal. Thank you. 担当者中田 麻美年齢:20代お客様もマンションも、様々な個性や表情があると思います。その中で、お客様にとって「お似合い」の物件を選び抜き、満足のいく理想の住まいへの架け橋になりたいと思います。宜しくお願い致します。 |
Contact お問い合せ先 | | TEL: 0800-602-6241 [Toll free] mobile phone ・ Also available from PHS Caller ID is not notified Please contact the "saw SUUMO (Sumo)" If it does not lead, If the real estate company TEL:0800-602-6241【通話料無料】携帯電話・PHSからもご利用いただけます 発信者番号は通知されません 「SUUMO(スーモ)を見た」と問い合わせください つながらない方、不動産会社の方は
|
Administrative expense 管理費 | | 9070 yen / Month (consignment (cyclic)) 9070円/月(委託(巡回)) |
Repair reserve 修繕積立金 | | 12,990 yen / Month 1万2990円/月 |
Time residents 入居時期 | | Consultation 相談 |
Whereabouts floor 所在階 | | 7th floor 7階 |
Direction 向き | | Southeast 南東 |
Renovation リフォーム | | December 2013 interior renovation completed (kitchen ・ bathroom ・ toilet ・ wall ・ floor) 2013年12月内装リフォーム済(キッチン・浴室・トイレ・壁・床) |
Overview and notices その他概要・特記事項 | | Contact: Nakata Asami 担当者:中田 麻美 |
Structure-storey 構造・階建て | | RC9 story RC9階建 |
Site of the right form 敷地の権利形態 | | Ownership 所有権 |
Use district 用途地域 | | City planning area outside 都市計画区域外 |
Parking lot 駐車場 | | Nothing 無 |
Company profile 会社概要 | | <Marketing alliance (mediated)> Governor of Tokyo (1) No. 093401 (Ltd.) future urban space Yubinbango104-0045, Chuo-ku, Tokyo Tsukiji 5-3-3 Tsukiji Hama Building 1F <販売提携(媒介)>東京都知事(1)第093401号(株)未来都市空間〒104-0045 東京都中央区築地5-3-3 築地浜離宮ビル1F |