Used Apartments » Kanto » Tokyo » Hachioji


Hachioji, Tokyo
Keiō Takao Line "Mejirodai" walk 3 minutes
"Hachioji Mejirodai 1-chome" Keio Takaosen Mejirodai Station 3-minute walk, 3-story first floor of the basement 1 Kaizuke footprint spacious 109.58m2 spacious 4LDK, Yang per good on the south-facing, With a private garden
■ L-shaped counter kitchen with heating, 16.7 Pledge LDK, All rooms with storage, Underground first floor 3 room, Soku your delivery Allowed
Features pickup
Immediate Available / Super close / Facing south / System kitchen / Yang per good / All room storage / LDK15 tatami mats or more / Japanese-style room / Face-to-face kitchen / Toilet 2 places / Otobasu / Warm water washing toilet seat
Property name
<Rifine Mejirodai> Mejirodai 1-chome
Price
32 million yen
Floor plan
4LDK
Units sold
1 units
Total units
16 houses
Occupied area
109.58 sq m (33.14 square meters)
Whereabouts floor / structures and stories
1st floor / RC3 floors 1 underground story
Completion date
February 1995
Address
Hachioji, Tokyo Mejirodai 1
Traffic
Keiō Takao Line "Mejirodai" walk 3 minutes
Related links
[Related Sites of this company]
Person in charge
[Regarding this property.] Billing questions or detailed documentation, Please not feel free to contact us, such as your choice of tour [0120-339-021] Century 21 residential Engineering Management sales, Please let us not hesitate to also consult about your house.
Contact
TEL: 0800-809-8309 [Toll free] mobile phone ・ Also available from PHS
Caller ID is not notified
Please contact the "saw SUUMO (Sumo)"
If it does not lead, If the real estate company
Administrative expense
¥ 10,000 / Month (consignment (cyclic))
Repair reserve
1200 yen / Month
Time residents
Immediate available
Whereabouts floor
1st floor
Direction
South
Structure-storey
RC3 floors 1 underground story
Site of the right form
Ownership
Parking lot
Sky Mu
Company profile
<Mediation> Governor of Tokyo (7) No. 050689 (Corporation) Tokyo Metropolitan Government Building Lots and Buildings Transaction Business Association (Corporation) metropolitan area real estate Fair Trade Council member Century 21 (Ltd.) house Engineering Management sales Yubinbango192-0073 Hachioji, Tokyo Teramachi 69


Local appearance photo

Local appearance photo. Rifine Mejirodai
Rifine Mejirodai

Entrance

Entrance. Common areas
Common areas

Other

Other. Local photos, including the front road
Local photos, including the front road

Living

Living. 16.7 Pledge LDK
16.7 Pledge LDK

Kitchen

Kitchen. L-shaped kitchen
L-shaped kitchen

Bathroom
Bathroom

Wash basin, toilet
Wash basin, toilet

Non-living room
Non-living room

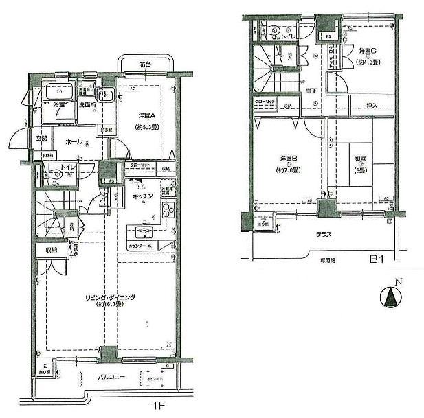
Floor plan

Floor plan. 4LDK, Price 32 million yen, Footprint 109.58 sq m
4LDK, Price 32 million yen, Footprint 109.58 sq m

Supermarket

Supermarket. 127m until Keiosutoa Mejirodai shop
127m until Keiosutoa Mejirodai shop

Supermarket. 1100m until Super Alps Hazama shop
1100m until Super Alps Hazama shop

Supermarket. Ecos Tairaya Corporation until Higashiasakawa shop 1200m
Ecos Tairaya Corporation until Higashiasakawa shop 1200m

Primary school

Primary school. 467m to Hachioji City Yamada Elementary School
467m to Hachioji City Yamada Elementary School

Junior high school

Junior high school. 724m to Hachioji City Yokoyama junior high school
724m to Hachioji City Yokoyama junior high school

Park

park. To Manyo Park 381m
To Manyo Park 381m

Hospital

Hospital. 218m until Nakamura internal medicine clinic
218m until Nakamura internal medicine clinic



Location