2008May
20,900,000 yen, 3LDK, 64.93 sq m
Used Apartments » Kanto » Tokyo » Hachioji
 
| | Hachioji, Tokyo 東京都八王子市 |
| JR Hachikō Line "north of Hachioji" walk 7 minutes JR八高線「北八王子」歩7分 |
| Built shallow properties with floor heating! Pets OK (Terms have) 2 Line 2 stations available! Super near shopping convenient! 床暖房付きの築浅物件!ペットOK(規約有)2路線2駅利用可能!スーパー近く買物便利! |
| Construction Housing Performance Evaluation Report Yes 建設住宅性能評価書有 |
Features pickup 特徴ピックアップ | | 2 along the line more accessible / Super close / System kitchen / Face-to-face kitchen / Elevator / Warm water washing toilet seat / Pets Negotiable / Floor heating / Delivery Box 2沿線以上利用可 /スーパーが近い /システムキッチン /対面式キッチン /エレベーター /温水洗浄便座 /ペット相談 /床暖房 /宅配ボックス | Property name 物件名 | | Sunny Court Hachioji サニーコート八王子 | Price 価格 | | 20,900,000 yen 2090万円 | Floor plan 間取り | | 3LDK 3LDK | Units sold 販売戸数 | | 1 units 1戸 | Total units 総戸数 | | 42 units 42戸 | Occupied area 専有面積 | | 64.93 sq m (center line of wall) 64.93m2(壁芯) | Other area その他面積 | | Balcony area: 11.34 sq m バルコニー面積:11.34m2 | Whereabouts floor / structures and stories 所在階/構造・階建 | | 3rd floor / RC6 story 3階/RC6階建 | Completion date 完成時期(築年月) | | May 2008 2008年5月 | Address 住所 | | Hachioji, Tokyo Takakura-cho 東京都八王子市高倉町 | Traffic 交通 | | JR Hachikō Line "north of Hachioji" walk 7 minutes JR Chuo Line, "Toyoda" walk 20 minutes JR八高線「北八王子」歩7分 JR中央線「豊田」歩20分
| Related links 関連リンク | | [Related Sites of this company] 【この会社の関連サイト】 | Contact お問い合せ先 | | TEL: 0120-207714 [Toll free] Please contact the "saw SUUMO (Sumo)" TEL:0120-207714【通話料無料】「SUUMO(スーモ)を見た」と問い合わせください | Administrative expense 管理費 | | 11,000 yen / Month (consignment (commuting)) 1万1000円/月(委託(通勤)) | Repair reserve 修繕積立金 | | 3300 yen / Month 3300円/月 | Time residents 入居時期 | | Consultation 相談 | Whereabouts floor 所在階 | | 3rd floor 3階 | Direction 向き | | Southwest 南西 | Structure-storey 構造・階建て | | RC6 story RC6階建 | Site of the right form 敷地の権利形態 | | Ownership 所有権 | Use district 用途地域 | | Semi-industrial 準工業 | Parking lot 駐車場 | | Sky Mu 空無 | Company profile 会社概要 | | <Mediation> Governor of Tokyo (7) No. 049581 (Corporation) Tokyo Metropolitan Government Building Lots and Buildings Transaction Business Association (Corporation) metropolitan area real estate Fair Trade Council member (Ltd.) KyoSusumu housing Yubinbango192-0055 Hachioji, Tokyo Yagi-cho, 5-4 <仲介>東京都知事(7)第049581号(公社)東京都宅地建物取引業協会会員 (公社)首都圏不動産公正取引協議会加盟(株)協進住宅〒192-0055 東京都八王子市八木町5-4 |
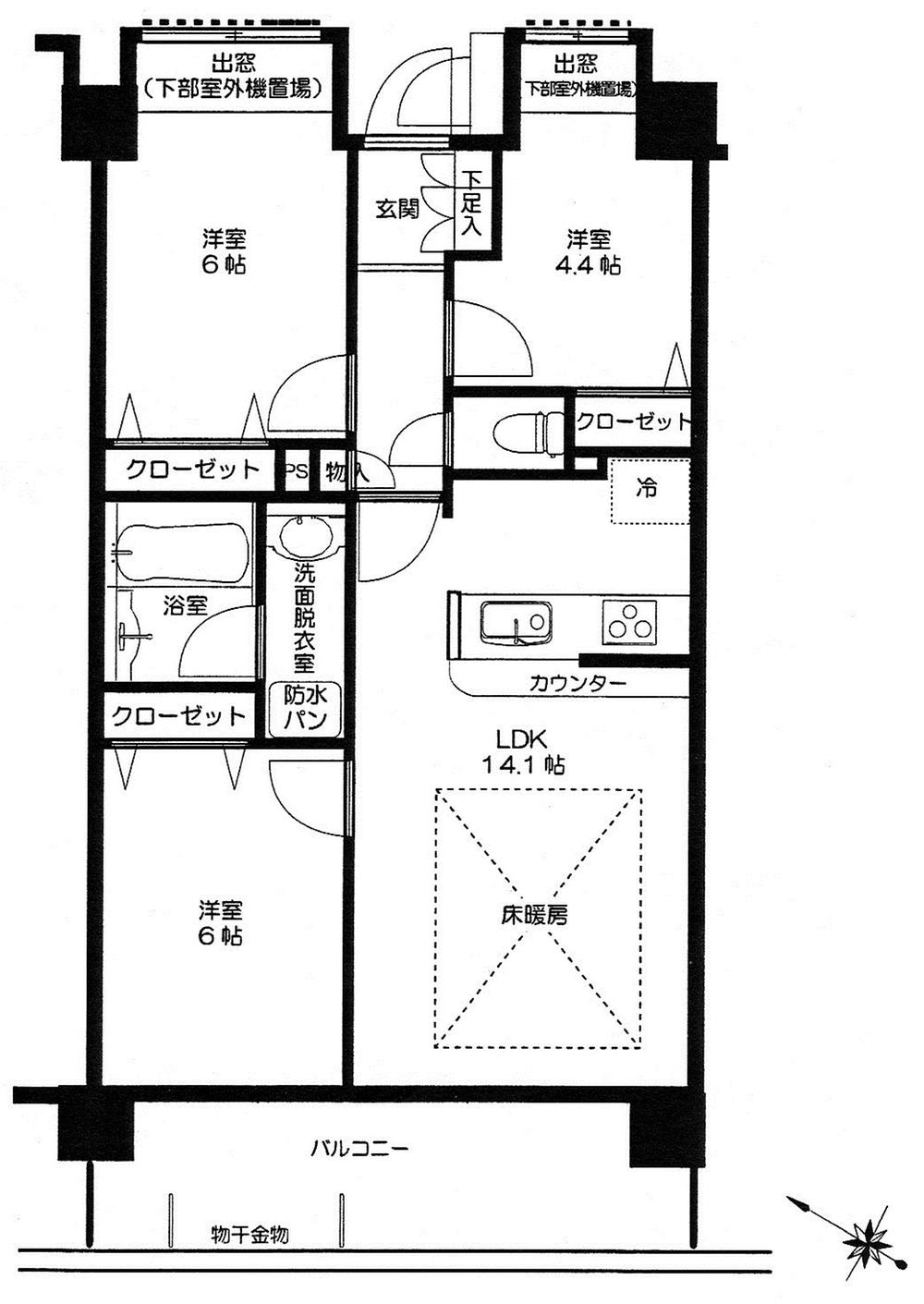
Floor plan間取り図  3LDK, Price 20,900,000 yen, Occupied area 64.93 sq m , Balcony area 11.34 sq m
3LDK、価格2090万円、専有面積64.93m2、バルコニー面積11.34m2
Local appearance photo現地外観写真  Local (09 May 2013) Shooting
現地(2013年09月)撮影
 Local (09 May 2013) Shooting
現地(2013年09月)撮影
Entranceエントランス  Common areas
共用部
Location
|