|
|
Hachioji, Tokyo
東京都八王子市
|
|
Keio Line "Kitano" 10 minutes KATAKURA Taif 4 minutes by bus
京王線「北野」バス10分片倉台歩4分
|
|
If Interikkusu of property, Please leave our Interikkusu home sales! ◆ Three direction room roof balcony 67.40 sq m with! ◆ Exposure to the sun ・ Good view!
インテリックスの物件なら、弊社インテリックス住宅販売にお任せ下さい!◆三方角部屋ルーフバルコニー67.40m2付!◆陽当り・眺望良好!
|
|
・ auto lock ・ Pasting outer wall tile ・ Renovation and construction: Interikkusu space design our HP → http / / www.intellex.jp / we, Interikkusu Group, To the axis of the condominium and Renovation, From renovation Property, Purchase of condominium + until the proposal of renovation, Please let me explain a new way of condominium! If it is a thing of the condominium and Renovation, Please feel free to contact us.
・オートロック・外壁タイル貼・リノベーション施工:インテリックス空間設計弊社HP→http://www.intellex.jp/私達、インテリックスグループは、中古マンションとリノベーションを軸に、リノベーション物件から、中古マンションの購入+リノベーションの提案まで、中古マンションの新しい在り方をご説明させて頂きます! 中古マンションとリノベーションの事なら、お気軽にお問い合わせください。
|
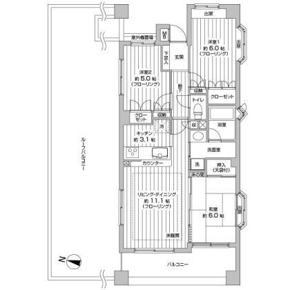
Features pickup 特徴ピックアップ | | Fit renovation / Immediate Available / 2 along the line more accessible / Bathroom Dryer / Security enhancement / Plane parking / 2 or more sides balcony / The window in the bathroom / Pets Negotiable / roof balcony 適合リノベーション /即入居可 /2沿線以上利用可 /浴室乾燥機 /セキュリティ充実 /平面駐車場 /2面以上バルコニー /浴室に窓 /ペット相談 /ルーフバルコニー |
Property name 物件名 | | San cradle Hachioji Kitanodai サンクレイドル八王子北野台 |
Price 価格 | | 23.8 million yen 2380万円 |
Floor plan 間取り | | 3LDK 3LDK |
Units sold 販売戸数 | | 1 units 1戸 |
Total units 総戸数 | | 100 households 100戸 |
Occupied area 専有面積 | | 68.17 sq m (center line of wall) 68.17m2(壁芯) |
Other area その他面積 | | Balcony area: 17.91 sq m , Roof balcony: 67.4 sq m (use fee 750 yen / Month) バルコニー面積:17.91m2、ルーフバルコニー:67.4m2(使用料750円/月) |
Whereabouts floor / structures and stories 所在階/構造・階建 | | 5th floor / RC8 story 5階/RC8階建 |
Completion date 完成時期(築年月) | | October 2001 2001年10月 |
Address 住所 | | Hachioji, Tokyo Kitanodai 5 東京都八王子市北野台5 |
Traffic 交通 | | Keio Line "Kitano" 10 minutes KATAKURA Taif 4 minutes by bus JR Yokohama Line "KATAKURA" walk 23 minutes Keio Line "Naganuma" walk 23 minutes 京王線「北野」バス10分片倉台歩4分 JR横浜線「片倉」歩23分 京王線「長沼」歩23分
|
Related links 関連リンク | | [Related Sites of this company] 【この会社の関連サイト】 |
Person in charge 担当者より | | Person in charge of real-estate and building Enomoto Ryota Age: 30 Daigyokai experience: not only to introduce the six years just listing, "How risk that few if" "If Re How, Whether we are living the ideal ", etc., We need to realize the full renovation of knowledge, We offer. 担当者宅建榎本 亮太年齢:30代業界経験:6年ただ物件を紹介するだけではなく、「どのようにすればリスクが少ないのか」「どうれば、理想の暮らしができるのか」など、リノベーションの知識を最大限活用して、ご提案させて頂きます。 |
Contact お問い合せ先 | | TEL: 0800-603-1782 [Toll free] mobile phone ・ Also available from PHS Caller ID is not notified Please contact the "saw SUUMO (Sumo)" If it does not lead, If the real estate company TEL:0800-603-1782【通話料無料】携帯電話・PHSからもご利用いただけます 発信者番号は通知されません 「SUUMO(スーモ)を見た」と問い合わせください つながらない方、不動産会社の方は
|
Administrative expense 管理費 | | 8860 yen / Month (consignment (commuting)) 8860円/月(委託(通勤)) |
Repair reserve 修繕積立金 | | 10,510 yen / Month 1万510円/月 |
Expenses 諸費用 | | Internet Initial Cost: TBD, Flat fee: unspecified amount, CATV initial Cost: TBD, Flat fee: unspecified amount インターネット初期費用:金額未定、定額料金:金額未定、CATV初期費用:金額未定、定額料金:金額未定 |
Time residents 入居時期 | | Immediate available 即入居可 |
Whereabouts floor 所在階 | | 5th floor 5階 |
Direction 向き | | West 西 |
Renovation リフォーム | | December 2013 interior renovation completed (toilet ・ wall ・ floor) 2013年12月内装リフォーム済(トイレ・壁・床) |
Overview and notices その他概要・特記事項 | | Contact: Enomoto Ryota 担当者:榎本 亮太 |
Structure-storey 構造・階建て | | RC8 story RC8階建 |
Site of the right form 敷地の権利形態 | | Ownership 所有権 |
Use district 用途地域 | | Two dwellings 2種住居 |
Parking lot 駐車場 | | Site (2000 yen ~ 7000 yen / Month) 敷地内(2000円 ~ 7000円/月) |
Company profile 会社概要 | | <Mediation> Minister of Land, Infrastructure and Transport (3) No. 006493 (Corporation) All Japan Real Estate Association (Corporation) metropolitan area real estate Fair Trade Council member (Ltd.) Interikkusu home sales 150-0002 Shibuya, Shibuya-ku, Tokyo 2-12-19 Token International building 11 floors <仲介>国土交通大臣(3)第006493号(公社)全日本不動産協会会員 (公社)首都圏不動産公正取引協議会加盟(株)インテリックス住宅販売〒150-0002 東京都渋谷区渋谷2-12-19 東建インターナショナルビル11階 |
Construction 施工 | | Matsushita industry (株)松下産業 |