|
|
Hachioji, Tokyo
東京都八王子市
|
|
JR Yokohama Line "Hachioji" walk 5 minutes
JR横浜線「八王子」歩5分
|
|
You walk in the bright road one of the shopping street from the train station. Living is a feeling of opening 20 Pledge. This renovation has been the room.
駅から商店街の明るい道1本で歩けます。リビングは開放感のある20帖。リノベーションされたお部屋です。
|
|
■ Our Sumitai the JR Yokohama Line Machida Station walk [30 seconds] ■ To suit the needs of our customers [All-day guidance] Doing ■ By staff who are familiar with each region [Wide area] Is possible. Introduction ■ Guidance from the Contact Us, Your delivery from the contract, By full-time staff of only customers up to after-sales service [Consistent support system] The available! ■ school, Supermarket, Traffic access, Such as hospitals [Neighborhood environment guidance] It will do ■ [All of the mortgage] It is possible handling of ■ Movers, Construction company, Insurance companies, etc. [A large number of partner companies] Introducing the! ■ gas, Water, Electrical, etc. [Also guidance for the various Procedures] It will do ■ By the guidance and counsel tax accountant of the necessary tax returns after the home purchase [Free Seminar]
■当社スミタイはJR横浜線町田駅徒歩【30秒】■お客様のご要望に合わせて【終日ご案内】しております■各地域に精通したスタッフによる【広域エリア】のご紹介が可能です■お問合せからご案内、ご契約からお引渡し、アフターサービスまでお客様だけの専任スタッフによる【一貫したサポート体制】をご用意!■学校、スーパー、交通アクセス、病院等の【近隣環境もご案内】致します■【全ての住宅ローン】のお取扱いが可能です■引越し業者、建築会社、保険会社など【多数の協力会社】をご紹介!■ガス、水道、電気等の【各種お手続きについてもご案内】致します■住宅購入後に必要な確定申告のご案内及び顧問税理士による【無料セミナー開催】
|
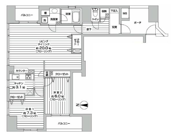
Features pickup 特徴ピックアップ | | Immediate Available / LDK20 tatami mats or more / System kitchen / Bathroom Dryer / Bicycle-parking space / Elevator / Warm water washing toilet seat / TV monitor interphone / Renovation / All living room flooring / water filter / Delivery Box 即入居可 /LDK20畳以上 /システムキッチン /浴室乾燥機 /駐輪場 /エレベーター /温水洗浄便座 /TVモニタ付インターホン /リノベーション /全居室フローリング /浄水器 /宅配ボックス |
Property name 物件名 | | Ritz Tower Hachioji リッツタワー八王子 |
Price 価格 | | 30,950,000 yen 3095万円 |
Floor plan 間取り | | 2LDK 2LDK |
Units sold 販売戸数 | | 1 units 1戸 |
Total units 総戸数 | | 45 units 45戸 |
Occupied area 専有面積 | | 81.68 sq m (center line of wall) 81.68m2(壁芯) |
Other area その他面積 | | Balcony area: 10.72 sq m バルコニー面積:10.72m2 |
Whereabouts floor / structures and stories 所在階/構造・階建 | | Second floor / RC13 story 2階/RC13階建 |
Completion date 完成時期(築年月) | | May 2001 2001年5月 |
Address 住所 | | Hachioji, Tokyo Yokoyama-cho, 23-4 東京都八王子市横山町23-4 |
Traffic 交通 | | JR Yokohama Line "Hachioji" walk 5 minutes JR Chuo Line "Hachioji" walk 5 minutes Keio Line "Hachioji Keio" walk 7 minutes JR横浜線「八王子」歩5分 JR中央線「八王子」歩5分 京王線「京王八王子」歩7分
|
Related links 関連リンク | | [Related Sites of this company] 【この会社の関連サイト】 |
Person in charge 担当者より | | The first distribution division personnel Nakajima Seiichi Age: 30 Daigyokai Experience: 9-year customer of your ideal depicted housing will continue differently everyone. I generally ・ Objective eyes and Area ・ Professional knowledge accompanying the wayside of the housing ・ Market trends, also taking into account, We are allowed to make proposals to the customer under the motto of fun details 担当者第1流通事業部 中島成一年齢:30代業界経験:9年お客様が描かれている御理想の住宅は皆様異なって参ります。私は一般的・客観的な目線とエリア・沿線の住宅に付随した専門的知識・相場動向等も加味し、楽しく詳しくをモットーにお客様にご提案させて頂いております |
Contact お問い合せ先 | | TEL: 0800-603-9093 [Toll free] mobile phone ・ Also available from PHS Caller ID is not notified Please contact the "saw SUUMO (Sumo)" If it does not lead, If the real estate company TEL:0800-603-9093【通話料無料】携帯電話・PHSからもご利用いただけます 発信者番号は通知されません 「SUUMO(スーモ)を見た」と問い合わせください つながらない方、不動産会社の方は
|
Administrative expense 管理費 | | 18,790 yen / Month (consignment (commuting)) 1万8790円/月(委託(通勤)) |
Repair reserve 修繕積立金 | | 8810 yen / Month 8810円/月 |
Time residents 入居時期 | | Immediate available 即入居可 |
Whereabouts floor 所在階 | | Second floor 2階 |
Direction 向き | | West 西 |
Renovation リフォーム | | December 2013 interior renovation completed (kitchen ・ bathroom ・ toilet ・ wall ・ floor ・ all rooms ・ Interior renovation) 2013年12月内装リフォーム済(キッチン・浴室・トイレ・壁・床・全室・室内リノベーション) |
Overview and notices その他概要・特記事項 | | The person in charge: first distribution business unit Nakajima Seiichi 担当者:第1流通事業部 中島成一 |
Structure-storey 構造・階建て | | RC13 story RC13階建 |
Site of the right form 敷地の権利形態 | | Ownership 所有権 |
Use district 用途地域 | | Commerce 商業 |
Parking lot 駐車場 | | Site (23,000 yen / Month) 敷地内(2万3000円/月) |
Company profile 会社概要 | | <Mediation> Governor of Tokyo (1) the first 090,169 No. live want information net (Ltd.) Sumitai headquarters Yubinbango194-0013 Machida, Tokyo Haramachida 1-1-3 high stone building the fourth floor <仲介>東京都知事(1)第090169号住みたい情報ネット(株)スミタイ本社〒194-0013 東京都町田市原町田1-1-3 ハイストーンビル4階 |