Used Apartments » Kanto » Tokyo » Hachioji
 
| | Hachioji, Tokyo 東京都八王子市 |
| JR Yokohama Line "Hachioji" walk 5 minutes JR横浜線「八王子」歩5分 |
| There Pledge LDK23 in the renovation completed apartment of Hachioji Station 5-minute walk. Life is conveniently located. 八王子駅徒歩5分のリノベーション済マンションでLDK23帖あります。生活が便利な立地です。 |
Property name 物件名 | | Ritz Tower Hachioji リッツタワー八王子 | Price 価格 | | 30,950,000 yen 3095万円 | Floor plan 間取り | | 2LDK 2LDK | Units sold 販売戸数 | | 1 units 1戸 | Occupied area 専有面積 | | 81.68 sq m (center line of wall) 81.68m2(壁芯) | Other area その他面積 | | Balcony area: 10.72 sq m バルコニー面積:10.72m2 | Whereabouts floor / structures and stories 所在階/構造・階建 | | Second floor / RC13 story 2階/RC13階建 | Completion date 完成時期(築年月) | | May 2001 2001年5月 | Address 住所 | | Hachioji, Tokyo Yokoyama-cho 東京都八王子市横山町 | Traffic 交通 | | JR Yokohama Line "Hachioji" walk 5 minutes JR Chuo Line "Hachioji" walk 5 minutes Keio Line "Hachioji Keio" walk 7 minutes JR横浜線「八王子」歩5分 JR中央線「八王子」歩5分 京王線「京王八王子」歩7分
| Contact お問い合せ先 | | TEL: 0800-603-8480 [Toll free] mobile phone ・ Also available from PHS Caller ID is not notified Please contact the "saw SUUMO (Sumo)" If it does not lead, If the real estate company TEL:0800-603-8480【通話料無料】携帯電話・PHSからもご利用いただけます 発信者番号は通知されません 「SUUMO(スーモ)を見た」と問い合わせください つながらない方、不動産会社の方は
| Administrative expense 管理費 | | 18,790 yen / Month (consignment (commuting)) 1万8790円/月(委託(通勤)) | Repair reserve 修繕積立金 | | 8810 yen / Month 8810円/月 | Time residents 入居時期 | | Immediate available 即入居可 | Whereabouts floor 所在階 | | Second floor 2階 | Direction 向き | | West 西 | Structure-storey 構造・階建て | | RC13 story RC13階建 | Site of the right form 敷地の権利形態 | | Ownership 所有権 | Use district 用途地域 | | Commerce 商業 | Parking lot 駐車場 | | Site (23,000 yen ~ 25,000 yen / Month) 敷地内(2万3000円 ~ 2万5000円/月) | Company profile 会社概要 | | <Mediation> Kanagawa Governor (2) Article 026 475 issue (stock) residence of square HOMESyubinbango252-0231 Sagamihara, Kanagawa Prefecture, Chuo-ku, Sagamihara 5-1-2A <仲介>神奈川県知事(2)第026475号(株)住まいの広場HOMES〒252-0231 神奈川県相模原市中央区相模原5-1-2A |
Local appearance photo現地外観写真  There Pledge LDK23 in the renovation completed apartment of Hachioji Station 5-minute walk. Life is conveniently located.
八王子駅徒歩5分のリノベーション済マンションでLDK23帖あります。生活が便利な立地です。
Livingリビング  Flooring ・ It is pre-exchange cross Zhang.
フローリング・クロス張替済みです。
 Living
リビング
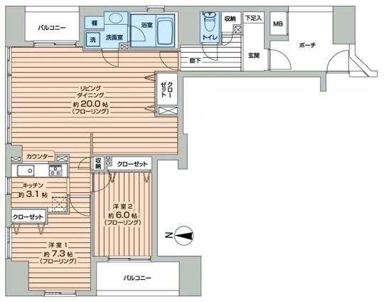
Floor plan間取り図  2LDK, Price 30,950,000 yen, Occupied area 81.68 sq m , Balcony area 10.72 sq m
2LDK、価格3095万円、専有面積81.68m2、バルコニー面積10.72m2
 Local appearance photo
現地外観写真
Bathroom浴室  unit bus, New replaced.
ユニットバス、新規交換済み
Kitchenキッチン  Stove burner ・ Water purifier built-in shower water washing, New replaced..
ガスコンロ・浄水器内蔵シャワー水洗、新規交換済み。
 Non-living room
リビング以外の居室
 Wash basin, toilet
洗面台・洗面所
 Receipt
収納
 Toilet
トイレ
 Entrance
エントランス
 Parking lot
駐車場
 Balcony
バルコニー
 Local appearance photo
現地外観写真
 Non-living room
リビング以外の居室
 Receipt
収納
 Receipt
収納
Location
|