Used Apartments » Kanto » Tokyo » Higashiyamato
 
| | Tokyo Higashiyamato 東京都東大和市 |
| Seibu Haijima Line "Higashiyamato" bus 7 minutes Higashiyamato one Ayumi Konan 9 minutes 西武拝島線「東大和市」バス7分東大和一小南歩9分 |
| ◆ Roof Garden 8.85 maisonette apartment with a sq m (2 ・ 3rd floor) ◆ South ・ West ・ North of 3 direction room ◆ Management system good ◆ There enter things in upstairs top ◆ルーフガーデン8.85m2付きのメゾネットマンション(2・3階)◆南・西・北の3方角部屋◆管理体制良好◆上階上部に物入あり |
| ◇ 2 wayside more accessible ◇ facing south ◇ interior renovation ◇ system Kitchen ◇ warm water washing toilet seat ◇ per yang good ◇ ventilation good ◇ pet consultation ◇ immediately Available ◇2沿線以上利用可 ◇南向き ◇内装リフォーム ◇システムキッチン ◇温水洗浄便座◇陽当り良好 ◇通風良好 ◇ペット相談 ◇即入居可 |
Features pickup 特徴ピックアップ | | Immediate Available / 2 along the line more accessible / Interior renovation / Facing south / System kitchen / Yang per good / Japanese-style room / Warm water washing toilet seat / Ventilation good / Pets Negotiable 即入居可 /2沿線以上利用可 /内装リフォーム /南向き /システムキッチン /陽当り良好 /和室 /温水洗浄便座 /通風良好 /ペット相談 | Property name 物件名 | | Home Town Miyamae 5 Building ホームタウン宮前5号棟 | Price 価格 | | 15.8 million yen 1580万円 | Floor plan 間取り | | 4LDK 4LDK | Units sold 販売戸数 | | 1 units 1戸 | Total units 総戸数 | | 50 units 50戸 | Occupied area 専有面積 | | 96.61 sq m (29.22 tsubo) (center line of wall) 96.61m2(29.22坪)(壁芯) | Other area その他面積 | | Balcony area: 3.97 sq m バルコニー面積:3.97m2 | Whereabouts floor / structures and stories 所在階/構造・階建 | | Second floor / RC3 story 2階/RC3階建 | Completion date 完成時期(築年月) | | August 1982 1982年8月 | Address 住所 | | Tokyo Higashiyamato Takagi 3 東京都東大和市高木3 | Traffic 交通 | | Seibu Haijima Line "Higashiyamato" bus 7 minutes Higashiyamato one Ayumi Konan 9 minutes Seibu Tamako Line "Musashiyamato" walk 18 minutes Tama Monorail "Kamikitadai" walk 23 minutes 西武拝島線「東大和市」バス7分東大和一小南歩9分 西武多摩湖線「武蔵大和」歩18分 多摩都市モノレール「上北台」歩23分
| Person in charge 担当者より | | [Regarding this property.] ◆ South ・ West ・ North of 3 direction room ◆ Per diem ・ Ventilation good ◆ Roof Garden with 8.85 sq m ◆ There enter things in upstairs top 【この物件について】◆南・西・北の3方角部屋 ◆日当・通風良好 ◆ルーフガーデン8.85m2付き ◆上階上部に物入あり | Contact お問い合せ先 | | TEL: 0800-601-6315 [Toll free] mobile phone ・ Also available from PHS Caller ID is not notified Please contact the "saw SUUMO (Sumo)" If it does not lead, If the real estate company TEL:0800-601-6315【通話料無料】携帯電話・PHSからもご利用いただけます 発信者番号は通知されません 「SUUMO(スーモ)を見た」と問い合わせください つながらない方、不動産会社の方は
| Administrative expense 管理費 | | ¥ 10,000 / Month (consignment (commuting)) 1万円/月(委託(通勤)) | Repair reserve 修繕積立金 | | 7500 yen / Month 7500円/月 | Time residents 入居時期 | | Immediate available 即入居可 | Whereabouts floor 所在階 | | Second floor 2階 | Direction 向き | | South 南 | Renovation リフォーム | | 2013 September interior renovation completed (kitchen ・ bathroom ・ toilet ・ wall ・ floor ・ Wash basin, Water heater, etc.) 2013年9月内装リフォーム済(キッチン・浴室・トイレ・壁・床・洗面台、給湯器他) | Structure-storey 構造・階建て | | RC3 story RC3階建 | Site of the right form 敷地の権利形態 | | Ownership 所有権 | Parking lot 駐車場 | | On-site (fee Mu) 敷地内(料金無) | Company profile 会社概要 | | <Marketing alliance (mediated)> Governor of Tokyo (1) No. 095845 (Ltd.) My Land real estate sales Yubinbango104-0028, Chuo-ku, Tokyo Yaesu 2-2-12 <販売提携(媒介)>東京都知事(1)第095845号(株)マイランド不動産販売〒104-0028 東京都中央区八重洲2-2-12 |
Local appearance photo現地外観写真  Local (11 May 2013) Shooting
現地(2013年11月)撮影
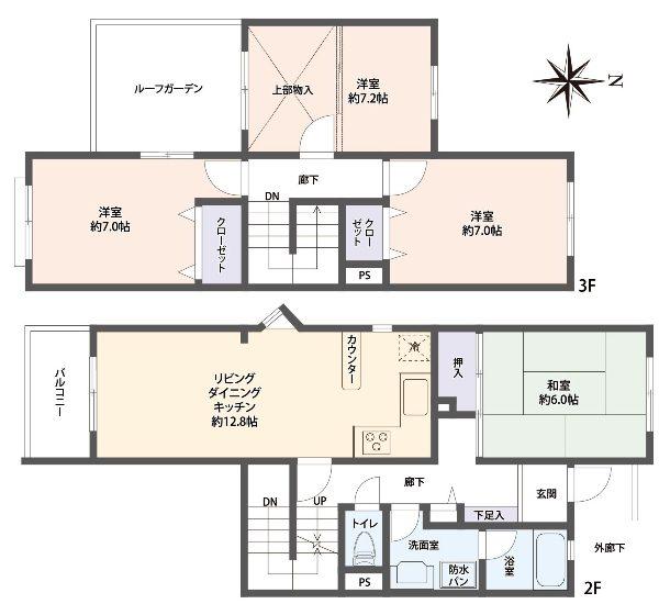
Floor plan間取り図  4LDK, Price 15.8 million yen, Occupied area 96.61 sq m , Balcony area 3.97 sq m
4LDK、価格1580万円、専有面積96.61m2、バルコニー面積3.97m2
Kitchenキッチン  Indoor (11 May 2013) Shooting
室内(2013年11月)撮影
Bathroom浴室  Indoor (11 May 2013) Shooting
室内(2013年11月)撮影
Kitchenキッチン  Indoor (11 May 2013) Shooting
室内(2013年11月)撮影
Non-living roomリビング以外の居室  Indoor (11 May 2013) Shooting
室内(2013年11月)撮影
Wash basin, toilet洗面台・洗面所  Indoor (11 May 2013) Shooting
室内(2013年11月)撮影
Receipt収納  Indoor (11 May 2013) Shooting
室内(2013年11月)撮影
Toiletトイレ  Indoor (11 May 2013) Shooting
室内(2013年11月)撮影
Balconyバルコニー  Local (11 May 2013) Shooting
現地(2013年11月)撮影
Other introspectionその他内観  Indoor (11 May 2013) Shooting
室内(2013年11月)撮影
View photos from the dwelling unit住戸からの眺望写真  View (November 2013) Shooting
眺望(2013年11月)撮影
Kitchenキッチン  Indoor (11 May 2013) Shooting
室内(2013年11月)撮影
Non-living roomリビング以外の居室  Indoor (11 May 2013) Shooting
室内(2013年11月)撮影
Receipt収納  Indoor (11 May 2013) Shooting
室内(2013年11月)撮影
Balconyバルコニー  Local (11 May 2013) Shooting
現地(2013年11月)撮影
View photos from the dwelling unit住戸からの眺望写真  View (November 2013) Shooting
眺望(2013年11月)撮影
Non-living roomリビング以外の居室  Indoor (11 May 2013) Shooting
室内(2013年11月)撮影
 Indoor (11 May 2013) Shooting
室内(2013年11月)撮影
Location
|