|
|
Hino City, Tokyo
東京都日野市
|
|
Tama Monorail "Manganji" walk 2 minutes
多摩都市モノレール「万願寺」歩2分
|
|
Tama monorail line "Manganji" Station 2-minute walk!
多摩モノレール線『万願寺』駅徒歩2分!
|
|
The top floor angle room ☆ Two-sided balcony ☆ Pets Allowed ☆ Interior renovation completed
最上階角部屋☆2面バルコニー☆ペット可☆内装リフォーム済
|
Features pickup 特徴ピックアップ | | Interior renovation / Corner dwelling unit / All room storage / Flat to the station / top floor ・ No upper floor / 2 or more sides balcony / Southeast direction / Pets Negotiable 内装リフォーム /角住戸 /全居室収納 /駅まで平坦 /最上階・上階なし /2面以上バルコニー /東南向き /ペット相談 |
Property name 物件名 | | Hino ・ Towa Citicorp Takahatafudo 日野市・藤和シティコープ高幡不動 |
Price 価格 | | 24,800,000 yen 2480万円 |
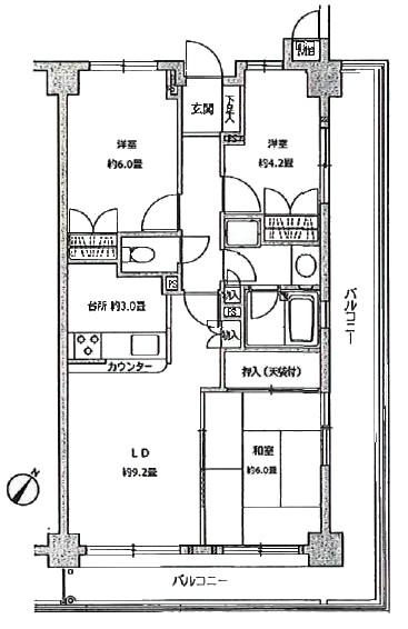
Floor plan 間取り | | 3LDK 3LDK |
Units sold 販売戸数 | | 1 units 1戸 |
Total units 総戸数 | | 40 units 40戸 |
Occupied area 専有面積 | | 63.14 sq m (center line of wall) 63.14m2(壁芯) |
Other area その他面積 | | Balcony area: 23.4 sq m バルコニー面積:23.4m2 |
Whereabouts floor / structures and stories 所在階/構造・階建 | | 6th floor / RC6 story 6階/RC6階建 |
Completion date 完成時期(築年月) | | June 1995 1995年6月 |
Address 住所 | | Hino City, Tokyo Manganji 2 東京都日野市万願寺2 |
Traffic 交通 | | Tama Monorail "Manganji" walk 2 minutes Keio "Takahatafudo" walk 19 minutes 多摩都市モノレール「万願寺」歩2分京王線「高幡不動」歩19分
|
Related links 関連リンク | | [Related Sites of this company] 【この会社の関連サイト】 |
Person in charge 担当者より | | Rep Korematsu Masayuki Age: 40 Daigyokai Experience: 20 years customers like that can be a quick and accurate advice, We will correspond with the best of intentions. 担当者是松 正行年齢:40代業界経験:20年お客様に迅速かつ的確なアドバイスができる様、誠心誠意で対応致します。 |
Contact お問い合せ先 | | TEL: 0800-603-0559 [Toll free] mobile phone ・ Also available from PHS Caller ID is not notified Please contact the "saw SUUMO (Sumo)" If it does not lead, If the real estate company TEL:0800-603-0559【通話料無料】携帯電話・PHSからもご利用いただけます 発信者番号は通知されません 「SUUMO(スーモ)を見た」と問い合わせください つながらない方、不動産会社の方は
|
Administrative expense 管理費 | | 12,980 yen / Month (consignment (commuting)) 1万2980円/月(委託(通勤)) |
Repair reserve 修繕積立金 | | 7080 yen / Month 7080円/月 |
Time residents 入居時期 | | Consultation 相談 |
Whereabouts floor 所在階 | | 6th floor 6階 |
Direction 向き | | Southeast 南東 |
Renovation リフォーム | | June 2013 interior renovation completed (bathroom ・ toilet ・ wall ・ floor ・ all rooms) 2013年6月内装リフォーム済(浴室・トイレ・壁・床・全室) |
Overview and notices その他概要・特記事項 | | Contact: Korematsu Masayuki 担当者:是松 正行 |
Structure-storey 構造・階建て | | RC6 story RC6階建 |
Site of the right form 敷地の権利形態 | | Ownership 所有権 |
Use district 用途地域 | | Residential 近隣商業 |
Parking lot 駐車場 | | Site (8000 yen / Month) 敷地内(8000円/月) |
Company profile 会社概要 | | <Mediation> Minister of Land, Infrastructure and Transport (3) No. 006,185 (one company) National Housing Industry Association (Corporation) metropolitan area real estate Fair Trade Council member Asahi Housing Corporation Tachikawa shop Yubinbango190-0012 Tokyo Tachikawa Akebonocho 2-9-1 Kikuya Kawaguchi building the fourth floor <仲介>国土交通大臣(3)第006185号(一社)全国住宅産業協会会員 (公社)首都圏不動産公正取引協議会加盟朝日住宅(株)立川店〒190-0012 東京都立川市曙町2-9-1 菊屋川口ビル4階 |