Used Apartments » Kanto » Tokyo » Itabashi
 
| | Itabashi-ku, Tokyo 東京都板橋区 |
| Tobu Tojo Line "Kamiitabashi" walk 8 minutes 東武東上線「上板橋」歩8分 |
| Immediate Available, Interior and exterior renovation, Interior renovation, System kitchen, Corner dwelling unit, A quiet residential area, Around traffic fewer, Face-to-face kitchen, Flooring Chokawa, TV monitor interphone, Rinobe 即入居可、内外装リフォーム、内装リフォーム、システムキッチン、角住戸、閑静な住宅地、周辺交通量少なめ、対面式キッチン、フローリング張替、TVモニタ付インターホン、リノベ |
| Immediate Available, Interior and exterior renovation, Interior renovation, System kitchen, Corner dwelling unit, A quiet residential area, Around traffic fewer, Face-to-face kitchen, Flooring Chokawa, TV monitor interphone, Renovation, Leafy residential area, Urban neighborhood, Mu front building, All living room flooring, Maintained sidewalk, Flat terrain, Private garden, Readjustment land within 即入居可、内外装リフォーム、内装リフォーム、システムキッチン、角住戸、閑静な住宅地、周辺交通量少なめ、対面式キッチン、フローリング張替、TVモニタ付インターホン、リノベーション、緑豊かな住宅地、都市近郊、前面棟無、全居室フローリング、整備された歩道、平坦地、専用庭、区画整理地内 |
Features pickup 特徴ピックアップ | | Immediate Available / Interior and exterior renovation / Interior renovation / System kitchen / Corner dwelling unit / A quiet residential area / Around traffic fewer / Face-to-face kitchen / Flooring Chokawa / TV monitor interphone / Renovation / Leafy residential area / Urban neighborhood / Mu front building / All living room flooring / Maintained sidewalk / Flat terrain / Private garden / Readjustment land within 即入居可 /内外装リフォーム /内装リフォーム /システムキッチン /角住戸 /閑静な住宅地 /周辺交通量少なめ /対面式キッチン /フローリング張替 /TVモニタ付インターホン /リノベーション /緑豊かな住宅地 /都市近郊 /前面棟無 /全居室フローリング /整備された歩道 /平坦地 /専用庭 /区画整理地内 | Event information イベント情報 | | Open House (Please make a reservation beforehand) schedule / Every Saturday, Sunday and public holidays time / 10:00 ~ 17:00 オープンハウス(事前に必ず予約してください)日程/毎週土日祝時間/10:00 ~ 17:00 | Property name 物件名 | | Gen Wakaki park Sunny Heights 若木原公園サニーハイツ | Price 価格 | | 26,900,000 yen 2690万円 | Floor plan 間取り | | 3LDK 3LDK | Units sold 販売戸数 | | 1 units 1戸 | Occupied area 専有面積 | | 60.32 sq m (center line of wall) 60.32m2(壁芯) | Whereabouts floor / structures and stories 所在階/構造・階建 | | 1st floor / SRC6 story 1階/SRC6階建 | Completion date 完成時期(築年月) | | June 1983 1983年6月 | Address 住所 | | Itabashi-ku, Tokyo saplings 1 東京都板橋区若木1 | Traffic 交通 | | Tobu Tojo Line "Kamiitabashi" walk 8 minutes Tobu Tojo Line "Tobunerima" walk 10 minutes 東武東上線「上板橋」歩8分 東武東上線「東武練馬」歩10分
| Related links 関連リンク | | [Related Sites of this company] 【この会社の関連サイト】 | Contact お問い合せ先 | | TEL: 0800-602-6872 [Toll free] mobile phone ・ Also available from PHS Caller ID is not notified Please contact the "saw SUUMO (Sumo)" If it does not lead, If the real estate company TEL:0800-602-6872【通話料無料】携帯電話・PHSからもご利用いただけます 発信者番号は通知されません 「SUUMO(スーモ)を見た」と問い合わせください つながらない方、不動産会社の方は
| Administrative expense 管理費 | | 9420 yen / Month (consignment (cyclic)) 9420円/月(委託(巡回)) | Repair reserve 修繕積立金 | | 16,200 yen / Month 1万6200円/月 | Time residents 入居時期 | | Immediate available 即入居可 | Whereabouts floor 所在階 | | 1st floor 1階 | Direction 向き | | Southeast 南東 | Structure-storey 構造・階建て | | SRC6 story SRC6階建 | Site of the right form 敷地の権利形態 | | Ownership 所有権 | Company profile 会社概要 | | <Mediation> Governor of Tokyo (1) the first 093,914 No. Sakura Ju販 Co. Yubinbango174-0076 Itabashi-ku, Tokyo Kamiitabashi 3-11-1 <仲介>東京都知事(1)第093914号さくら住販(株)〒174-0076 東京都板橋区上板橋3-11-1 |
Local appearance photo現地外観写真  Local (12 May 2013) Shooting
現地(2013年12月)撮影
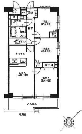
Floor plan間取り図  3LDK, Price 26,900,000 yen, Occupied area 60.32 sq m
3LDK、価格2690万円、専有面積60.32m2
Livingリビング  Local (12 May 2013) Shooting
現地(2013年12月)撮影
Local appearance photo現地外観写真  Local (12 May 2013) Shooting
現地(2013年12月)撮影
Bathroom浴室  Local (12 May 2013) Shooting
現地(2013年12月)撮影
Kitchenキッチン  Local (12 May 2013) Shooting
現地(2013年12月)撮影
Non-living roomリビング以外の居室  Local (12 May 2013) Shooting
現地(2013年12月)撮影
Entrance玄関  Local (12 May 2013) Shooting
現地(2013年12月)撮影
Parking lot駐車場  Local (12 May 2013) Shooting
現地(2013年12月)撮影
Garden庭  Local (12 May 2013) Shooting
現地(2013年12月)撮影
Balconyバルコニー  Local (12 May 2013) Shooting
現地(2013年12月)撮影
Local appearance photo現地外観写真  Local (12 May 2013) Shooting
現地(2013年12月)撮影
Livingリビング  Local (12 May 2013) Shooting
現地(2013年12月)撮影
Kitchenキッチン  Local (12 May 2013) Shooting
現地(2013年12月)撮影
Non-living roomリビング以外の居室  Local (12 May 2013) Shooting
現地(2013年12月)撮影
Entrance玄関  Local (12 May 2013) Shooting
現地(2013年12月)撮影
Parking lot駐車場  Common areas
共用部
Entrance玄関  Local (12 May 2013) Shooting
現地(2013年12月)撮影
Livingリビング  Local (12 May 2013) Shooting
現地(2013年12月)撮影
Toiletトイレ  Local (12 May 2013) Shooting
現地(2013年12月)撮影
Wash basin, toilet洗面台・洗面所  Local (12 May 2013) Shooting
現地(2013年12月)撮影
Location
|