1984October
25,900,000 yen, 3LDK, 57.15 sq m
Used Apartments » Kanto » Tokyo » Itabashi
 
| | Itabashi-ku, Tokyo 東京都板橋区 |
| Toei Mita Line "lotus root" walk 5 minutes 都営三田線「蓮根」歩5分 |
| ◆ Furnished ◆ 2013 November new interior renovation completed ◆ June 2012 large-scale repair work Performed ◆ 3 direction room ◆ Two-sided balcony ◆ ◆家具付◆平成25年11月新規内装リフォーム済◆平成24年6月大規模修繕工事実施済◆3方角部屋◆2面バルコニー◆ |
| Toei Mita Line "lotus root" station walk 5 minutes, "Nishidai" Station 7-minute walk ○ after-sales service with guarantee 都営三田線「蓮根」駅徒歩5分、「西台」駅徒歩7分○アフターサービス保証付 |
Property name 物件名 | | GS Heim lotus root GSハイム蓮根 | Price 価格 | | 25,900,000 yen 2590万円 | Floor plan 間取り | | 3LDK 3LDK | Units sold 販売戸数 | | 1 units 1戸 | Total units 総戸数 | | 32 units 32戸 | Occupied area 専有面積 | | 57.15 sq m (center line of wall) 57.15m2(壁芯) | Other area その他面積 | | Balcony area: 11.25 sq m バルコニー面積:11.25m2 | Whereabouts floor / structures and stories 所在階/構造・階建 | | Second floor / RC5 story 2階/RC5階建 | Completion date 完成時期(築年月) | | October 1984 1984年10月 | Address 住所 | | Itabashi-ku, Tokyo lotus root 3 東京都板橋区蓮根3 | Traffic 交通 | | Toei Mita Line "lotus root" walk 5 minutes Toei Mita Line "Nishidai" walk 7 minutes 都営三田線「蓮根」歩5分 都営三田線「西台」歩7分
| Contact お問い合せ先 | | TEL: 0800-603-3834 [Toll free] mobile phone ・ Also available from PHS Caller ID is not notified Please contact the "saw SUUMO (Sumo)" If it does not lead, If the real estate company TEL:0800-603-3834【通話料無料】携帯電話・PHSからもご利用いただけます 発信者番号は通知されません 「SUUMO(スーモ)を見た」と問い合わせください つながらない方、不動産会社の方は
| Administrative expense 管理費 | | 13,430 yen / Month (consignment (commuting)) 1万3430円/月(委託(通勤)) | Repair reserve 修繕積立金 | | 9140 yen / Month 9140円/月 | Time residents 入居時期 | | Consultation 相談 | Whereabouts floor 所在階 | | Second floor 2階 | Direction 向き | | East 東 | Renovation リフォーム | | 2013 November interior renovation completed (already new interior renovation) 2013年11月内装リフォーム済(新規内装リフォーム済) | Structure-storey 構造・階建て | | RC5 story RC5階建 | Site of the right form 敷地の権利形態 | | Ownership 所有権 | Use district 用途地域 | | One dwelling, Quasi-residence 1種住居、準住居 | Parking lot 駐車場 | | Nothing 無 | Company profile 会社概要 | | <Mediation> Minister of Land, Infrastructure and Transport (2) Article 007 085 Issue Date god housing support (Ltd.) Shibuya office 150-0002 Shibuya, Shibuya-ku, Tokyo 1-14-14TK building second floor <仲介>国土交通大臣(2)第007085号日神住宅サポート(株)渋谷営業所〒150-0002 東京都渋谷区渋谷1-14-14TKビル2階 | Construction 施工 | | Tada Corporation 多田建設 |
 Local appearance photo
現地外観写真
 Entrance
エントランス
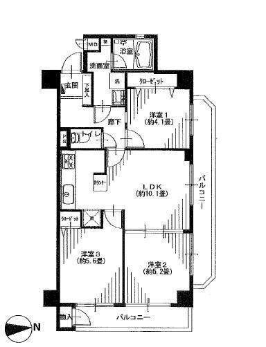
Floor plan間取り図  3LDK, Price 25,900,000 yen, Occupied area 57.15 sq m , Balcony area 11.25 sq m
3LDK、価格2590万円、専有面積57.15m2、バルコニー面積11.25m2
 Bathroom
浴室
 Kitchen
キッチン
 Non-living room
リビング以外の居室
 Non-living room
リビング以外の居室
Location
|