|
|
Kita-ku, Tokyo
東京都北区
|
|
Toei Mita Line "Nishi-sugamo" walk 3 minutes
都営三田線「西巣鴨」歩3分
|
|
We will find the rooms meet the needs of our wish to help in fine thoughtfulness. So we are on our HP posted a large number of public before the property, We are allowed to quickly transmit the fresh information. So that I found you live the customer Nasaru consent, And supported by the best with the sense of speed. Sale assessment ・ We also purchase. In the case of hope is, Kee Corporation until trading division Please feel free to contact us.
お客様のご希望に合ったお部屋探しを細かい心遣いでお手伝いさせて頂きます。弊社HPには公開前の物件を多数掲載しておりますので、新鮮な情報をいち早く発信させて頂いております。お客様が納得なさるお住まいが見つかるよう、スピード感を持って全力でサポートします。売却査定・買い取りも致します。ご希望の際は、ケーコーポレーション売買事業部迄 お気軽にお問い合わせ下さい。
|
Features pickup 特徴ピックアップ | | Immediate Available / System kitchen / Corner dwelling unit / Yang per good / top floor ・ No upper floor / High floor / 24 hours garbage disposal Allowed / Elevator / All living room flooring / Southwestward / Walk-in closet / Delivery Box 即入居可 /システムキッチン /角住戸 /陽当り良好 /最上階・上階なし /高層階 /24時間ゴミ出し可 /エレベーター /全居室フローリング /南西向き /ウォークインクロゼット /宅配ボックス |
Property name 物件名 | | Mansion Across Nishi-sugamo マンションアクロス西巣鴨 |
Price 価格 | | 25,300,000 yen 2530万円 |
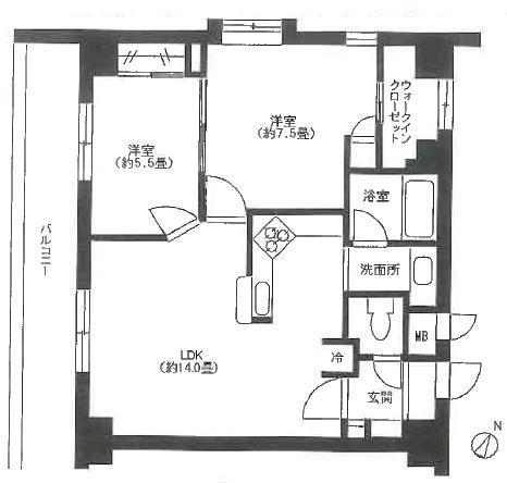
Floor plan 間取り | | 2LDK 2LDK |
Units sold 販売戸数 | | 1 units 1戸 |
Total units 総戸数 | | 91 units 91戸 |
Occupied area 専有面積 | | 61.46 sq m (18.59 tsubo) (center line of wall) 61.46m2(18.59坪)(壁芯) |
Other area その他面積 | | Balcony area: 10.72 sq m バルコニー面積:10.72m2 |
Whereabouts floor / structures and stories 所在階/構造・階建 | | 14th floor / SRC14 story 14階/SRC14階建 |
Completion date 完成時期(築年月) | | October 1993 1993年10月 |
Address 住所 | | Kita-ku, Tokyo Takinogawa 1 東京都北区滝野川1 |
Traffic 交通 | | Toei Mita Line "Nishi-sugamo" walk 3 minutes Toden Arakawa Line "Nishigahara Yonchome" walk 5 minutes Toden Arakawa Line "New Koshinzuka" walk 8 minutes 都営三田線「西巣鴨」歩3分 都電荒川線「西ヶ原四丁目」歩5分 都電荒川線「新庚申塚」歩8分
|
Related links 関連リンク | | [Related Sites of this company] 【この会社の関連サイト】 |
Person in charge 担当者より | | Person in charge of the customer responsible Age: 20 Daigyokai experience: we will be happy to help you find the room matches the hope of one year customers with fine thoughtfulness. The company HP, We have published the number of properties before publishing. We are allowed to quickly transmit the fresh information. 担当者お客様担当年齢:20代業界経験:1年お客様のご希望に合ったお部屋探しを細かい心遣いでお手伝いさせて頂きます。弊社HPには、公開前の物件数掲載しております。新鮮な情報をいち早く発信させて頂いております。 |
Contact お問い合せ先 | | TEL: 0800-603-1099 [Toll free] mobile phone ・ Also available from PHS Caller ID is not notified Please contact the "saw SUUMO (Sumo)" If it does not lead, If the real estate company TEL:0800-603-1099【通話料無料】携帯電話・PHSからもご利用いただけます 発信者番号は通知されません 「SUUMO(スーモ)を見た」と問い合わせください つながらない方、不動産会社の方は
|
Administrative expense 管理費 | | 19,400 yen / Month (consignment (commuting)) 1万9400円/月(委託(通勤)) |
Repair reserve 修繕積立金 | | 12,360 yen / Month 1万2360円/月 |
Expenses 諸費用 | | Bicycle: 500 yen / Month 駐輪場:500円/月 |
Time residents 入居時期 | | Immediate available 即入居可 |
Whereabouts floor 所在階 | | 14th floor 14階 |
Direction 向き | | Southwest 南西 |
Overview and notices その他概要・特記事項 | | Contact: Customer Contact 担当者:お客様担当 |
Structure-storey 構造・階建て | | SRC14 story SRC14階建 |
Site of the right form 敷地の権利形態 | | Ownership 所有権 |
Use district 用途地域 | | Commerce 商業 |
Company profile 会社概要 | | <Mediation> Governor of Tokyo (7) No. 054460 (Ltd.) Kee Corporation head office Yubinbango113-0001, Bunkyo-ku, Tokyo Hakusan 1-33-19 Lions Mansion Hakusan Station <仲介>東京都知事(7)第054460号(株)ケーコーポレーション本店〒113-0001 東京都文京区白山1-33-19 ライオンズマンション白山駅前 |