|
|
Koto-ku, Tokyo
東京都江東区
|
|
Tokyo Metro Tozai Line "Minamisunamachi" walk 15 minutes
東京メトロ東西線「南砂町」歩15分
|
|
12 floor per per yang, View, Ventilation good. This room has a feeling of opening is. Total units 526 units of the big community. You can also see a weekday for the current vacancy. September 2011 large-scale repair work practice already
12階部分につき陽当たり、眺望、通風良好。開放感があるお部屋です。総戸数526戸のビックコミュニティー。現在空室のため平日もご覧いただけます。平成23年9月大規模修繕工事実地済
|
|
Shimizu Corporation construction. Management system is a good apartment. Repair reserve total 182,707,547 yen (2013 June 30) Parking one free scheduled for October. Bicycle-parking space, There free bike storage. (2013 August 30, 2010) There is a bus stop on the property across the street, It is convenient traffic. Sunamachi 4-minute walk from the Ginza shopping district, It is also useful every day of shopping.
清水建設施工。管理体制良好のマンションです。修繕積立金総額182,707,547円(平成25年6月30日現在)10月に駐車場1台空き予定。駐輪場、バイク置き場空きございます。(平成25年8月30日現在)物件向かい側にバス停があり、交通便利です。砂町銀座商店街まで徒歩4分、毎日のお買い物も便利です。
|
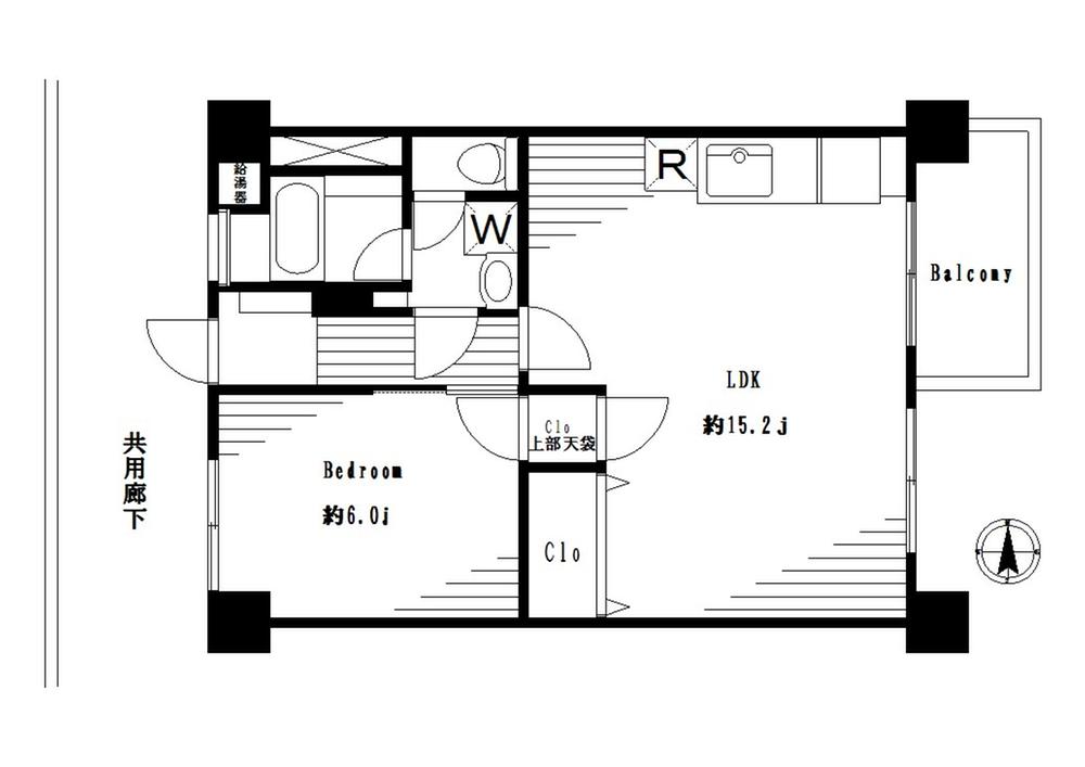
Features pickup 特徴ピックアップ | | Year Available / Immediate Available / It is close to the city / Interior renovation / Yang per good / All room storage / Flat to the station / LDK15 tatami mats or more / Plane parking / Flooring Chokawa / Bicycle-parking space / Elevator / Otobasu / The window in the bathroom / TV monitor interphone / Mu front building / Ventilation good / All living room flooring / All room 6 tatami mats or more / Bike shelter 年内入居可 /即入居可 /市街地が近い /内装リフォーム /陽当り良好 /全居室収納 /駅まで平坦 /LDK15畳以上 /平面駐車場 /フローリング張替 /駐輪場 /エレベーター /オートバス /浴室に窓 /TVモニタ付インターホン /前面棟無 /通風良好 /全居室フローリング /全居室6畳以上 /バイク置場 |
Property name 物件名 | | Kitasuna Yonchome housing 北砂四丁目住宅 |
Price 価格 | | 16.8 million yen 1680万円 |
Floor plan 間取り | | 1LDK 1LDK |
Units sold 販売戸数 | | 1 units 1戸 |
Total units 総戸数 | | 526 units 526戸 |
Occupied area 専有面積 | | 53.1 sq m (center line of wall) 53.1m2(壁芯) |
Other area その他面積 | | Balcony area: 4.5 sq m バルコニー面積:4.5m2 |
Whereabouts floor / structures and stories 所在階/構造・階建 | | 12th floor / SRC14 story 12階/SRC14階建 |
Completion date 完成時期(築年月) | | June 1972 1972年6月 |
Address 住所 | | Koto-ku, Tokyo Kitasuna 4-19 No. 30 東京都江東区北砂4-19番30 |
Traffic 交通 | | Tokyo Metro Tozai Line "Minamisunamachi" walk 15 minutes Toei Shinjuku Line "Nishi Ojima" walk 19 minutes Toei bus "Kitasuna Yonchome" walk 1 minute 東京メトロ東西線「南砂町」歩15分 都営新宿線「西大島」歩19分 都営バス「北砂四丁目」歩1分 |
Related links 関連リンク | | [Related Sites of this company] 【この会社の関連サイト】 |
Contact お問い合せ先 | | (Yes) Ai Home TEL: 0800-603-2011 [Toll free] mobile phone ・ Also available from PHS Caller ID is not notified Please contact the "saw SUUMO (Sumo)" If it does not lead, If the real estate company (有)アイホームTEL:0800-603-2011【通話料無料】携帯電話・PHSからもご利用いただけます 発信者番号は通知されません 「SUUMO(スーモ)を見た」と問い合わせください つながらない方、不動産会社の方は
|
Administrative expense 管理費 | | 5890 yen / Month (consignment (resident)) 5890円/月(委託(常駐)) |
Repair reserve 修繕積立金 | | 9440 yen / Month 9440円/月 |
Time residents 入居時期 | | Immediate available 即入居可 |
Whereabouts floor 所在階 | | 12th floor 12階 |
Direction 向き | | East 東 |
Renovation リフォーム | | July 2013 interior renovation completed (bathroom ・ toilet ・ wall ・ floor ・ Wash Joinery) 2013年7月内装リフォーム済(浴室・トイレ・壁・床・洗面 建具) |
Structure-storey 構造・階建て | | SRC14 story SRC14階建 |
Site of the right form 敷地の権利形態 | | Ownership 所有権 |
Use district 用途地域 | | Semi-industrial, Commerce 準工業、商業 |
Parking lot 駐車場 | | Sky Mu 空無 |
Company profile 会社概要 | | <Marketing alliance (mediated)> Governor of Tokyo (6) No. 062374 (Corporation) All Japan Real Estate Association (Corporation) metropolitan area real estate Fair Trade Council member (with) Ai Home Yubinbango135-0013 Koto-ku, Tokyo Senda 15-7 <販売提携(媒介)>東京都知事(6)第062374号(公社)全日本不動産協会会員 (公社)首都圏不動産公正取引協議会加盟(有)アイホーム〒135-0013 東京都江東区千田15-7 |
Construction 施工 | | Shimizu Corporation (Corporation) 清水建設(株) |