2005October
43,800,000 yen, 2LDK, 65.47 sq m
Used Apartments » Kanto » Tokyo » Koto
 
| | Koto-ku, Tokyo 東京都江東区 |
| Tokyo Metro Yurakucho Line "Toyosu" walk 4 minutes 東京メトロ有楽町線「豊洲」歩4分 |
Features pickup 特徴ピックアップ | | 2 along the line more accessible / Riverside / System kitchen / Bathroom Dryer / All room storage / Face-to-face kitchen / Bicycle-parking space / Otobasu / TV monitor interphone / All living room flooring / Walk-in closet / Floor heating / Bike shelter 2沿線以上利用可 /リバーサイド /システムキッチン /浴室乾燥機 /全居室収納 /対面式キッチン /駐輪場 /オートバス /TVモニタ付インターホン /全居室フローリング /ウォークインクロゼット /床暖房 /バイク置場 | Property name 物件名 | | Tokyo Front Court (Forest Wing) 東京フロントコート(フォレストウィング) | Price 価格 | | 43,800,000 yen 4380万円 | Floor plan 間取り | | 2LDK 2LDK | Units sold 販売戸数 | | 1 units 1戸 | Occupied area 専有面積 | | 65.47 sq m (center line of wall) 65.47m2(壁芯) | Other area その他面積 | | Balcony area: 11.6 sq m バルコニー面積:11.6m2 | Whereabouts floor / structures and stories 所在階/構造・階建 | | 3rd floor / SRC20-story part RC 3階/SRC20階建一部RC | Completion date 完成時期(築年月) | | October 2005 2005年10月 | Address 住所 | | Koto-ku, Tokyo Toyosu 4 東京都江東区豊洲4 | Traffic 交通 | | Tokyo Metro Yurakucho Line "Toyosu" walk 4 minutes New Transit Yurikamome "Toyosu" walk 6 minutes 東京メトロ有楽町線「豊洲」歩4分 新交通ゆりかもめ「豊洲」歩6分
| Related links 関連リンク | | [Related Sites of this company] 【この会社の関連サイト】 | Contact お問い合せ先 | | Yamato Holmes online (Ltd.) TEL: 0800-805-4384 [Toll free] mobile phone ・ Also available from PHS Caller ID is not notified Please contact the "saw SUUMO (Sumo)" If it does not lead, If the real estate company 大和ホームズオンライン(株)TEL:0800-805-4384【通話料無料】携帯電話・PHSからもご利用いただけます 発信者番号は通知されません 「SUUMO(スーモ)を見た」と問い合わせください つながらない方、不動産会社の方は
| Administrative expense 管理費 | | 7700 yen / Month (consignment (commuting)) 7700円/月(委託(通勤)) | Repair reserve 修繕積立金 | | 7010 yen / Month 7010円/月 | Time residents 入居時期 | | Consultation 相談 | Whereabouts floor 所在階 | | 3rd floor 3階 | Direction 向き | | Southwest 南西 | Structure-storey 構造・階建て | | SRC20-story part RC SRC20階建一部RC | Site of the right form 敷地の権利形態 | | Ownership 所有権 | Use district 用途地域 | | Semi-industrial 準工業 | Parking lot 駐車場 | | Site (1000 yen ~ 15,500 yen / Month) 敷地内(1000円 ~ 1万5500円/月) | Company profile 会社概要 | | <Mediation> Governor of Tokyo (1) No. 094632 Yamato Holmes online Co. Yubinbango102-0072, Chiyoda-ku, Tokyo Iidabashi 3-13-1 <仲介>東京都知事(1)第094632号大和ホームズオンライン(株)〒102-0072 東京都千代田区飯田橋3-13-1 | Construction 施工 | | HASEKO Corporation (株)長谷工コーポレーション |
Local appearance photo現地外観写真  Appearance (September 2013) Shooting
外観(2013年9月)撮影
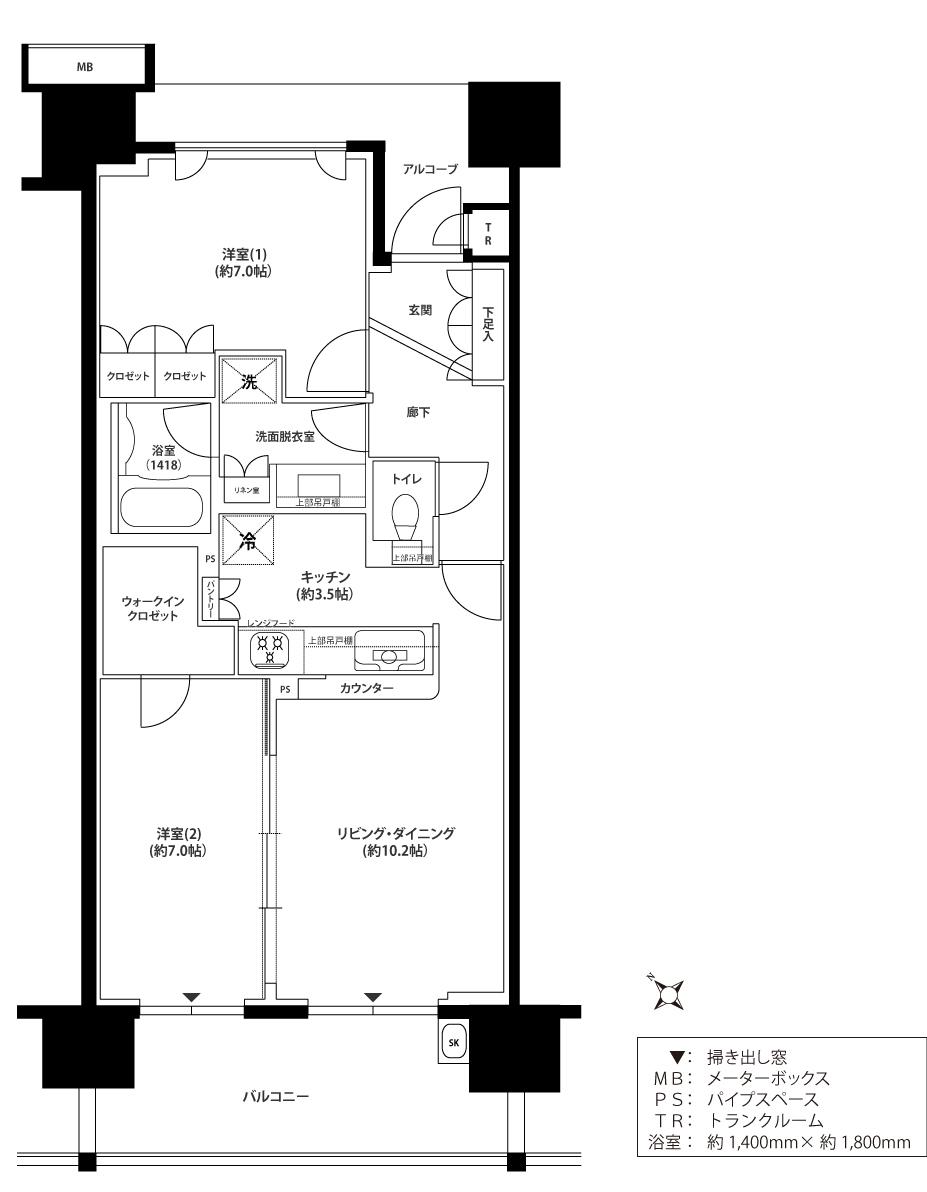
Floor plan間取り図  2LDK, Price 43,800,000 yen, Occupied area 65.47 sq m , Balcony area 11.6 sq m
2LDK、価格4380万円、専有面積65.47m2、バルコニー面積11.6m2
Local appearance photo現地外観写真  Appearance (September 2013) Shooting
外観(2013年9月)撮影
 Appearance (September 2013) Shooting
外観(2013年9月)撮影
Entranceエントランス  lobby
ロビー
Other common areasその他共用部  Private garden
プライベートガーデン
 Private garden
プライベートガーデン
Location
|